• Πρόσφατα έργα
    • Αρχιτεκτονικά
    • Design – Διακόσμηση
    • Μελέτες
    • Εργασίες
  • Δόμηση – Υποδομές
    • Ξενοδοχεία – Τουρισμός
    • Κατασκευές – Ακίνητα
    • Αστικές αναπλάσεις
    • Στατικά – Τοπογραφικά
  • Εξοικονόμηση – Ενέργεια
    • ΑΠΕ
    • Πράσινες επενδύσεις
    • Η/Μ Εγκαταστάσεις
    • Αυτοματισμοί – Τεχνολογία
  • Επιχειρήσεις
    • Εταιρικά Νέα
    • Ειδικές Τεχνολογίες
  • Αφιερώματα
  •  
Το W Costa Navarino επιστρέφει στις 2 Απριλίου με μοναδικές εμπειρίες και δυναμικές συνεργασίες
18 Μαρτίου 2026
Όμιλος ΤΙΤΑΝ: Χρονιά ρεκόρ το 2025 – Αύξηση EBITDA 9,3% στα €606 εκατ., καθαρά κέρδη €236 εκατ.
19 Μαρτίου 2026

Αρχιτεκτονική μελέτη: Γεώργιος - Βλάσιος Πακαλίδης + Άρτεμις Βαλυράκη | Photo © Γιώργος Σφακιανάκης

Voulkanizater: Ένα Hi-Fi bar-restaurant στο Κουκάκι που συνδυάζει τη βιομηχανική μνήμη με το σύγχρονο design

19 Μαρτίου 2026
Κατηγορίες
  • Design – Διακόσμηση
Ετικέτες
  • bar-restaurant
  • Voulkanizater
  • βιομηχανική μνήμη
  • ελαστικά
  • εμφανές σκυρόδεμα
  • Κουκάκι
  • μεταλλικά πάνελ
  • μετατροπή
  • υφές
  • φωτισμός

Ένα παλιό συνεργείο βουλκανιζατέρ στο Κουκάκι, μεταμόρφωθηκε από τους αρχιτέκτονες Γιώργο | Βλάση Πακαλίδη και Άρτεμις Βαλυράκη, σε ένα Hi-Fi bar-restaurant που συνδυάζει τη βιομηχανική μνήμη με το σύγχρονο design. Ο νέος σχεδιασμός διατηρεί το υπάρχον κέλυφος και εισάγει μια ελαφριά μεταλλική δομή που ταυτόχρονα προστατεύει και αναδεικνύει το αρχικό κτίριο, τιμώντας το παρελθόν του, ενώ επαναπροσδιορίζει τη λειτουργία του.

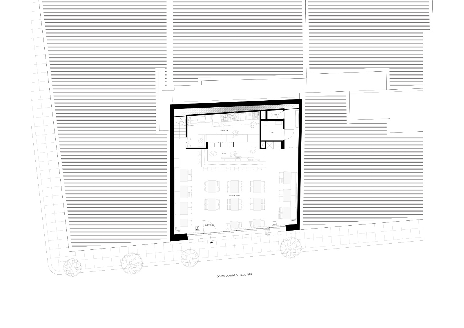
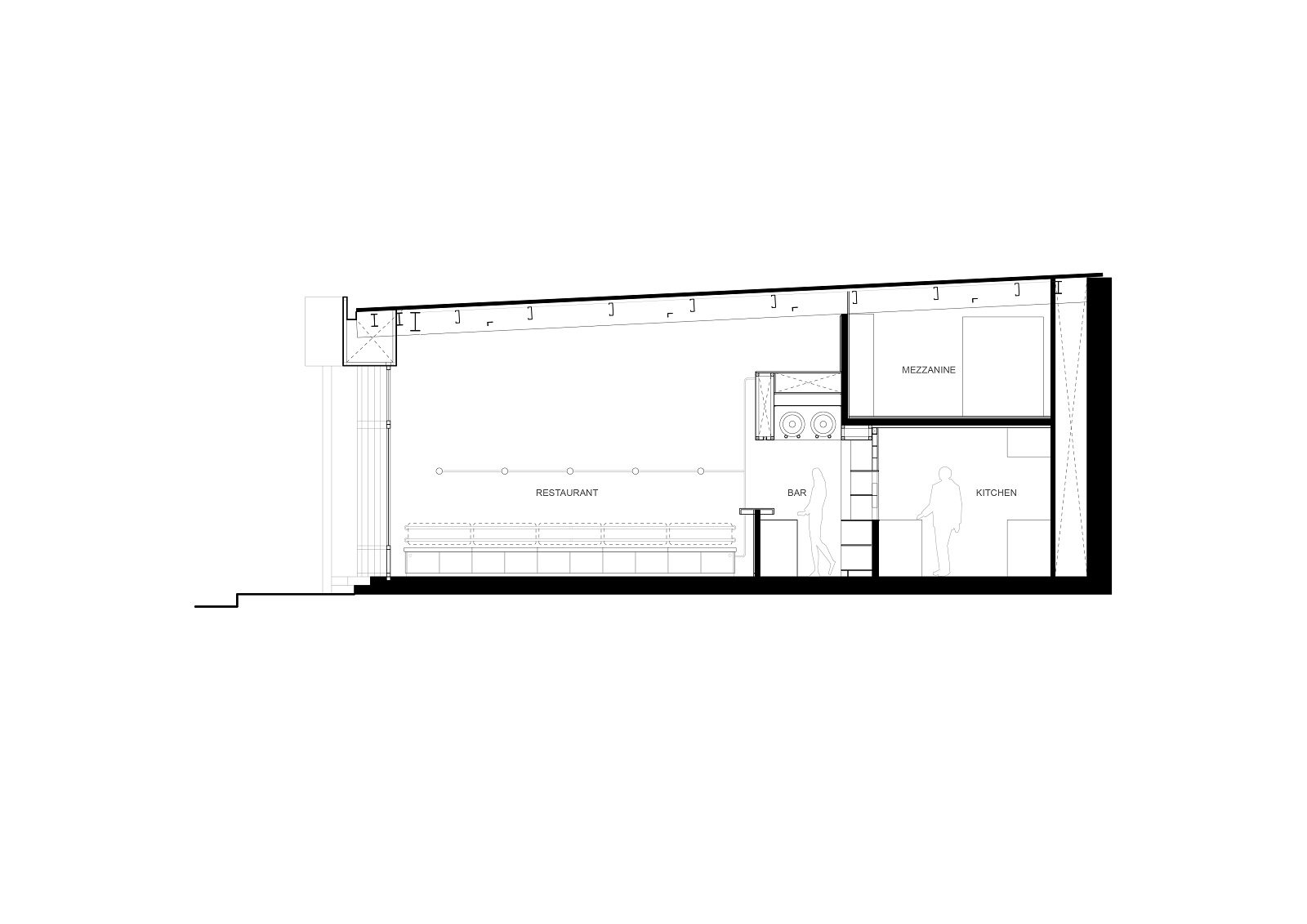
Η κεντρική ιδέα βασίζεται στη λογική του «box–in–a–box», όπου όλοι οι βοηθητικοί χώροι, κουζίνα, αποθήκες και τουαλέτες, ενσωματώνονται σε έναν εσωτερικό όγκο, αφήνοντας την εξωτερική ζώνη ανοιχτή για φαγητό, μπαρ και κυκλοφορία.

Αρχιτεκτονική μελέτη: Γεώργιος – Βλάσιος Πακαλίδης + Άρτεμις Βαλυράκη | Photo © Γιώργος Σφακιανάκης

Αρχιτεκτονική μελέτη: Γεώργιος – Βλάσιος Πακαλίδης + Άρτεμις Βαλυράκη | Photo © Γιώργος Σφακιανάκης

Ακατέργαστα υλικά, όπως εμφανές σκυρόδεμα, χάλυβας και μεταλλικά πάνελ, εκφράζουν το βιομηχανικό DNA του χώρου, ενώ διακριτικές λεπτομέρειες, ζάντες πάνω από το μπαρ, υφές εμπνευσμένες από ελαστικά και αναφορές σε vintage επιγραφές, αποτίουν φόρο τιμής στο βουλκανιζατέρ του παρελθόντος.

Αρχιτεκτονική μελέτη: Γεώργιος – Βλάσιος Πακαλίδης + Άρτεμις Βαλυράκη | Photo © Γιώργος Σφακιανάκης

Αρχιτεκτονική μελέτη: Γεώργιος – Βλάσιος Πακαλίδης + Άρτεμις Βαλυράκη | Photo © Γιώργος Σφακιανάκης

Αρχιτεκτονική μελέτη: Γεώργιος – Βλάσιος Πακαλίδης + Άρτεμις Βαλυράκη | Photo © Γιώργος Σφακιανάκης


“Για την καλλιτεχνική διεύθυνση και την ταυτότητα, η ομάδα άντλησε έμπνευση από κλασικά λογότυπα και σήματα ιστορικών συνεργείων και εταιρειών ελαστικών, όπως η Michelin. Μια πλήρως ανοιγόμενη υαλοπρόσοψη συνδέει το εσωτερικό με τον αστικό ιστό, φέρνοντας την ενέργεια της γειτονιάς του Κουκακίου μέσα στον χώρο”.


Αρχιτεκτονική μελέτη: Γεώργιος – Βλάσιος Πακαλίδης + Άρτεμις Βαλυράκη | Photo © Γιώργος Σφακιανάκης

Αρχιτεκτονική μελέτη: Γεώργιος – Βλάσιος Πακαλίδης + Άρτεμις Βαλυράκη | Photo © Γιώργος Σφακιανάκης

Ο φωτισμός λειτουργεί ως σκηνογραφική σύνθεση σε τρεις ζώνες, με προβολείς, έμμεσο φωτισμό και κρυφές RGBW LED ταινίες που ζωντανεύουν το περιβάλλον. Στο μπαρ, ένα φωτεινό κουτί και ματ υαλόπλακες δημιουργούν βάθος και θεατρική αντίθεση.

Αρχιτεκτονική μελέτη: Γεώργιος – Βλάσιος Πακαλίδης + Άρτεμις Βαλυράκη | Photo © Γιώργος Σφακιανάκης

Ένα εξελιγμένο σύστημα ελέγχου εξασφαλίζει ευελιξία, ακρίβεια και αποδοτικότητα. Το Voulkanizater αποδεικνύει πώς η αρχιτεκτονική, το φως και ο ήχος μπορούν να συνυπάρξουν, επαναπροσδιορίζοντας τη βιομηχανική κληρονομιά μέσα από μια πολυαισθητηριακή αστική εμπειρία.

Αρχιτεκτονική μελέτη: Γεώργιος – Βλάσιος Πακαλίδης + Άρτεμις Βαλυράκη | Photo © Γιώργος Σφακιανάκης

Αρχιτεκτονική μελέτη: Γεώργιος – Βλάσιος Πακαλίδης + Άρτεμις Βαλυράκη | Photo © Γιώργος Σφακιανάκης


Στοιχεία & Συντελεστές έργου:
Τίτλος έργου: Voulkanizater, Τυπολογία: Μετατροπή παλιόυ συνεργείου βουλκανιζατέρ σε  Hi–Fi bar–restaurant, Τοποθεσία: Κουκάκι – Αθήνα – Ελλάδα, Αρχιτεκτονική μελέτη: Γεώργιος | Βλάσιος Πακαλίδης + Άρτεμις Βαλυράκη, Η/Μ μελέτη: CLIMACOM, Μελέτη φωτισμού: Αφροδίτη Νέρη, Καλλιτεχνική επιμέλεια: Νεφέλη | Οφέλια Σαχβερντιάν, Κατασκευή: EPSILON CONSTRUCTION, Κείμενο παρουσίασης: Γεώργιος | Βλάσιος Πακαλίδης + Άρτεμις Βαλυράκη, Φωτογραφίες: Γιώργος Σφακιανάκης

English description: Architects Georgios | Vlasios Pakalidis and Artemis Valyraki transformed a former vulcanization workshop in Koukaki, Athens, into a Hi-Fi bar-restaurant that fuses industrial memory with contemporary refinement. The design preserves the existing shell and introduces a lightweight metal structure that both protects and enhances the original building, honoring its past while redefining its function.

The concept revolves around a “box-in-a-box” arrangement, where all service areas, kitchen, storage, and restrooms, are enclosed within an inner volume, leaving the outer zone open for dining, bar, and circulation. Raw materials such as exposed concrete, steel, and metal panels express the space’s industrial DNA, while subtle details, wheel rims above the bar, tire-inspired textures, and vintage signage references, pay homage to its vulcanization history.

Architectural design: Georgios – Vlasios Pakalidis + Artemis Valyraki | Photo © George Sfakianakis

Architectural design: Georgios – Vlasios Pakalidis + Artemis Valyraki | Photo © George Sfakianakis


“For the creative direction and branding, the team drew inspiration from vintage logos and signage of classic vulcanization shops and tire companies such as Michelin. A fully openable glass façade connects the interior with the urban fabric, inviting the neighbourhood energy of Koukaki into the space”.


Architectural design: Georgios – Vlasios Pakalidis + Artemis Valyraki | Photo © George Sfakianakis

Lighting design acts as a scenographic composition across three zones, using projectors, indirect illumination, and concealed RGBW LED strips to animate the space. At the bar, a light box and frosted glass panels create depth and theatrical contrast.

Architectural design: Georgios – Vlasios Pakalidis + Artemis Valyraki | Photo © George Sfakianakis

Architectural design: Georgios – Vlasios Pakalidis + Artemis Valyraki | Photo © George Sfakianakis

Architectural design: Georgios – Vlasios Pakalidis + Artemis Valyraki | Photo © George Sfakianakis

Architectural design: Georgios – Vlasios Pakalidis + Artemis Valyraki | Photo © George Sfakianakis

Architectural design: Georgios – Vlasios Pakalidis + Artemis Valyraki | Photo © George Sfakianakis

Architectural design: Georgios – Vlasios Pakalidis + Artemis Valyraki | Photo © George Sfakianakis

A sophisticated control system enables adaptability, precision, and efficiency. Voulkanizater demonstrates how architecture, light, and sound can converge to reinterpret industrial heritage into a multisensory urban experience.

Floor Plan, © Georgios – Vlasios Pakalidis + Artemis Valyraki

Elevation, © Georgios – Vlasios Pakalidis + Artemis Valyraki

Section, © Georgios – Vlasios Pakalidis + Artemis Valyraki


Facts & Credits:
Project title: Voulkanizater, Typology: A former vulcanization workshop transformed into a Hi-Fi bar-restaurant, Location: Koukaki – Athens – Greece, Architectural design: Georgios | Vlasios Pakalidis + Artemis Valyraki, E/M Engineering: CLIMACOM, Lighting design: Afroditi Neri, Creative direction: Nepheli-Ophelia Sachverdyan, Construction: EPSILON CONSTRUCTION, Text description: Georgios | Vlasios Pakalidis + Artemis Valyraki, Photography: George Sfakianakis

Υποβάλλετε ένα άρθρο

Το όνομά σας *

Το email σας *

Το θέμα του άρθρου σας *

kataskevesktirion.gr
kataskevesktirion.gr

Σχετικές δημοσιεύσεις

Αρχιτεκτονική μελέτη: idiom: studio for architecture + Λουκάς Μπάκας | Photo © Αλίνα Λέφα

22 Απριλίου 2026

Ένα ανακαινισμένο διαμέρισμα στην οδό Μπενάκη αποτελεί απόδειξη ότι η Αθηναϊκή ’60s αισθητική ανήκει στο σήμερα!


Διαβάστε το άρθρο

Μελέτη – Σχεδιασμός: Foil-S | Photo © Δημήτρης Μουγκός

20 Απριλίου 2026

Karate: Μέσα σε ένα ατμοσφαιρικό bar στο κέντρο της Θεσσαλονίκης με έντονο το ρετρό στοιχείο


Διαβάστε το άρθρο

Αρχιτεκτονική μελέτη – Interior design – Project management: DOMES ARCHITECTS | Photo © Φίλιππος Πανούλης

6 Απριλίου 2026

SNAPPI Office Hub: Ένα πρότυπο εργασιακό περιβάλλον στο κέντρο της Αθήνας γεμάτο έντονα & φωτεινά χρώματα


Διαβάστε το άρθρο

Αρχιτεκτονική μελέτη – Σχεδιασμός - Ανάπτυξη & Διαχείριση έργου: Two Αrchitects Studio | Photo © Δημήτρης Παύλου

31 Μαρτίου 2026

Ένα σύγχρονο αστικό καταφύγιο στην καρδιά του Βόλου


Διαβάστε το άρθρο

Αρχιτεκτονικός σχεδιασμός: Γκέλη Δημητρακοπούλου | Photo © Notion The Agency

30 Μαρτίου 2026

Πόμελο: Ένα μεζεδοπωλείο σε διατηρητέο κέλυφος, όπου η λιτότητα του σχεδιασμού αναδεικνύει την υλικότητα & τη νησιώτικη γεωμετρία


Διαβάστε το άρθρο

Αρχιτεκτονική μελέτη – Ανάπτυξη & Διαχείριση έργου: Space Dreams | Photo © Απόλλωνας Γλύκας

27 Μαρτίου 2026

[chilling timelessly]: Ένα ανακαινισμένο διαμέρισμα στην Κυψέλη, ενώνει το παρελθόν με τη σύγχρονη εποχή


Διαβάστε το άρθρο
Facebook __ Ακολουθήστε μας στο Facebook
Twitter __ Ακολουθήστε μας στο Twitter
Instagram __ Ακολουθήστε μας στο Instagram

Αναζήτηση

Επικοινωνήστε μαζί μας στο ακόλουθο email:

info[@]kataskevesktirion.gr

© 2025 Κατασκευές Κτιρίων. All Rights Reserved.