• Πρόσφατα έργα
    • Αρχιτεκτονικά
    • Design – Διακόσμηση
    • Μελέτες
    • Εργασίες
  • Δόμηση – Υποδομές
    • Ξενοδοχεία – Τουρισμός
    • Κατασκευές – Ακίνητα
    • Αστικές αναπλάσεις
    • Στατικά – Τοπογραφικά
  • Εξοικονόμηση – Ενέργεια
    • ΑΠΕ
    • Πράσινες επενδύσεις
    • Η/Μ Εγκαταστάσεις
    • Αυτοματισμοί – Τεχνολογία
  • Επιχειρήσεις
    • Εταιρικά Νέα
    • Ειδικές Τεχνολογίες
  • Αφιερώματα
  •  
Blue Dong: Ανακαίνιση ασιατικού εστιατορίου στο ξενοδοχείο Avra Imperial των Χανίων
2 Νοεμβρίου 2020
BASF και VITEX: Συμφωνία co-branding για το θερμομονωτικό υλικό NEOPOR®
3 Νοεμβρίου 2020

Αρχιτεκτονική μελέτη - Project management: Empi & associates architects, Photo © Πυγμαλίων Καρατζάς

THE BOLD TYPE Hotel: Μετατροπή διατηρητέου κτιρίου στην Πάτρα σε ξενοδοχείο 5 αστέρων

2 Νοεμβρίου 2020
Κατηγορίες
  • Αρχιτεκτονικά
Ετικέτες
  • boutique hotel
  • design
  • roof garden
  • THE BOLD TYPE Hotel
  • δάπεδα
  • διατηρητέο κτίριο
  • δωμάτια
  • επεμβάσεις
  • έπιπλα
  • κέλυφος
  • κουφώματα
  • λιθοδομή
  • λουτρά
  • μετατροπή
  • Πάτρα
  • φεγγίτης
  • χωρίσματα

Το αρχιτεκτονικό γραφείο EMPI & associates architects, ανέλαβε την μετατροπή ενός υπέροχου διατηρητέου κτιρίου στη Πάτρα, σε ένα υπερπολυτελές boutique ξενοδοχείο 5 αστέρων, όπου η παράδοση συναντά την μινιμαλιστική αισθητική, τη φαντασία και την αρχιτεκτονική μεταμόρφωση.

Η κατασκευή του διατηρητέου κτιρίου αποτελεί αναμφισβήτητα έργο τέχνης για την αρχιτεκτονική της Πάτρας και έχει πραγματοποιηθεί σε τρεις φάσεις. Η πρώτη τοποθετείται στα τέλη του 1800, η δεύτερη στις αρχές του περασμένου αιώνα και η τελευταία φάση, που αφορά και το μεγαλύτερο μέρος του κτιρίου, πραγματοποιήθηκε στις αρχές της δεκαετίας του 1910. 

Αρχιτεκτονική μελέτη – Project management: Empi & associates architects, Photo © Πυγμαλίων Καρατζάς


“Η ολοκλήρωση της τρίτης φάσης απέδωσε στο κτήριο την ιδιαίτερη αρχιτεκτονική του”.

Αρχιτεκτονική μελέτη – Project management: Empi & associates architects, Photo © Πυγμαλίων Καρατζάς


Το κτήριο ξεχωρίζει για τη θέση του, τη χωροθέτησή του στον ιδιωτικό του κήπο, την υποχώρησή του ως προς την οικοδομική γραμμή στον β’ όροφο, τη δημιουργία βεράντας, τη νοτίου προσανατολισμού ταράτσα του και φυσικά την αριστοκρατική του κάτοψη.

Αρχιτεκτονική μελέτη – Project management: Empi & associates architects, Photo © Πυγμαλίων Καρατζάς


“Στο κέλυφος εντυπωσιάζει o ισχυρός του χαρακτήρας”.

Αρχιτεκτονική μελέτη – Project management: Empi & associates architects, Photo © Πυγμαλίων Καρατζάς


Ενδεικτικά παρατηρούμε, πως οι περιηγητές της πλατείας Αγίου Γεωργίου σπαταλούν περισσότερη ώρα να χαζεύουν το κτήριο αυτό, παρά το Ρωμαϊκό θέατρο που βρίσκεται απέναντι. Η μετατροπή του, σε ξενοδοχείο 5 αστέρων, ήταν ό,τι καλύτερο μπορούσε να συμβεί, έτσι ώστε αυτό το -χαρακτηρισμένο ως έργο τέχνης- οικοδόμημα να διατηρηθεί σωστά για τις μελλοντικές γενιές.
Η επέμβαση, σε ολόκληρο το εύρος της, σεβάστηκε τον χαρακτήρα του κτηρίου και κύριο σκοπό είχε την αποκατάσταση και όχι την αντικατάσταση των επί μέρους στοιχείων του.
Με επιμέλεια και ειδικές τεχνικές αποκαταστάθηκαν όλα τα υπάρχοντα δάπεδα, τα εσωτερικά και εξωτερικά ξύλινα κουφώματα, ο περίτεχνος γύψινος διάκοσμος, οι τοιχογραφίες και η στέγη του.

Αρχιτεκτονική μελέτη – Project management: Empi & associates architects, Photo © Πυγμαλίων Καρατζάς


“Ο περιβάλλων χώρος του κτηρίου διατηρήθηκε ανέπαφος και οι όψεις του αποκαταστάθηκαν με ειδική τεχνική”.

Πρόκειται για ένα κέλυφος κτηρίου το οποίο επιτρέπει στον χρήστη να διαβιώσει άνετα σε αυτό χωρίς να κάνει απαραίτητα χρήση του μηχανολογικού του εξοπλισμού. Ειδικότερα, η μορφολογία των εξωτερικών κουφωμάτων με τον ανώτατο, ανοιγόμενο φεγγίτη, το πάχος και η πυκνότητα της εξωτερικής λιθοδομής, η κεραμοσκεπή που αναπτύσσεται σε ξεχωριστό επίπεδο και η ογκομετρία του κτηρίου προσφέρουν την απαραίτητη θερμική άνεση, έτσι ώστε ο μηχανολογικός εξοπλισμός να έχει τοποθετηθεί επικουρικά στο κτήριο για να διευκολύνει τον χρήστη, τις μέρες με ακραίες διαφορές στη θερμοκρασία.

Αρχιτεκτονική μελέτη – Project management: Empi & associates architects, Photo © Πυγμαλίων Καρατζάς


Μεγάλο στοίχημα, το οποίο κερδήθηκε, ήταν η εφαρμογή μιας κεντρικής ιδέας που, εν συντομία, θέλει τον επισκέπτη να έχει σαφή εντύπωση των ορίων του παλιού και του νέου, τόσο σε οικοδομικό επίπεδο όσο και σε επίπεδο χρήσης.

Αρχιτεκτονική μελέτη – Project management: Empi & associates architects, Photo © Πυγμαλίων Καρατζάς


“Όλες οι επεμβάσεις για την επαναφορά του κτηρίου στην αρχική του αίγλη καταγράφηκαν λεπτομερώς, και εγκρίθηκαν μία-μία από τις αρμόδιες υπηρεσίες”.

Βασικό ζήτημα όλης της πρότασης ήταν το πώς μπορούσε να δημιουργηθεί ένα σύστημα, που να πηγαίνει πέρα από το άθροισμα των μεμονωμένων συστατικών του. Από την πλευρά του αρχιτέκτονα, αυτά περιελάμβαναν πρώτον το υπάρχον ιστορικό κέλυφος και δεύτερον την ενσωμάτωση της νέας χρήσης.

Αρχιτεκτονική μελέτη – Project management: Empi & associates architects, Photo © Αλέξανδρος Κίκινας


“Από την πλευρά του επιχειρηματία, το σύστημα αυτό αφορούσε τη γενική φιλοσοφία τής λειτουργίας”.

Όσο αφορά την επίπλωση περιλαμβάνει custom made έπιπλα εξαιρετικής ποιότητας που σχεδιάστηκαν ξεχωριστά για το κάθε δωμάτιο και signature φωτιστικά πολύ γνωστών οίκων.

Αρχιτεκτονική μελέτη – Project management: Empi & associates architects, Photo © Πυγμαλίων Καρατζάς


“Η ιδέα πίσω από το σχεδιασμό των επίπλων και την επιλογή των φωτιστικών έχει αναφορές στην προηγουμένη χρήση του κτηρίου ως κατοικία”.

Από το φωτογραφικό υλικό που συλλέχθηκε από το αρχειο της Υπεηρεσίας Νεοτερων Μνημείων, στα χρόνια που το κτήριο κατοικούταν, παρατηρήθηκν στοιχεία επίπλωσης με αναφορες στις δεκαετιές 30s-50s.

Αρχιτεκτονική μελέτη – Project management: Empi & associates architects, Photo © Πυγμαλίων Καρατζάς


Έτσι προεκύψε και το στυλ επίπλωσης με αντικείμενα σχεδιασμένα με αναφορές στo Danish style, με ζεστους τόνους ξύλου καρυδίας και λεπτές καμπύλες, ενω ο φωτισμός εχει αναφορες σε αντικείμενα του Bauhaus. Από την άλλη πλευρά, ο σχεδιασμός των λουτρών είναι υποδειγματικός και η επιλογή των στρωμάτων εξαιρετική.

Αρχιτεκτονική μελέτη – Project management: Empi & associates architects, Photo © Αλέξανδρος Κίκινας


“Η επέμβαση έχει σκοπό να διατηρήσει τα στοιχεία «μνήμης» μέσα στο κτήριο”.

Αρχιτεκτονική μελέτη – Project management: Empi & associates architects, Photo © Πυγμαλίων Καρατζάς


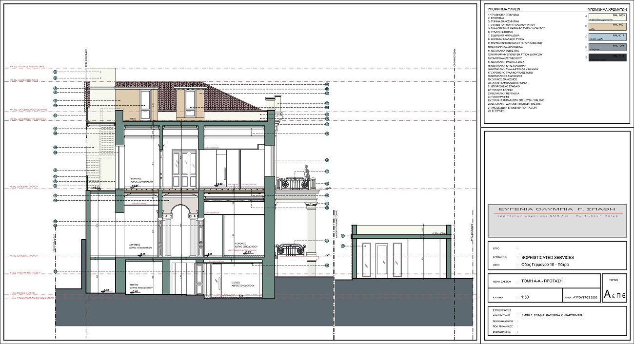
Το υπάρχον ιστορικό κέλυφος, στα σημεία όπου δεν υπάρχει παρέμβαση, διατηρεί το αρχικό του χρώμα, αυτό της μανόλιας (το χρώμα επιλέχθηκε μετά από μελέτη ενός τεράστιου φωτογραφικού αρχείου των αρχικών ιδιοκτητών), ενώ οι νέες κατασκευαστικές παρεμβάσεις, όπως π.χ τα λουτρά, τα νέα χωρίσματα, οι ταμπλάδες που έχουν χρήση πλάτης για τα κρεβάτια αλλά και οι νέες θύρες, επισημαίνονται με τρία διαφορετικά χρώματα, ένα για κάθε όροφο.
Το κριτήριο επιλογής των τριών χρωμάτων συνδέθηκε με το κτίριο και το σημαντικό περιβάλλον του:
  • Brick red για το αρχαίο ρωμαϊκό θέατρο
  • Leaf green για τον υπέροχο κήπο
  • Dark blue για την ανάμνηση
Τα κυριότερα χαρακτηριστικά του κτηρίου, πέρα από τα συναρπαστικά του νέα δωμάτια και τα υπέροχα διατηρητέα στοιχεία του, αποτελούν το επισκέψιμο πια roof garden με θέα σε όλη την πόλη και το ρωμαϊκό αρχαίο θέατρο, η αίθουσα του πρωινού και ο μεγαλοπρεπής του κήπος.

Αρχιτεκτονική μελέτη – Project management: Empi & associates architects, Photo © Αλέξανδρος Κίκινας


Στοιχεία & Συντελεστές έργου:

Τίτλος έργου: THE BOLD TYPE HOTEL, Τυπολογία: Ξενοδοχείο, Τοποθεσία: Πάτρα – Ελλάδα, Αρχιτεκτονική μελέτη – Project management: Empi & associates architects, Ομάδα μελέτης: Έμπη Σπαθή – Κατερίνα Λιαρομμάτη, Κατασκευή: TRIAINA Α.Ε. – TESCON, Χρόνος μελέτης: 2018 – 2019, Περίοδος κατασκευής: 01/01-2020 έως 01/08/2020, Κείμενο παρουσίασης: Empi & associates architects, Φωτογραφίες: Πυγμαλίων Καρατζάς – Αλέξανδρος Κίκινας

Προμηθευτές έργου:

Mini fridge: SMEG / PETCO, Φωτιστικά: ARTEMIDE / PLUS LIGHT, Επίπλωση: Caligaris – Cocomat – Papadopoulou collection – Maison – Enca Moisiadis, Πλακάκια: BOX, Είδη υγιεινής: Καστανίδης, Φωτισμός εξωτερικού – εσωτερικου χώρου: SALEMI – PLUS LIGHT – KAFKAS – DELIGHTFULL, Υφάσματα – κουρτίνες: K. Μάνεση O.E. – ΚΑ / Βουτυρά – Οικονόμου, Ξυλεία: Καστρί, Στρώματα: Cocomat, Υαλοπίνακες: A. Ανυφαντής, Ξυλουργικές εργασίες: Παναγιώτης Παναγόπουλος, Χειροποίητη επίπλωση / ξύλινα κουφώματα: Νίκος Λυκούδης, Σιδηρουργικές εργασίες: Ανδρέας Τριανταφυλλόπουλος, Steam rooms: Γ. Κουρτέσης, Εκτυπώσεις ψηφιακών έργων τέχνης: Σ. Κοτικιάν, Εκτυπώσεις / γραφιστική επεξεργασία: we design (Θεανώ Πετρίδου), Original Art work: Σοφία Βαγενά, Original digital art work: Αλεξάνδρα Τηλιγάδη, Ιματισμός: Zara Home – MITOS, Σερβίτσια: Soul Studio

English description: EMPI & associates architects converted a listed building in Patras, Greece, into a luxury 5-star boutique hotel, where tradition meets minimalism, fantasy and architectural transformation

The original construction of the listed building – a work of art for the architecture of Patras – took place in three phases. The first is placed in the late 1800s, the second at the beginning of the last century and the last phase, which concerns the largest volume of the building, took place in the early 1920s.

Architectural design and project management: Empi & associates architects, Photo © Alexandros Kikinas


“The completion of the third phase gave the building its special architecture”.

Architectural design and project management: Empi & associates architects, Photo © Alexandros Kikinas


The building stands out for its location, its private garden, its retreat to the building line on the second floor in order to create a terrace, its south-facing terrace and of course its aristocratic floor plan.

Architectural design and project management: Empi & associates architects, Photo © Alexandros Kikinas


“His strong character impresses in the shell”.

Architectural design and project management: Empi & associates architects, Photo © Alexandros Kikinas


Indicatively, architects observe that the travelers there spend more time admiring this building than the Roman theater that is opposite. Turning it into a 5-star hotel was the best thing that could happen so that this artifact building could be properly preserved for future generations.

Architectural design and project management: Empi & associates architects, Photo © Pygmalion Karatzas


The intervention in its entirety respected the character of the building and its main purpose was the restoration and not the replacement of its individual elements. All the existing floors, the interior and exterior wooden frames, the ornate plaster decoration, the frescoes and the roof were restored with care and special techniques.

Architectural design and project management: Empi & associates architects, Photo © Pygmalion Karatzas


“The surrounding area of the building was kept intact and its facades were restored with a special technique”.

Architectural design and project management: Empi & associates architects, Photo © Pygmalion Karatzas


A big bet that was won was the implementation of a central idea which in short wants the visitor to have a clear impression of the limits of the old and the new both in terms of construction and use.

Architectural design and project management: Empi & associates architects, Photo © Pygmalion Karatzas


“All interventions for the restoration of the building to its original glory were recorded in detail and approved one by one by the competent services”.

Architectural design and project management: Empi & associates architects, Photo © Pygmalion Karatzas


A key issue of the whole proposal was how architects can create a system that goes beyond the sum of its individual components. From the architect’s point of view, these were the 1st the existing historical shell and the 2nd the incorporation of the new use.

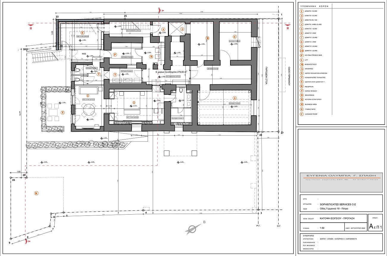
Ground floor plan, © Empi & associates architects


“From the entrepreneur’s point of view, this was the general philosophy of the operation”.

As for the furniture, it includes custom made furniture of exceptional quality that designed separately for each room and signature lighting.

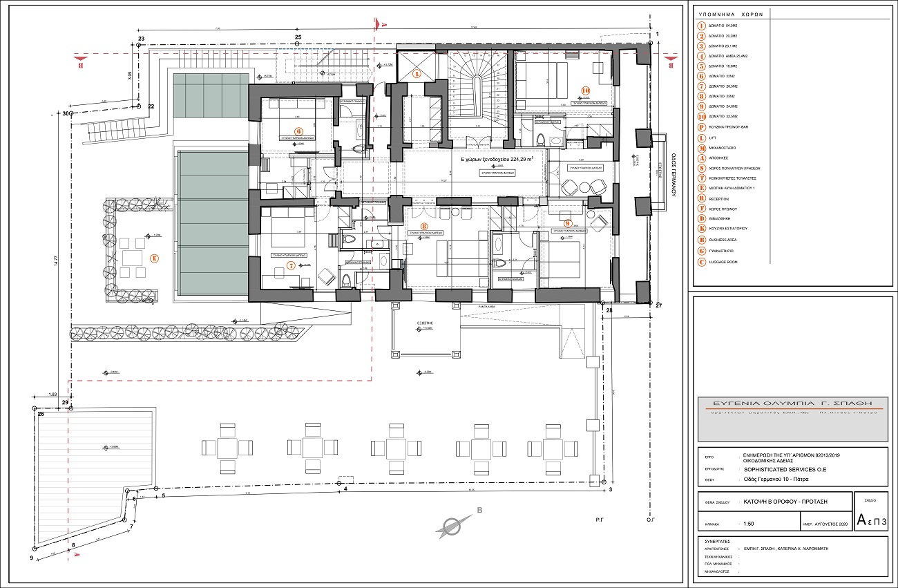
1st floor plan, © Empi & associates architects


“Beyond that, the design of the bathrooms is exemplary and the choice of mattresses is excellent”.

2nd floor plan, © Empi & associates architects


The existing historic shell, in the places where architects do not intervene, retains its original color of magnolia (the color was chosen after studying a huge photographic archive of the original owners), while the new construction-interventions are marked with three different colors, one for each floor.

Section A-A, © Empi & associates architects


The criterion for selecting the three colors was related to the building and its important environment:
  • Brick red for the ancient Roman theatre
  • Leaf green for the wonderful garden
  • Dark blue for the memory
Highlights of the building, in addition to its exciting new rooms and wonderful preserved elements, are the now visitable roof garden overlooking the entire city and the ancient Roman theater, the breakfast room and its majestic garden.

Section B-B, © Empi & associates architects


Facts & Credits:

Project title: THE BOLD TYPE HOTEL, Typology: Hotel, Location: Patras – Greece, Architectural design and project management: Empi & associates architects, Design team: Empi Spathi – Katerina Liarommati , Construction: TRIAINA S.A. – TESCON, Study date: 2018 – 2019, Construction date: From 01/01-2020 until 01/08/2020, Text description: Empi & associates architects, Photography: Pygmalion Karatzas – Alexandros Kikinas

Υποβάλλετε ένα άρθρο

Το όνομά σας *

Το email σας *

Το θέμα του άρθρου σας *

kataskevesktirion.gr
kataskevesktirion.gr

Σχετικές δημοσιεύσεις

Αρχιτεκτονική μελέτη: Cristina & Vadim Ghiorghiu + Βιβή Καρούντζου | Photo © Cristina Ghiorghiu

15 Απριλίου 2026

Mazi: Μια μινιμαλιστική βίλα που φωλιάζει ήσυχα σε ένα παραθαλάσσιο χωριό της Πάρου


Διαβάστε το άρθρο

Αρχιτεκτονική μελέτη & Κατασκευή: OIKOMΟΡΦΕΣ | Photo © Βαγγέλης Ρασσιάς

8 Απριλίου 2026

Ένα boutique hotel στη Λακωνική Μάνη «ισορροπεί» ανάμεσα στην παραδοσιακή αρχιτεκτονική & τη σύγχρονη εμπειρία φιλοξενίας


Διαβάστε το άρθρο

Αρχιτεκτονική μελέτη: anagram architecture | Photo © Creative Photo Room – Μαρία Ευθυμίου

7 Απριλίου 2026

Ένα συγκρότημα 24 κοινωνικών κατοικιών στη Λάρνακα «μεταμορφώνεται» σε σύγχρονο αστικό χωριό


Διαβάστε το άρθρο

Αρχιτεκτονικό γραφείο: The Hive Architects | Photo © Γιώργος Σφακιανάκης

3 Απριλίου 2026

Aegean Color Rooms: Ένα ειδυλλιακό «καταφύγιο» στο νησί της Πάρου «υποκλίνεται» στην κυκλαδίτικη ομορφιά


Διαβάστε το άρθρο

Σχεδιασμός & Επίβλεψη κατασκευής: Studio Syn | Κατασκευή: Δημήτρης Γριμέκης - R.I.SE. Τεχνική | Photo © Μαριάνα Μπίστη

2 Απριλίου 2026

Ένα παλιό κτίσμα στον Κεραμεικό μετατρέπεται σε 2 αυτόνομες κατοικίες που αποπνέουν σύγχρονο στιλ και vintage αισθητική


Διαβάστε το άρθρο

Αρχιτεκτονική μελέτη και εσωτερικός σχεδιασμός: KP Office | Επικεφαλής Αρχιτέκτονας: Κωνσταντίνος Πίττας | Photo © Σταύρος Νιφλής

26 Μαρτίου 2026

Η μεσογειακή απλότητα και η παραδοσιακή Κυκλαδίτικη αρχιτεκτονική ενώνονται σε αυτή τη κατοικία στην Πάρο


Διαβάστε το άρθρο
Facebook __ Ακολουθήστε μας στο Facebook
Twitter __ Ακολουθήστε μας στο Twitter
Instagram __ Ακολουθήστε μας στο Instagram

Αναζήτηση

Επικοινωνήστε μαζί μας στο ακόλουθο email:

info[@]kataskevesktirion.gr

© 2025 Κατασκευές Κτιρίων. All Rights Reserved.