• Πρόσφατα έργα
    • Αρχιτεκτονικά
    • Design – Διακόσμηση
    • Μελέτες
    • Εργασίες
  • Δόμηση – Υποδομές
    • Ξενοδοχεία – Τουρισμός
    • Κατασκευές – Ακίνητα
    • Αστικές αναπλάσεις
    • Στατικά – Τοπογραφικά
  • Εξοικονόμηση – Ενέργεια
    • ΑΠΕ
    • Πράσινες επενδύσεις
    • Η/Μ Εγκαταστάσεις
    • Αυτοματισμοί – Τεχνολογία
  • Επιχειρήσεις
    • Εταιρικά Νέα
    • Ειδικές Τεχνολογίες
  • Αφιερώματα
  •  
Στη HotelBrain η εκμετάλλευση του πρώην Hotel Nikopolis συμφερόντων Τ. Μυστακίδη
7 Ιουνίου 2024
Η EUROLAMP συνέβαλε ως μεγάλος χορηγός του 4ου Ποδηλατικού 2ήμερου Αλιγκάρι Bike 2024
10 Ιουνίου 2024

Αρχιτεκτονική μελέτη: Kipseli Architects | Κίρκη Μαριολοπούλου, Photo © Γιώργος Μεσσαριτάκης

Scale House: Μια κατοικία στη Φιλοθέη που αποπνέει μεγαλοπρέπεια & δυναμισμό μέσα από το design της

10 Ιουνίου 2024
Κατηγορίες
  • Αρχιτεκτονικά
Ετικέτες
  • Scale House
  • δυναμισμός
  • εμφανές σκυρόδεμα
  • κατοικία
  • μεγαλοπρέπεια
  • μεταλλικά περιγράμματα
  • μετόπες
  • μωσαϊκά
  • ξύλινα δάπεδα
  • όγκοι
  • παράθυρα
  • Φιλοθέη

H κατοικία “Scale House”, που σχεδιάστηκε από το αρχιτεκτονικό γραφείο Kipseli Architects, βρίσκεται στη Φιλοθέη Αττικής και αποτελεί μια αρχιτεκτονική μαρτυρία της διακριτικής ισορροπίας μεταξύ επιθυμίας και ανάγκης, χαράς και απόλαυσης, άνεσης και πολυτέλειας. Το αρχιτεκτονικό αφήγημα του “Scale House” βασίζεται στην επανερμηνεία του κλασικού αρχετυπικού σπιτιού και την μετεξέλιξή του σε μια σύγχρονη και λειτουργική τριώροφη μονοκατοικία.

Η κατοικία αυτή καθώς αποτελείται από τρεις αρχετυπικούς διακριτούς όγκους, εξυπηρετώντας ο καθένας το δικό του σκοπό, ακτινοβολεί αίσθημα ξεκάθαρης χωρικής ιεραρχίας και τάξης. Ο μικρός όγκος της που βρίσκεται στην πρόσοψη ενσωματώνει τον χώρο εισόδου / κατώφλι στο ισόγειο και ένα παιδικό δωμάτιο στον πρώτο όροφο. Από την άλλη πλευρά, ο πίσω μικρός όγκος της φιλοξενεί το πρόχειρο καθιστικό, την κουζίνα και αντίστοιχα το δεύτερο παιδικό δωμάτιο στον πρώτο όροφο. Αντίστοιχα, ο αναλογικά μεγαλύτερος κεντρικός όγκος περιλαμβάνει χώρο καθιστικού διπλού ύψους καθώς και το κύριο υπνοδωμάτιο στον δεύτερο όροφο.

Αρχιτεκτονική μελέτη: Kipseli Architects | Κίρκη Μαριολοπούλου, Photo © Γιώργος Μεσσαριτάκης


“Η αλληλεπίδραση αυτών των όγκων «σπιτιών» διαφορετικών μεγεθών, με τα μαύρα μεταλλικά περιγράμματα παραθύρων, με τις στέγες, τις μετόπες και τους εξώστες με καρβουνιασμένο ξύλο, δημιουργεί ένα ενδιαφέρον μορφολογικό παιχνίδι που παραπέμπει σε ένα θραύσμα ενός σύγχρονου οικισμού μέσα στο αστικό τοπίο”.


Αρχιτεκτονική μελέτη: Kipseli Architects | Κίρκη Μαριολοπούλου, Photo © Γιώργος Μεσσαριτάκης

Η χρήση του ανεπίχριστου σκυροδέματος ως το κύριο δομικό υλικό της κατοικίας, έχει πολλαπλό σκοπό. Αποδίδει στο σύνολο των όγκων αίσθηση συνοχής, αναδεικνύει την ανθεκτικότητα και την διαχρονική αξία του αρχιτεκτονικού σχεδιασμού.
Η σκόπιμη χρήση αυτού του υλικού αποσκοπεί στο να ισορροπήσει τον τολμηρό μεταμοντέρνο αρχιτεκτονικό σχεδιασμό με την συνήθη χρήση του εμφανούς σκυροδέματος στον κόσμο της μοντέρνας αρχιτεκτονικής, ενώ παράλληλα να ενισχύσει την αντίφαση ανάμεσα στην μπρουτάλ αδρότητα του εμφανούς σκυροδέματος και στον ρομαντισμό του αρχετυπικού σπιτιού.

Αρχιτεκτονική μελέτη: Kipseli Architects | Κίρκη Μαριολοπούλου, Photo © Γιώργος Μεσσαριτάκης

[Παρά το μέγεθός του, κάθε μικρότερος όγκος της κατοικίας σχεδιάστηκε με την ίδια προσοχή στη λεπτομέρεια και την αρχιτεκτονική σημασία όπως και ο μεγαλύτερος κεντρικός όγκος. Προκειμένου να διαφοροποιηθεί ανεπαίσθητα η μορφή και η υφή μεταξύ των όγκων διαφορετικού μεγέθους, χρησιμοποιήθηκαν ξύλινες σανίδες καλουπώματος με μισό πλάτος για τους μικρότερους όγκους, ενώ ολόκληρες σανίδες χρησιμοποιήθηκαν για τον κεντρικό μεγαλύτερο όγκο.]

Αρχιτεκτονική μελέτη: Kipseli Architects | Κίρκη Μαριολοπούλου, Photo © Γιώργος Μεσσαριτάκης

Οι εσωτερικοί χώροι του σπιτιού ακολουθούν το αφήγημα της κλίμακας μέσω της δημιουργίας ιδιαίτερων αρχιτεκτονικών στοιχείων, όπως το γιγαντιαίο τζάκι από εμφανές σκυρόδεμα στη μέση του καθιστικού και η υπερμεγέθης βιβλιοθήκη / παράθυρο. Αυτά λειτουργούν ως κεντρικά σημεία ενδιαφέροντος, αποπνέοντας στους χώρους διημέρευσης αίσθηση μεγαλοπρέπειας και δυναμισμού. Το παιχνίδι των αναλογιών ενισχύεται με την επιλογή των υλικών: μασίφ ξύλινα δάπεδα διαφορετικών μεγεθών και σχημάτων, μωσαϊκά δάπεδα με ξεχωριστά μοτίβα, καθώς και ξύλινες κατασκευές με πηχάκια που ενσωματώνουν αρμονικά ποικίλες λειτουργίες και χρήσεις.

Αρχιτεκτονική μελέτη: Kipseli Architects | Κίρκη Μαριολοπούλου, Photo © Γιώργος Μεσσαριτάκης


«Ο σχεδιασμός του ‘Scale House’ ωστόσο, δεν αφορά μόνο τους φυσικούς χώρους και την αλληλεπίδραση μεταξύ μικρών και μεγάλων ανοιγμάτων, αφορά επίσης τα συναισθήματα και τις εμπειρίες που προκαλούν».


Αρχιτεκτονική μελέτη: Kipseli Architects | Κίρκη Μαριολοπούλου, Photo © Γιώργος Μεσσαριτάκης

Παρά την αδιαμφισβήτητη ευρυχωρία του, το “Scale House” μας παροτρύνει να διερωτηθούμε για το πραγματικό νόημα ενός μεγάλου σπιτιού και για το τι χρειαζόμαστε πραγματικά για να είμαστε ευτυχισμένοι. Μας υπενθυμίζει έμμεσα ότι μερικές φορές, τα μικρά πράγματα στη ζωή μπορούν να μας χαρίσουν τη μεγαλύτερη ευχαρίστηση και χαρά.
Κατά βάση, είναι μια αρχιτεκτονική αλληγορία των ανθρώπινων επιθυμιών που στόχο έχει να μας δείξει πώς η αέναη αναζήτηση του περισσότερου και του μεγαλύτερου μπορεί μερικές φορές να μας απομακρύνει από αυτό που πραγματικά χρειαζόμαστε.

Αρχιτεκτονική μελέτη: Kipseli Architects | Κίρκη Μαριολοπούλου, Photo © Γιώργος Μεσσαριτάκης


Στοιχεία & Συντελεστές έργου:
Τίτλος έργου: Scale House, Τυπολογία: Ιδιωτική κατοικία, Τοποθεσία: Φιλοθέη Αττικής – Αθήνα, Αρχιτεκτονική μελέτη: Kipseli Architects, Υπεύθυνοι αρχιτεκτονικής μελέτης: Κίρκη Μαριολοπούλου – Διονύσης Σοτοβίκης, Ομάδα αρχιτεκτονικής μελέτης: Στυλιανός Αξιωτάκης – Χρύσα Σκιαδά – Μαρία Τζαβλά, Ομάδα σχεδιασμού εσωτερικών χώρων: Αγγελική Βενετάκη – Σοφία Κόνιαρη, Στατική μελέτη: Γιώργος Παπαργύρης, Ηλεκτρομηχανολογική μελέτη: Στέλιος Βενιέρης, Μελέτη φωτισμού: Halo Architectural Lighting, Αρχιτεκτονική τοπίου: Ελένη Τσιριντάνη, Κατασκευή: Kappa Beta Developments, Επιφάνεια οικοπέδου: 807 m², Δομημένη επιφάνεια: 530 m², Έτος υλοποίησης: 2023, Κείμενο παρουσίασης: Kipseli Architects | Κίρκη Μαριολοπούλου, Φωτογραφίες: Γιώργος Μεσσαριτάκης

English description: Situated in the northern suburbs of Athens, Greece, the Scale House by Kipseli Architects is a captivating three-storey villa that stands as an architectural testament to the subtle balance between desire and necessity, joy and pleasure, comfort and luxury.

The design narrative of the Scale House lies in the reinterpretation of the classic house archetype and its evolution into a contemporary and functional three-storey villa. Comprising of three distinct housing volumes, each serving its own purpose, the residence radiates a clear sense of spatial hierarchy and order. The small housing volume positioned at the front serves as the entrance lobby on the ground floor and one child’s bedroom on the first floor.

Architectural design: Kipseli Architects | Kirki Mariolopoulou, Photo © George Messaritakis

Meanwhile, the rear small volume accommodates the family room, kitchen, and the second child’s bedroom. The central volume, proportionally larger than its counterparts, encompasses the double-height living space as well as the master bedroom and bathroom on the second floor.

Architectural design: Kipseli Architects | Kirki Mariolopoulou, Photo © George Messaritakis


“The juxtaposition of these concrete volumes of varying scales with black metal-outlined window frames, pitched rooftops and charred wood balconies, creates an engaging interplay of form and space, reminiscent of a contemporary village fragment within the cityscape”.


Architectural design: Kipseli Architects | Kirki Mariolopoulou, Photo © George Messaritakis

The use of exposed concrete as the primary material throughout the structure not only brings everything together but also emphasizes the design’s strength and timelessness. Its intentional use aims to balance the boldness of the design with the familiarity and convenience of concrete in the modern architectural world, while intensifying the contrast between the roughness and brutality of exposed concrete and the romantic notion of a traditional house archetype.

Architectural design: Kipseli Architects | Kirki Mariolopoulou, Photo © George Messaritakis

[Despite its size, each of the smaller volumes is designed with the same attention to detail and architectural significance as the larger central volume. Half-sized shuttering planks were used for the smaller volumes, while whole shuttering planks were used for the central volume, creating a subtle yet noticeable difference in texture and form.]

Architectural design: Kipseli Architects | Kirki Mariolopoulou, Photo © George Messaritakis

Architectural design: Kipseli Architects | Kirki Mariolopoulou, Photo © George Messaritakis

The interior spaces of the house further emphasize the narrative of scale, featuring prominent elements like a gigantic concrete fireplace and an expansive window bookcase. These serve as focal points, infusing the living areas with a sense of grandeur and dynamism. The material palette, carefully curated to enhance the perception of proportion, includes elements such as parquet floors of varying sizes and scarpa terrazzo with its distinctive pattern, along with interior slatted wooden structures that seamlessly integrate diverse functions and spatial uses.

Architectural design: Kipseli Architects | Kirki Mariolopoulou, Photo © George Messaritakis

Architectural design: Kipseli Architects | Kirki Mariolopoulou, Photo © George Messaritakis

Architectural design: Kipseli Architects | Kirki Mariolopoulou, Photo © George Messaritakis


“The design of the ‘Scale House’, however, is not just about the physical spaces and the interaction between small and large openings; it is also about the emotions and experiences they evoke”.


Architectural design: Kipseli Architects | Kirki Mariolopoulou, Photo © George Messaritakis

Despite its undeniable spaciousness, “Scale house” encourages us to question the true meaning of a big house and what we actually need to be happy. It reminds us that sometimes, the small things in life can bring the greatest pleasure and comfort. Essentially, it’s an architectural allegory of human desires, with the aim to show how the pursuit of more can sometimes blind us to what we truly need.

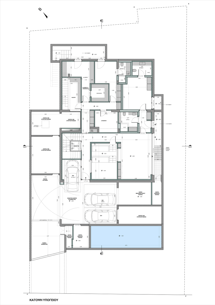
Basement floor plan, © Kipseli Architects

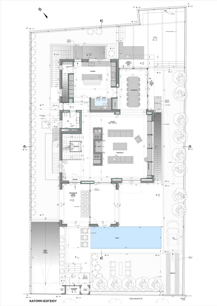
Ground floor plan, © Kipseli Architects

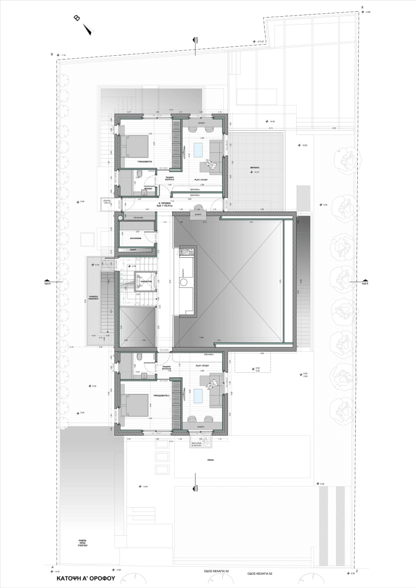
1st floor plan, © Kipseli Architects

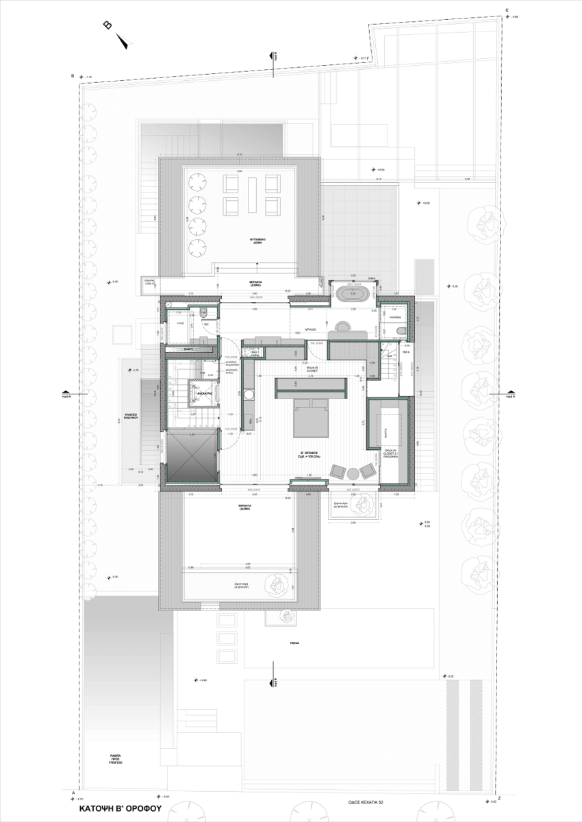
2nd floor plan, © Kipseli Architects

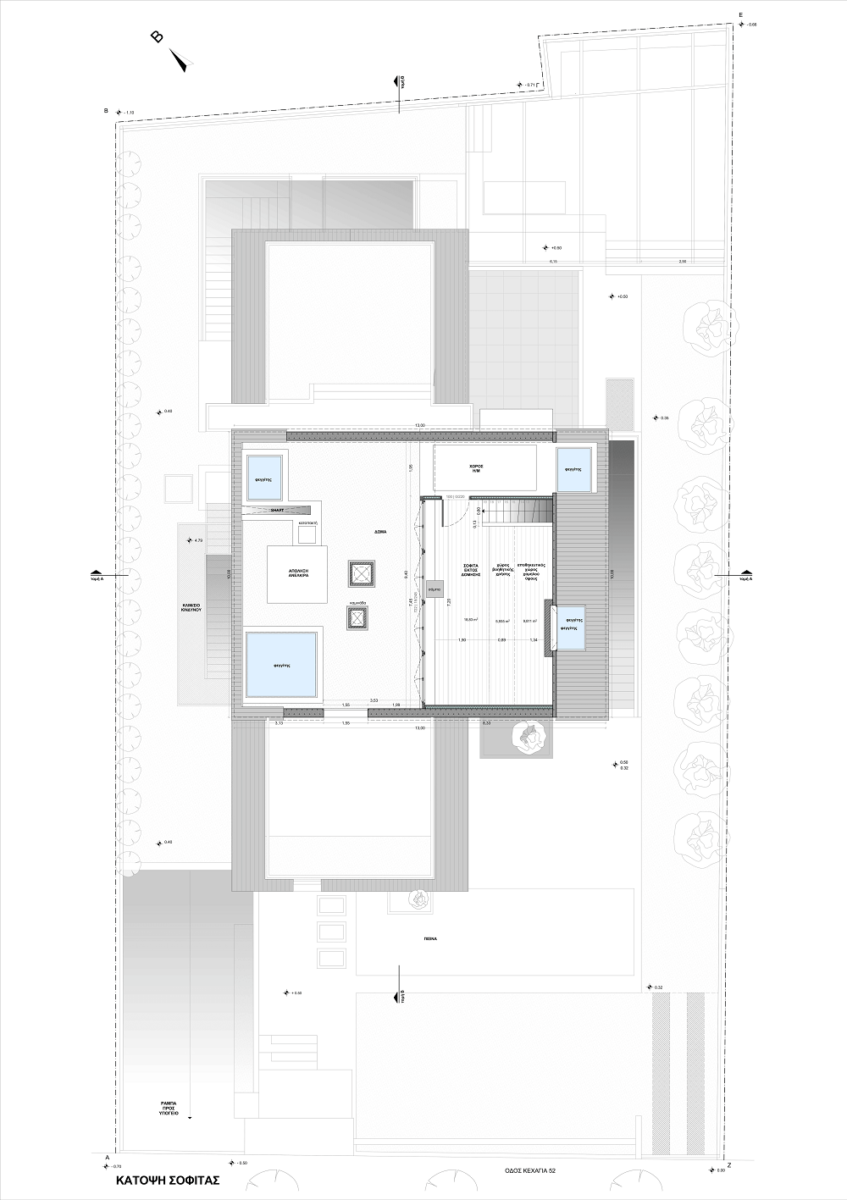
Loft plan, © Kipseli Architects

Roof plan, © Kipseli Architects

Southwest elevation, © Kipseli Architects

Northeast elevation, © Kipseli Architects

Southeast elevation, © Kipseli Architects

Northwest elevation, © Kipseli Architects

Section A, © Kipseli Architects

Section B, © Kipseli Architects

 


Facts & Credits:
Project title: Scale House, Typology: Private residence, Location: Filothei – Attica – Athens, Architectural design: Kipseli Architects, Principal Architects: Kirki Mariolopoulou – Dionisis Sotovikis, Architectural Design Team: Stylianos Axiotakis – Maria Tzavla – Chryssa Skiada, Interior Design Team: Aggeliki Venetaki – Sofia Koniari, Structural design: Georgios Papargyris, E/M engineering: Stelios Venieris, Lighting design: Halo Architectural Lighting, Landscaping:  Eleni Tsirintani, Construction: Kappa Beta Developments, Site size: 807 m², Project size: 530 m², Year of completion: 2023, Text description: Kipseli Architects | Kirki Mariolopoulou, Photography: George Messaritakis

Υποβάλλετε ένα άρθρο

Το όνομά σας *

Το email σας *

Το θέμα του άρθρου σας *

kataskevesktirion.gr
kataskevesktirion.gr

Σχετικές δημοσιεύσεις

Αρχιτεκτονική μελέτη - Εσωτερικός σχεδιασμός & Concept design: G2Lab | Photo © Δημήτρης Σπύρου

17 Απριλίου 2026

Oreno Mountain Retreat: Ένα μαγευτικό καταφύγιο που κρύβεται μέσα στην αυθεντική ομορφιά των Ζαγοροχωρίων


Διαβάστε το άρθρο

Αρχιτεκτονική μελέτη: Cristina & Vadim Ghiorghiu + Βιβή Καρούντζου | Photo © Cristina Ghiorghiu

15 Απριλίου 2026

Mazi: Μια μινιμαλιστική βίλα που φωλιάζει ήσυχα σε ένα παραθαλάσσιο χωριό της Πάρου


Διαβάστε το άρθρο

Αρχιτεκτονική μελέτη & Κατασκευή: OIKOMΟΡΦΕΣ | Photo © Βαγγέλης Ρασσιάς

8 Απριλίου 2026

Ένα boutique hotel στη Λακωνική Μάνη «ισορροπεί» ανάμεσα στην παραδοσιακή αρχιτεκτονική & τη σύγχρονη εμπειρία φιλοξενίας


Διαβάστε το άρθρο

Αρχιτεκτονική μελέτη: anagram architecture | Photo © Creative Photo Room – Μαρία Ευθυμίου

7 Απριλίου 2026

Ένα συγκρότημα 24 κοινωνικών κατοικιών στη Λάρνακα «μεταμορφώνεται» σε σύγχρονο αστικό χωριό


Διαβάστε το άρθρο

Αρχιτεκτονικό γραφείο: The Hive Architects | Photo © Γιώργος Σφακιανάκης

3 Απριλίου 2026

Aegean Color Rooms: Ένα ειδυλλιακό «καταφύγιο» στο νησί της Πάρου «υποκλίνεται» στην κυκλαδίτικη ομορφιά


Διαβάστε το άρθρο

Σχεδιασμός & Επίβλεψη κατασκευής: Studio Syn | Κατασκευή: Δημήτρης Γριμέκης - R.I.SE. Τεχνική | Photo © Μαριάνα Μπίστη

2 Απριλίου 2026

Ένα παλιό κτίσμα στον Κεραμεικό μετατρέπεται σε 2 αυτόνομες κατοικίες που αποπνέουν σύγχρονο στιλ και vintage αισθητική


Διαβάστε το άρθρο
Facebook __ Ακολουθήστε μας στο Facebook
Twitter __ Ακολουθήστε μας στο Twitter
Instagram __ Ακολουθήστε μας στο Instagram

Αναζήτηση

Επικοινωνήστε μαζί μας στο ακόλουθο email:

info[@]kataskevesktirion.gr

© 2025 Κατασκευές Κτιρίων. All Rights Reserved.