Την ολική αναδιαμόρφωση της όψης και των εσωτερικών διαρρυθμίσεων ενός κτιρίου γραφείων στο Παλαιό Φάληρο, ολοκλήρωσε πρόσφατα το αρχιτεκτονικό γραφείο Tsolakis Architects, θέτοντας ως στόχο την ανάδειξη των δυνατοτήτων ενός σύγχρονου γραφειακού χώρου και την επανερμηνεία της αρχιτεκτονικής των παλαιότερων ετών.
Το υφιστάμενο πενταόροφο κτίριο χρονολογείται από το 1996 και χαρακτηρίζεται από το συμμετρικό κέλυφός του και τον μνημειακό χαρακτήρα του. Ο αρχικός έντονος κάνναβος του υαλοπετάσματος της όψης αντικαθίσταται από ενιαία υαλοπετάσματα που αναπτύσσονται στο μέγιστο θεμιτό ύψος και μήκος, αφήνοντας τη θέα απρόσκοπτη.
Επιπρόσθετα, το σύμπλεγμα των απρόσμενων θεάσεων ανάμεσα στους εσωτερικούς και εξωτερικούς χώρους, καθώς και το στοιχείο των υψίκορμων ανοιγμάτων, συνοψίζουν αυτήν τη ρυθμική μεταβολή και παράθεση των στοιχείων θέασης και ογκοπλασίας.
Το στέγαστρο στον χώρο του ισογείου υποδέχεται τον επισκέπτη στο κτίριο, καθώς το στέγαστρο στο δώμα διαμορφώνει τη στέψη. Με αυτόν τον τρόπο, ολοκληρώνεται η αίσθηση της συνέπειας και διαδοχής των διακριτών μελών του κτιρίου.
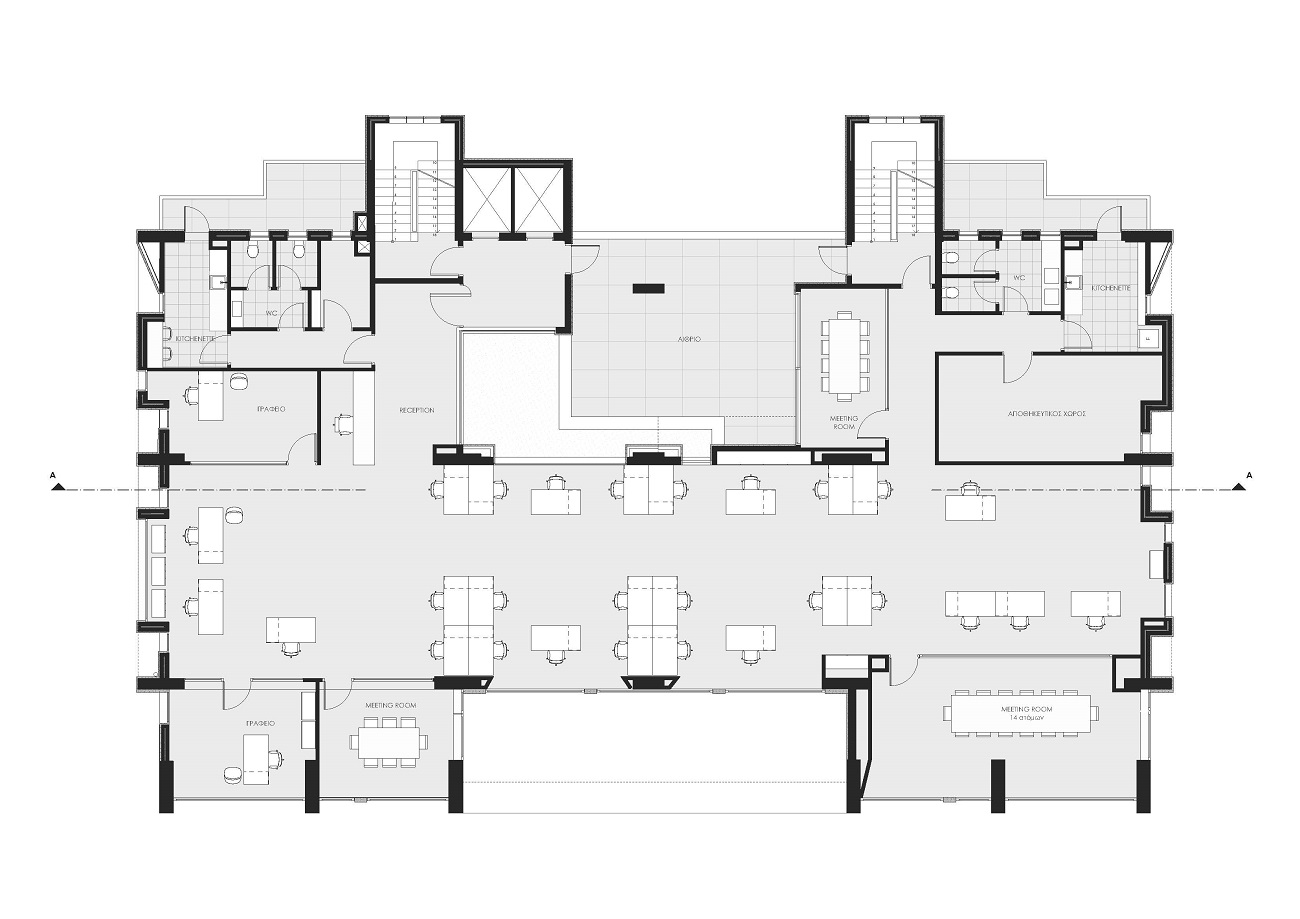
Στην καρδιά του κτιρίου προτείνεται ένας ανοιχτός υπαίθριος χώρος με φύτευση και χώρους καθισμάτων, απαντώντας στην αναζήτηση της «φυσικής όασης» στο σύγχρονο χώρο εργασίας.
Τα χτιστά στηθαία του δώματος αντικαθίστανται από γυαλί, προσφέροντας θέα στον φαληρικό όρμο, μέσα σε ένα περιβάλλον πρασίνου που αναπτύσσεται περιμετρικά του δώματος.
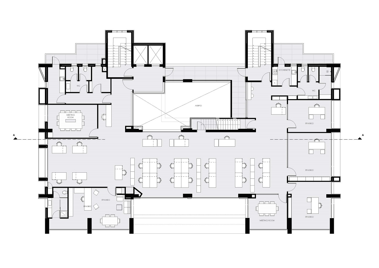
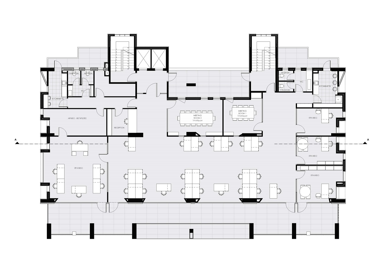
Ο εσωτερικός διαχωρισμός των γραφείων γίνεται με γυάλινα διαχωριστικά που διαμερισματοποιούν τον χώρο, χωρίς να τον αποκόπτουν, μιας και ο ίδιος είναι δομημένος με τη λογική του Open Plan.
Η εγκατάσταση υπερυψωμένου δαπέδου παρέχει τη δυνατότητα της μεταβολής σε ότι αφορά τις θέσεις εργασίας, καθώς ζητούμενο σε ένα σύγχρονο χώρο εργασίας είναι η προσαρμογή στις εκάστοτε μελλοντικές ανάγκες.
Τα υφιστάμενα – επενδυμένα με μάρμαρο- υποστυλώματα, ενοποιούνται με τα νέα στοιχεία πλήρωσης, η κατασκευή των οποίων είναι μεταλλική με επένδυση θερμοπρόσοψης.
Η δημιουργία των στοιχείων πλήρωσης και ενοποίησης με τις υφιστάμενες κολώνες, οι οποίες είναι επενδυμένες με μάρμαρο, γίνεται με μεταλλική κατασκευή η οποία επενδύεται με θερμοπρόσοψη.
English description: Geometrical juxtapositions – Redevelopment of an office building in Athens, Greece, by Tsolakis Architects
Tsolakis Architects completed the total remodeling of the facade and the interior of an office building in Palaio Faliro, Athens aiming to highlight its contemporary capabilities and to reinterpret the architecture of the past.
The existing five-storey building dates back to 1996 and it is characterized by its symmetrical shell and its monumental character. The prior dense grid of the glass panes is replaced by impressive wide single glazing that reaches the maximum permissible height and length, leaving the view outwards unimpeded.
“The notions of completeness and emptiness, of light and shade, coexist in a harmonious whole of geometries and volume”.
Furthermore, unexpected views between indoors and outdoors, along with the element of slim openings, summarize this rhythmic change and outline the view.
“Horizontal elements, like single balconies and canopy, unite the two sturdy parts of the existing shell”.
The canopy at the ground floor welcomes the visitor to the building, while the canopy on the roof forms the coronation. In this way, the sense of consistency and succession of the distinct members of the building is completed.
“An open-air atrium is situated at the heart of the building, in response to the search for a “natural oasis” in the contemporary workplace”.
The built parapets on the roofare replaced with glass material, offering views to the Faliro Bay, within a natural environment of landscaping that covers the roof.
“The interior partitions of the offices were made with plasterboard, while glass interior partitions organize the space, without compromising the open plan”.
The alteration of the ceiling, from gypsum board to mineral fiber ceiling, defines the interior space in sections while maintaining its unity, creating an interesting perspective on the elongated space.
The installation of raised floor enables the transformation in seat arrangements, as a modern workplace demands adaptation to future issues.
The facade is made of curtain walls, that reaches the maximum permissible height and length, leaving the view outwards unimpeded.
“The need for natural ventilation is met through tall tilting glass panels which are situated on the side of the building”.
Elements of integration with the existing columns, which are coated with marble, are made with External Thermal Insulation Composite Systems. Indoor and outdoor lighting is unified with led strips in a gestural formation that highlights key points of interest.
Project name: Geometrical juxtapositions – Redevelopment of an office building in Athens, Location: P. Faliro – Athens – Greece, Architect’s Firm:Tsolakis Architects Lead Architects: George Tsolakis – Sofia Lepida, Other participants: Gianna Papapavlou – Katerina Petrocheilou – Maria Anthopoulou – Marilena Mela – Michalis Fountouklis, Gross Built Area: 2470 sq.m, Completion Year: 2019, Text description:Tsolakis Architects, Photography:George Messaritakis