• Πρόσφατα έργα
    • Αρχιτεκτονικά
    • Design – Διακόσμηση
    • Μελέτες
    • Εργασίες
  • Δόμηση – Υποδομές
    • Ξενοδοχεία – Τουρισμός
    • Κατασκευές – Ακίνητα
    • Αστικές αναπλάσεις
    • Στατικά – Τοπογραφικά
  • Εξοικονόμηση – Ενέργεια
    • ΑΠΕ
    • Πράσινες επενδύσεις
    • Η/Μ Εγκαταστάσεις
    • Αυτοματισμοί – Τεχνολογία
  • Επιχειρήσεις
    • Εταιρικά Νέα
    • Ειδικές Τεχνολογίες
  • Αφιερώματα
  •  
Η SWOT Hospitality αναλαμβάνει τη διαχείριση του πεντάστερου Eliamos Villas Hotel & Spa στην Κεφαλονιά
5 Δεκεμβρίου 2025
Ο ρόλος των τοιχοπληρώσεων στη σεισμική συμπεριφορά των κτιρίων – Μύθοι και πραγματικότητα
8 Δεκεμβρίου 2025

Αρχιτεκτονική μελέτη - Σχεδιασμός επίπλων, ειδικών κατασκευών και κατασκευή: Your Space Experience | Photo © Γιώργος Ηλιού

Ανακαίνιση γραφείων “Sea Transportation” στον Άλιμο: Η λογική του open plan design ως βασική συνθετική αρχή

5 Δεκεμβρίου 2025
Κατηγορίες
  • Design – Διακόσμηση
Ετικέτες
  • Sea Transportation
  • Άλιμος
  • ανακαίνιση
  • γραφειακοί χώροι
  • επένδυση ξύλου
  • έργα τέχνης
  • μαρμάρινα έπιπλα
  • χρώματα

Το αρχιτεκτονικό γραφείο Your Space Experience ανέλαβε την ανακαίνιση των γραφείων της ναυτιλιακής εταιρείας Sea Transportation. Ο στόχος ήταν η δημιουργία μίας χωρικής εμπειρίας, η οποία να επικοινωνεί, μη λεκτικά στον επισκέπτη, την αίσθηση της ασφάλειας και της εμπιστοσύνης και συγχρόνως να τον τοποθετεί σε ένα VIP περιβάλλον το οποίο εκπέμπει κύρος και δημιουργικότητα. 

Η κεντρική ιδέα αναπτύχθηκε γύρω από την έκφραση “That meens Business”. Ανοιχτόχρωμοι χρωματισμοί, επένδυση ξύλου, μαρμάρινα έπιπλα, ένα έργο τέχνης που συνομιλεί με τον χώρο και εμφανές μπετόν στην οροφή είναι τα στοιχεία που συνθέτουν την ατμόσφαιρα του χώρου και δημιουργούν μικρές εντάσεις μεταξύ πολυτέλειας και βιομηχανικής αίσθησης.

Αρχιτεκτονική μελέτη – Σχεδιασμός επίπλων, ειδικών κατασκευών και κατασκευή: Your Space Experience | Photo © Γιώργος Ηλιού


“Τα γραφεία δημιουργήθηκαν στον 4ο όροφο ενός γυάλινου κτηρίου γραφείων, επί της λεωφόρου Ποσειδώνος, με άπλετη θέα στην Αθηναϊκή Ριβιέρα. Πρόκειται για έναν ενιαίο χώρο, εμβαδό 186,70 τ.μ., με ελεύθερο layout και με δύο από τις τέσσερις όψεις του χώρου να είναι τζαμαρία”.


Αρχιτεκτονική μελέτη – Σχεδιασμός επίπλων, ειδικών κατασκευών και κατασκευή: Your Space Experience | Photo © Γιώργος Ηλιού

Η  διαχείριση του χώρου βασίσθηκε στην ιδέα του Open plan. Η ενοποίηση αυτή δίνει τη δυνατότητα στο χώρο να λειτουργεί ως μία ενότητα και οι επιμέρους χώροι να μπορούν να εκμεταλλεύονται εξίσου την θέα προς τη θάλασσα. Η απόφαση αυτή ήταν κρίσιμη και ως προς τον τρόπο διαχωρισμού των επιμέρους δραστηριοτήτων και ως προς τον τρόπο διέλευσης των δικτύων. Ένας βασικός διαχωρισμός γίνεται  μεταξύ κύριων και βοηθητικών χώρων και νοηματοδοτείται μέσα από την επιλογή των υλικών.

Αρχιτεκτονική μελέτη – Σχεδιασμός επίπλων, ειδικών κατασκευών και κατασκευή: Your Space Experience | Photo © Γιώργος Ηλιού

Οι κύριοι και πιο κοινόχρηστοι χώροι χαρακτηρίζονται από την  ενοποίηση τους μέσω της αποκάλυψης  της οροφής από μπετόν, ενώ συγχρόνως ντύνονται με λευκές βελούδινες κουρτίνες που ξεκινάνε από την οροφή και καταλήγουν στο δάπεδο. Οι βοηθητικοί χώροι ξεκούρασης και διαλείμματος,  αντίθετα, σμιλεύονται μέσα σε ένα «ξύλινο σύμπαν» . Το ξύλο αποπνέει ηρεμία και δηλώνει την οικειότητα και το νοιάξιμο της εταιρίας για τον κόσμο που την απαρτίζει.

Αρχιτεκτονική μελέτη – Σχεδιασμός επίπλων, ειδικών κατασκευών και κατασκευή: Your Space Experience | Photo © Γιώργος Ηλιού

Μπαίνοντας στα γραφεία, το ημιδιαπερατό όριο της μεταλλικής υφασμένης κουρτίνας οδηγεί τον επισκέπτη προς την υποδοχή. Η υποδοχή, μια ειδική κατασκευή από κουρμπαριστό μάρμαρο Διονύσου που φωτίζεται εσωτερικά και γίνεται ο πυρήνας της εταιρείας, χωροθετείται πάνω σε ένα ξύλινο βάθρο, ώστε ο καλεσμένος να έχει πλήρη εικόνα της δραστηριότητας. Το εμβληματικό αυτό έπιπλο της υποδοχής ήταν πρόκληση τόσο σχεδιαστικά όσο και κατασκευαστικά. Δυο γυάλινοι όγκοι, το meeting room, και το γραφείο του CEO της εταιρείας τοποθετούνται στο κέντρο και στην άκρη του open plan γραφείου, διαιρώντας τις ελευθερες θέσεις εργασίας σε δύο τμήματα που αντιστοιχούν στη διοίκηση και το chartering. Οι όγκοι αυτοί, κατσκευασμένοι από συρόμενα γυαλινα πετάσματα έχουν την δυνατοτητα είτε να ενοποιούνται με τον υπόλοιπο χώρο είτε να απομονώνονται τόσο ηχητικά όσο και οπτικά.

Αρχιτεκτονική μελέτη – Σχεδιασμός επίπλων, ειδικών κατασκευών και κατασκευή: Your Space Experience | Photo © Γιώργος Ηλιού


“Σε όλο το μήκος του τυφλού τοίχου από την είσοδο μέχρι τη θάλασσα αναπτύσσεται ένα έργο 15 μέτρων μήκους του εικαστικού Γιάννη Σελιμιώτη το οποίο διηγείται μια ιστορία και μας μεταφέρει από τη μια χρωματική παλέτα στην άλλη χρησιμοποιώντας τα χρώματα του λογότυπου της εταιρείας. Το έργο δημιουργήθηκε στο ατελιέ του ζωγράφου σε κομμάτια μετρημένα εξ αρχής ώστε να μπορέσει να μεταφερθεί και να τοποθετηθεί στο χώρο με ασφάλεια”.


Αρχιτεκτονική μελέτη – Σχεδιασμός επίπλων, ειδικών κατασκευών και κατασκευή: Your Space Experience | Photo © Γιώργος Ηλιού

Ο χώρος χαρακτηρίζεται από ροικότητα και ευελιξία και δημιουργεί ένα περιβάλλον που δίνει προτεραιότητα στην άνεση, στην πολυτέλεια και στην εμπειρία. Ντυμένος με κουρτίνες τόσο περιμετρικά όσο και εσωτερικά, ενοποιείται ενισχύοντας την αίσθηση ασφάλειας και VIP ενώ συγχρόνως οι κουρτίνες αλληλεπιδρούν με τα στοιχεία που συναντούν στη διαδρομή τους. Πυκνώνουν, αραιώνουν, βαραίνουν ή ελαφραίνουν δίνοντας την αίσθηση της διαρκούς κίνησης και αλλαγής παίζοντας με τα αντικείμενα που συναντάνε καθώς  και με τη θέα.

Αρχιτεκτονική μελέτη – Σχεδιασμός επίπλων, ειδικών κατασκευών και κατασκευή: Your Space Experience | Photo © Γιώργος Ηλιού

Η κουρτίνα ενσωματώνει την κεντρική ιδέα της ευελιξίας και της σύνδεσης των επιμέρους χώρων και ενισχύει τη δυναμική του χώρου. Η αποκάλυψη της οροφής από μπετόν ανέδειξε το κέλυφος του κτηρίου, προσφέροντας το μεγιστο δυνατό ύψος αλλά έφερε κάποιες δυσκολίες στο σχεδιασμό των δικτύων αερισμού και κλιματισμού και οδήγησε στη λύση των εμφανών διελεύσεων. Για τις ελευθερες θέσεις εργασίας χρησιμοποιήθηκαν ευέλικτα έπιπλα γραφείων με ρυθμιζόμενο ύψος και ηχοαπορροφητικά πανελς για να επιτρέπουν την μερική απομόνωση.

Αρχιτεκτονική μελέτη – Σχεδιασμός επίπλων, ειδικών κατασκευών και κατασκευή: Your Space Experience | Photo © Γιώργος Ηλιού

Οι προκλήσεις ήταν πολλές και ποικίλες σε ότι αφορά την κατασκευή. Ενδιαφέροντα στοιχεία του έργου ήταν ο σχεδιασμός των λεπτομερειών όλων των επίπλων και των ειδικών κατασκευών, οι δοκιμές που έγιναν στον χώρο κατά τη διάρκεια του έργου καθώς και η συνεργασία μεταξύ των μηχανικών και των τεχνιτών ώστε να βγει ένα άρτιο αποτέλεσμα.

Αρχιτεκτονική μελέτη – Σχεδιασμός επίπλων, ειδικών κατασκευών και κατασκευή: Your Space Experience | Photo © Γιώργος Ηλιού

Τα γραφεία του sea transportation επαναπροσδιορίζουν την έννοια του χώρου εργασίας, δημιουργούν ένα περιβάλλον πολλαπλών χρήσεων που εκπέμπει κύρος, δημιουργικότητα και πραγματώνουν την αρχική πρόθεση για έναν «πυρήνα» του business», του οποίου οι δραστηριότητες συνεχίζονται στη θάλασσα.

Αρχιτεκτονική μελέτη – Σχεδιασμός επίπλων, ειδικών κατασκευών και κατασκευή: Your Space Experience | Photo © Γιώργος Ηλιού


Στοιχεία & Συντελεστές έργου:
Τίτλος έργου: Ανακαίνιση Γραφείων “Sea Transportation”, Τυπολογία: Αρχιτεκτονική μελέτη – Κατασκευή – Εσωτερικό design, Τοποθεσία: Άλιμος – Αττική, Αρχιτεκτονική μελέτη – Σχεδιασμός επίπλων, ειδικών κατασκευών και κατασκευή: Your Space Experience, Υπεύθυνη μελετήτρια: Παναγιώτα Καμπέρου, Μέλη ομάδας: Καραμπίνη Λητώ – Ανδρούλα Ορφανίδη, Συνεργάτες μελετητές: A.sylo (Έφη Μαλανδράκη – Βαρβάρα Κουντζάκη) – 2 Lamda energy (Παναγιώτης Λυκούρας), Ζωγραφικό έργο: Γιάννης Σελιμιώτης, Διαστάσεις χώρου (m2): 186,70 τ.μ., Κατάσταση έργου: Ολοκληρωμένο (2024), Κείμενο παρουσίασης: Your Space Experience, Φωτογραφίες: Γιώργος Ηλιού

English description: The architectural firm Your Space Experience undertook the renovation of the offices of the shipping company Sea Transportation. The objective was to create a spatial experience that non-verbally conveys to the visitor a sense of security and trust while simultaneously placing them in a VIP environment that exudes prestige and creativity.

The central concept was developed around the expression “That means Business”. Light color tones, wood cladding, marble furniture, an artwork that dialogues with the space, and exposed concrete on the ceiling are the elements that compose the atmosphere and create subtle tensions between luxury and an industrial feel.

Architectural Study – Furniture design – Special constructions and Construction: Your Space Experience | Photo © George Iliou


“The offices were designed on the 4th floor of a glass office building on Poseidonos Avenue, offering an unobstructed view of the Athenian Riviera. The space spans 186.70 square meters, with an open layout and two of its four facades made entirely of glass”.


Architectural Study – Furniture design – Special constructions and Construction: Your Space Experience | Photo © George Iliou

The space management was based on the Open Plan concept. This unification allows the area to function as a cohesive whole, enabling all sections to equally benefit from the sea view. This decision was crucial both in defining the separation of activities and in determining the routing of service networks.

Architectural Study – Furniture design – Special constructions and Construction: Your Space Experience | Photo © George Iliou

A fundamental distinction is made between main and auxiliary spaces, signified through material selection. The primary and more communal areas are unified through the exposure of the concrete ceiling while also being dressed in white velvet curtains that extend from ceiling to floor. Conversely, the auxiliary rest and break areas are sculpted within a “wooden universe”. The use of wood evokes tranquility and expresses the company’s care and consideration for its people. Upon entering the offices, the semi-transparent boundary of the woven metal curtain guides the visitor toward the reception area.

Architectural Study – Furniture design – Special constructions and Construction: Your Space Experience | Photo © George Iliou

The reception desk, a custom-made structure of curved Dionysus marble with internal lighting, becomes the core of the company. It is positioned on a wooden platform, offering guests a complete view of the company’s activities. This emblematic reception furniture posed both design and construction challenges.

Architectural Study – Furniture design – Special constructions and Construction: Your Space Experience | Photo © George Iliou

Two glass volumes, the meeting room and the CEO’s office, are positioned at the center and the edge of the open-plan office, dividing the open workstations into two sections corresponding to management and chartering. These volumes, constructed from sliding glass panels, can either integrate with the rest of the space or be isolated both acoustically and visually.

Architectural Study – Furniture design – Special constructions and Construction: Your Space Experience | Photo © George Iliou


A 15-meter-long artwork by visual artist Giannis Selimiotis extends along the blind wall from the entrance to the sea, narrating a story and transitioning between color palettes using the hues of the company’s logo. Created in the artist’s studio in pre-measured segments, the artwork was carefully transported and installed in the space.


Architectural Study – Furniture design – Special constructions and Construction: Your Space Experience | Photo © George Iliou

The space is characterized by fluidity and flexibility, creating an environment that prioritizes comfort, luxury, and experience. Draped with curtains both peripherally and internally, the space is unified, reinforcing the sense of security and VIP exclusivity, while simultaneously allowing the curtains to interact with the architectural elements they encounter. Their density fluctuates—thickening, thinning, becoming heavier or lighter—creating a sense of continuous movement and transformation, playing with objects and views along their path.

Architectural Study – Furniture design – Special constructions and Construction: Your Space Experience | Photo © George Iliou

The curtain encapsulates the core idea of flexibility and spatial connectivity, enhancing the dynamic character of the space. The exposure of the concrete ceiling highlighted the building’s shell, offering maximum height but also presenting challenges in designing the ventilation and air conditioning networks, ultimately leading to the solution of exposed service routes. For the open workstations, flexible office furniture with adjustable height and sound-absorbing panels were chosen to allow for partial isolation.

Architectural Study – Furniture design – Special constructions and Construction: Your Space Experience | Photo © George Iliou

The project faced multiple construction challenges. Notable aspects included the detailed design of furniture and custom structures, the on-site testing conducted during the project, and the collaboration between engineers and craftsmen to achieve a flawless outcome. The Sea Transportation offices redefine the concept of the workplace, creating a multi-functional environment that exudes prestige and creativity while fulfilling the original vision of a “business core” whose activities extend into the sea.

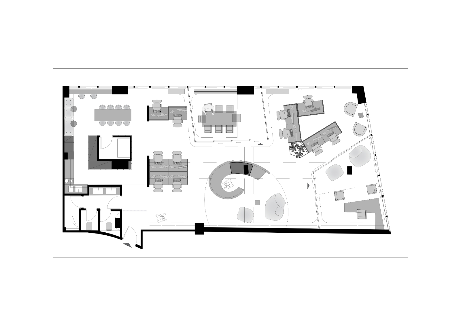
Plan, © Your Space Experience

Sections 1-2, © Your Space Experience

Sections 3-4, © Your Space Experience

Sections 5-6, © Your Space Experience

Sketches, © Your Space Experience


Facts & Credits:
Project title: Renovation of “Sea Transportation” offices, Typology: Architectural Design – Construction – Interior design, Location: Alimos – Attica – Athens – Greece, Architectural Study – Furniture design – Special constructions and Construction: Your Space Experience, Responsible Designer: Panagiota Kaberou, Team members: Karabini Leto – Androula Orphanidi, Associate designers: A.sylo (Efi Mandraki & Varvara Kountzaki) – 2 Lamda Energy (Panagiotis Lykouras), Painting: Yannis Selimiotis, Area (m2): 186,70 m², Status: Completed in 2024, Text description: Your Space Experience, Photography: George Iliou

Υποβάλλετε ένα άρθρο

Το όνομά σας *

Το email σας *

Το θέμα του άρθρου σας *

kataskevesktirion.gr
kataskevesktirion.gr

Σχετικές δημοσιεύσεις

Αρχιτεκτονική μελέτη – Interior design – Project management: DOMES ARCHITECTS | Photo © Φίλιππος Πανούλης

6 Απριλίου 2026

SNAPPI Office Hub: Ένα πρότυπο εργασιακό περιβάλλον στο κέντρο της Αθήνας γεμάτο έντονα & φωτεινά χρώματα


Διαβάστε το άρθρο

Αρχιτεκτονική μελέτη – Σχεδιασμός - Ανάπτυξη & Διαχείριση έργου: Two Αrchitects Studio | Photo © Δημήτρης Παύλου

31 Μαρτίου 2026

Ένα σύγχρονο αστικό καταφύγιο στην καρδιά του Βόλου


Διαβάστε το άρθρο

Αρχιτεκτονικός σχεδιασμός: Γκέλη Δημητρακοπούλου | Photo © Notion The Agency

30 Μαρτίου 2026

Πόμελο: Ένα μεζεδοπωλείο σε διατηρητέο κέλυφος, όπου η λιτότητα του σχεδιασμού αναδεικνύει την υλικότητα & τη νησιώτικη γεωμετρία


Διαβάστε το άρθρο

Αρχιτεκτονική μελέτη – Ανάπτυξη & Διαχείριση έργου: Space Dreams | Photo © Απόλλωνας Γλύκας

27 Μαρτίου 2026

[chilling timelessly]: Ένα ανακαινισμένο διαμέρισμα στην Κυψέλη, ενώνει το παρελθόν με τη σύγχρονη εποχή


Διαβάστε το άρθρο

Design & Site supervision: Studio Thanasis | Photo © Lea Martin

24 Μαρτίου 2026

Studio Thanasis transforms this dark apartment in Kolonaki into a quality living space using natural daylight


Διαβάστε το άρθρο

Αρχιτεκονική Μελέτη & Επίβλεψη: Παναγιώτης Παπανικολάου | Photo © Παναγιώτης Παπανικολάου

23 Μαρτίου 2026

Ένα διαμέρισμα των ’80s στην Κηφισιά ανακαινίστηκε διατηρώντας τα στοιχεία της εποχής του – Και είναι απλά υπέροχο


Διαβάστε το άρθρο
Facebook __ Ακολουθήστε μας στο Facebook
Twitter __ Ακολουθήστε μας στο Twitter
Instagram __ Ακολουθήστε μας στο Instagram

Αναζήτηση

Επικοινωνήστε μαζί μας στο ακόλουθο email:

info[@]kataskevesktirion.gr

© 2025 Κατασκευές Κτιρίων. All Rights Reserved.