• Πρόσφατα έργα
    • Αρχιτεκτονικά
    • Design – Διακόσμηση
    • Μελέτες
    • Εργασίες
  • Δόμηση – Υποδομές
    • Ξενοδοχεία – Τουρισμός
    • Κατασκευές – Ακίνητα
    • Αστικές αναπλάσεις
    • Στατικά – Τοπογραφικά
  • Εξοικονόμηση – Ενέργεια
    • ΑΠΕ
    • Πράσινες επενδύσεις
    • Η/Μ Εγκαταστάσεις
    • Αυτοματισμοί – Τεχνολογία
  • Επιχειρήσεις
    • Εταιρικά Νέα
    • Ειδικές Τεχνολογίες
  • Αφιερώματα
  •  
Νέο Wyndham Grand στο πολυτελές παραλίμνιο καταφύγιο Ουνταϊπούρ της Ινδίας
10 Δεκεμβρίου 2025
Η MGD Energy στην κορυφή, ως 1ος Huawei Elite Installer, πρωταγωνιστεί και στη νέα εποχή της Αποθήκευσης Ενέργειας
11 Δεκεμβρίου 2025

Αρχιτεκτονική μελέτη: Συνεργατικό Γραφείο Φατούρα | Photo © Γιώργης Γερόλυμπος

Μια παραθαλάσσια κατοικία στη Χαλκιδική επαναπροσδιορίζει τον σύγχρονο τρόπο ζωής στην Ελληνική ύπαιθρο

11 Δεκεμβρίου 2025
Κατηγορίες
  • Αρχιτεκτονικά
Ετικέτες
  • αλουμίνιο
  • διάτρητα πανέλα
  • καλαμωτές
  • κατοικία
  • κουφώματα
  • Νέα Σκιώνη
  • σκίαση
  • Χαλκιδική

Η μικρή παραθαλάσσια κατοικία στη Νέα Σκιώνη προκύπτει στο σημείο σύγκρουσης επιθυμιών και κανονισμών. Οι οικοδομικές διατάξεις της λεγόμενης “εκτός σχεδίου δόμησης” απαιτούν τη δημιουργία ενός μοναδικού κτιριακού όγκου, ορίζοντας έτσι αυστηρά την τυπική κατοικία της ελληνικής υπαίθρου.

Ωστόσο, οι ανάγκες της οικογένειας που ανέθεσε αυτό το σπίτι, ένα ζευγάρι με δύο ενήλικα παιδιά, δεν μπορούσαν να προσαρμοστούν σε αυτό το κανονιστικό πλαίσιο. Η επιθυμία τους για αυτόνομους χώρους κατοίκησης αλλά και σημεία συλλογικής διαβίωσης έδωσε τη δυνατότητα στο Συνεργατικό Γραφείο Φατούρα, να υπονομεύσουν τα κοινωνικά και χωρικά στερεότυπα του οικιακού και της αναψυχής στην ελληνική επαρχία.

Αρχιτεκτονική μελέτη: Συνεργατικό Γραφείο Φατούρα | Photo © Γιώργης Γερόλυμπος

Αρχιτεκτονική μελέτη: Συνεργατικό Γραφείο Φατούρα | Photo © Γιώργης Γερόλυμπος

Ο σχεδιασμός της κατοικίας εγγράφει αυτές τις πολύπλοκες συνθήκες εντός ενός ενιαίου, τετράγωνου πρίσματος 17×17μ. Αλλά μέσα σε αυτό, η κατοικία σταδιακά διαλύεται. Δύο τεμνόμενοι άξονες, οργανώνουν την κυκλοφορία και διασπούν το πρίσμα σε τρεις αυτόνομες μονάδες κατοίκησης – η καθεμία με τη δική της είσοδο, διαδρομή προς τον κήπο και την ύπαιθρο, και κατώφλι. Στη συμβολή των αξόνων, τοποθετείται η κουζίνα – ένα καθημερινό πεδίο συναναστροφής και επανασύνδεσης.

Αρχιτεκτονική μελέτη: Συνεργατικό Γραφείο Φατούρα | Photo © Γιώργης Γερόλυμπος

Αρχιτεκτονική μελέτη: Συνεργατικό Γραφείο Φατούρα | Photo © Γιώργης Γερόλυμπος


“Ο περιμετρικός τοίχος, άλλοτε πλήρης, άλλοτε πορώδης, αποκτά διαβαθμισμένες σχέσεις με το τοπίο”.


Αρχιτεκτονική μελέτη: Συνεργατικό Γραφείο Φατούρα | Photo © Γιώργης Γερόλυμπος

Αρχιτεκτονική μελέτη: Συνεργατικό Γραφείο Φατούρα | Photo © Γιώργης Γερόλυμπος

Τρεις αυλές, προϊόν αφαιρέσεων του κτιριακού όγκου, δημιουργούν χώρους για εναλλασσόμενα επεισόδια θερινής ζωής: πρωινά στη σκιά, υπαίθρια ντους, τσιγάρα και δείπνα κάτω από τον ουρανό. Τα υλικά ανακαλούν το λεξιλόγιο των μοντερνιστικών κατοικιών της ελληνικής ακτής: υπόλευκοι τοίχοι, κουφώματα αλουμινίου, διακοσμητικά διάτρητα πανέλα, στοιχεία σκίασης και πέργκολες με καλαμωτές, ενώ το χρώμα κάνει την εμφάνισή του σε μικρά χωρικά επεισόδια. Η κατοικία λειτουργεί ως ένας μηχανισμός που διαπραγματεύεται διαρκώς μεταβαλλόμενες οικογενειακές δομές και επεκτεινόμενες επιθυμίες.

Αρχιτεκτονική μελέτη: Συνεργατικό Γραφείο Φατούρα | Photo © Γιώργης Γερόλυμπος

Αρχιτεκτονική μελέτη: Συνεργατικό Γραφείο Φατούρα | Photo © Γιώργης Γερόλυμπος

Αρχιτεκτονική μελέτη: Συνεργατικό Γραφείο Φατούρα | Photo © Γιώργης Γερόλυμπος

Αρχιτεκτονική μελέτη: Συνεργατικό Γραφείο Φατούρα | Photo © Γιώργης Γερόλυμπος


Στοιχεία & Συντελεστές έργου:
Τίτλος έργου: Κατοικία με Αυλή στην Νέα Σκιώνη Χαλκιδικής, Τυπολογία: Εξοχική κατοικία, Τοποθεσία: Νέα Σκιώνη – Χαλκιδική – Ελλάδα, Αρχιτεκτονική μελέτη: Συνεργατικό Γραφείο Φατούρα, Ομάδα Μελέτης: Αλεξάνδρα Βούγια – Θεοδόσης Ησαΐας – Πλάτων Ησαΐας – Γιανναντώνης Μουτσάτσος – Ελισάβετ Χάσα, Πολιτικός Μηχανικός: RC–DC (Γιώργος Καπετάνος), Μηχανολόγος Μηχανικός: EMDC (Νικόλαος Μέτζιος), Κατασκευή: Anadomo, Διαχείριση Εργοταξίου: Επαμεινώνδας Μοσχούτας, Έτος υλοποίησης: 2025, Κείμενο παρουσίασης: Συνεργατικό Γραφείο Φατούρα, Φωτογραφίες: Γιώργης Γερόλυμπος

English description: This small coastal house in Nea Skioni, Halkidiki, redesigned by Fatura Collaborative, exists at the friction point between law and desire. Local building regulations demand a unified mass – the legal form of a single holiday home. Yet the family who commissioned the house, an ageing couple with two adult children, no longer fits this normative model. They asked for separation and autonomy, spaces for private life alongside collective gathering. The house answers by complying with the law, while pushing its boundaries by quietly splitting from within.

All interior and exterior spaces are inscribed within a 17×17 meter monolithic square. But within this frame, the house breaks apart. An extruded cross organizes circulation and fragments the solid into three distinct units, each with its own entrance, its own route to the garden, its own threshold between inside and out. The kitchen is located at the center of this cross, a collective room functioning as the everyday place of co-habitation and re-discovery. This gesture both connects and separates, allowing for privacy and proximity.

Architectural design: Fatura Collaborative | Photo © Yiorgis Yerolymbos


“A perimeter wall protects this fragmented life inside, its porosity shifting along the edges”.


Architectural design: Fatura Collaborative | Photo © Yiorgis Yerolymbos

Architectural design: Fatura Collaborative | Photo © Yiorgis Yerolymbos

Sometimes sealing off, others opening up to the landscape, the wall acquires graduated relationships with the landscape, offering transparencies and shadows, openings and silences. Three courtyards puncture the mass, making space for informal life along the Greek coast – shaded breakfasts, outdoor showers after swimming, cigarettes and dinners under the sky. The holiday home becomes a device that negotiates shifting family structures and expanding desires, hosting forms of life that resist regulation.

Architectural design: Fatura Collaborative | Photo © Yiorgis Yerolymbos

Architectural design: Fatura Collaborative | Photo © Yiorgis Yerolymbos

Materials remain humble, making a playful reference to the lexicon of vernacular modernist vacation homes of the Greek coast; coarse, lightly-colored plaster walls, aluminium frames, decorative perforated blocks, shading devices, light-wooden partitions, and a rooftop pergola. Yet color appears in small, charged moments, highlighting activities such as cooking and bathing, inside and outside the house.

Axonometric, © Fatura Collaborative

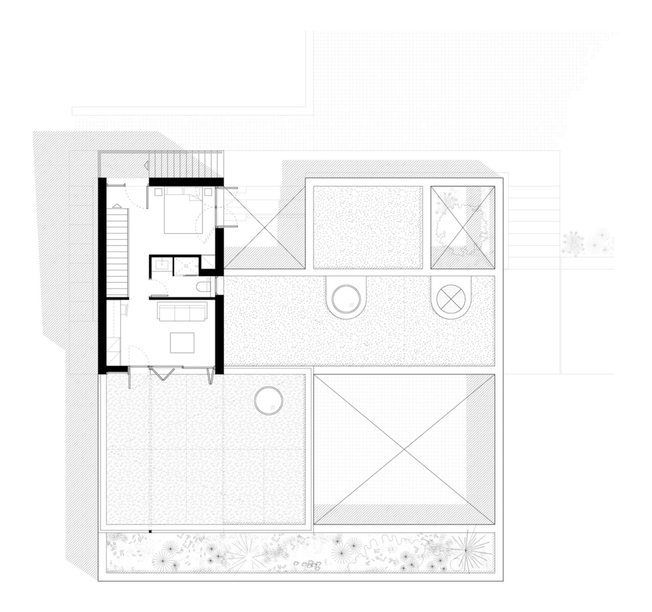
Ground floor plan, © Fatura Collaborative

1st floor plan, © Fatura Collaborative

Sections, © Fatura Collaborative

Elevations, © Fatura Collaborative


Facts & Credits:
Project title: Courtyard House, Typology: Holiday house, Location: Nea Skioni – Halkidiki – Greece, Architectural design: Fatura Collaborative, Design team: Elisavet Hasa – Platon Issaias – Theodossis Issaias – Giannantonis Moutsatsos – Alexandra Vougia, Collaboration: Myrto Vravosinou (Architect), Civil Engineer: RC-DC (George Kapetanos), Mechanical Engineer: EMDC (Nikolaos Mertzios), Construction: Anadomo, Site Management: Epameinondas Moschoutas, Year of completion: 2025, Text description: Fatura Collaborative, Photography: Yiorgis Yerolymbos

Υποβάλλετε ένα άρθρο

Το όνομά σας *

Το email σας *

Το θέμα του άρθρου σας *

kataskevesktirion.gr
kataskevesktirion.gr

Σχετικές δημοσιεύσεις

Αρχιτεκτονική μελέτη – Εσωτερική διακόσμηση - Κατασκευή: A&M Architects | Photo © AYLO Studio

5 Μαρτίου 2026

Η A&M Architects μεταμορφώνει δύο παραδοσιακά κτίρια σε μια ενιαία σύγχρονη κατοικία στο Απέρι Καρπάθου


Διαβάστε το άρθρο

Αρχιτεκτονική μελέτη και Σχεδιασμός Τοπίου: Studio Katia Petsali | Photo © Studio Katia Petsali

4 Μαρτίου 2026

Ένα πέτρινο καταφύγιο στους Παξούς: Αρχιτεκτονική κομψότητα σε αρμονία με τη φύση


Διαβάστε το άρθρο

Αρχιτεκτονική μελέτη – Σχεδιασμός εσωτερικών χώρων – Μελέτη φωτισμού - Κατασκευή: Μ3 Κύθηρα Κατασκευαστική | Photo © Παναγιώτης Βουμβάκης

3 Μαρτίου 2026

V House: Μια συγκλονιστική κατοικία στα Κύθηρα, κρυμμένη σε μια κατάφυτη πλαγιά του νησιού που θα σας μαγέψει


Διαβάστε το άρθρο

Αρχιτεκτονική μελέτη – Επίβλεψη: Φ. & Κ. ΚΥΔΩΝΙΑΤΗΣ & ΣΥΝΕΡΓΑΤΕΣ | Photo © Heinz Troll Photography

27 Φεβρουαρίου 2026

Avali Mar-Bella Collection: Βουνό και θάλασσα σε απόλυτη αρμονία


Διαβάστε το άρθρο

Αρχιτεκτονική μελέτη – Interior design – Επίβλεψη κατασκευής: Βασιλειάδης Αρχιτέκτονες | Photo © Γιώργος Χαραλάμπους

25 Φεβρουαρίου 2026

Μια βιοκλιματική κατοικία στoν Άγιο Τύχωνα της Λεμεσού σε διάλογο με το τοπίο, το φως και τη λιτότητα


Διαβάστε το άρθρο

Αρχιτεκτονική μελέτη – Επίβλεψη – Βιοκλιματική μελέτη: Arid | Photo © Γιώργος Σφακιανάκης

16 Φεβρουαρίου 2026

Μια διπλοκατοικία της δεκαετίας του ’50 στα Πατήσια αποκτά νέα ζωή χάρη σε ένα εντυπωσιακό, λευκό μεταλλικό πλέγμα


Διαβάστε το άρθρο
Facebook __ Ακολουθήστε μας στο Facebook
Twitter __ Ακολουθήστε μας στο Twitter
Instagram __ Ακολουθήστε μας στο Instagram

Αναζήτηση

Επικοινωνήστε μαζί μας στο ακόλουθο email:

info[@]kataskevesktirion.gr

© 2025 Κατασκευές Κτιρίων. All Rights Reserved.