• Πρόσφατα έργα
    • Αρχιτεκτονικά
    • Design – Διακόσμηση
    • Μελέτες
    • Εργασίες
  • Δόμηση – Υποδομές
    • Ξενοδοχεία – Τουρισμός
    • Κατασκευές – Ακίνητα
    • Αστικές αναπλάσεις
    • Στατικά – Τοπογραφικά
  • Εξοικονόμηση – Ενέργεια
    • ΑΠΕ
    • Πράσινες επενδύσεις
    • Η/Μ Εγκαταστάσεις
    • Αυτοματισμοί – Τεχνολογία
  • Επιχειρήσεις
    • Εταιρικά Νέα
    • Ειδικές Τεχνολογίες
  • Αφιερώματα
  •  
Ανοδικά οι τιμές κατοικιών και το 4ο τρίμηνο – Οι πιο ακριβές και πιο οικονομικές περιοχές της Ελλάδας
12 Ιανουαρίου 2026
Από 17.000 σε 41.000 οι δικαιούχοι του προγράμματος «Εξοικονομώ 2025»
13 Ιανουαρίου 2026

Αρχιτεκτονική: Αλεξάνδρα Καλλίτσα | Photo © Focus Agency – Μιχάλης Αικατερίνης

Μια πανέμορφη, πέτρινη κατοικία καταφύγιο ηρεμίας μέσα σε έναν ελαιώνα στη Λέσβο

13 Ιανουαρίου 2026
Κατηγορίες
  • Αρχιτεκτονικά
Ετικέτες
  • απλότητα
  • αρχιτεκτονικη
  • Ελαιώνας
  • Κατοικία Τα Ράχτα
  • Λέσβος
  • παράδοση
  • τοπίο
  • φυσικοί λίθοι

Λίγα μέτρα μακριά από τη μετά βίας αστικοποιημένη Σκάλα Συκαμιάς της Λέσβου σ’ ένα ελαιόκτημα διαμορφωμένο εξ’ ολοκλήρου από πετρόχτιστες πεζούλες- απαράμιλλης αισθητικής και ιστορικής αξίας- σχεδιάζεται από την αρχιτέκτονα Αλεξάνδρα Καλλίτσα, η Κατοικία Τα Ράχτα.

Η αρχιτεκτονική του τόπου ορίζεται εδώ από τις περιβαλλοντικές δράσεις του ανέμου, του νερού, της πέτρας και των ελαιόδεντρων που σμιλεύουν το τοπίο ανά τους αιώνες. Προκύπτει, λοιπόν, η ανάγκη σχεδίασης μίας κατοικίας η οποία θα γίνεται ένα με το περιβάλλον, όπου οι υπαίθριοι χώροι θα διαδέχονται τους κλειστούς χώρους, διευρύνοντας τα όρια μεταξύ τοπίου και κτιρίου.

Αρχιτεκτονική: Αλεξάνδρα Καλλίτσα | Photo © Focus Agency – Μιχάλης Αικατερίνης

Αρχιτεκτονική: Αλεξάνδρα Καλλίτσα | Photo © Focus Agency – Μιχάλης Αικατερίνης

Η κατοικία διασπάται σε δύο πέτρινους όγκους και μοιράζεται σε δύο επίπεδα, με τον όροφο να υποχωρεί σε σχέση με το ισόγειο, ακολουθώντας έτσι την τοπογραφία του ελαιοκτήματος και των δομημένων αναβαθμίδων. Ο σχεδιασμός του κτιρίου αντανακλά την απλότητα του τόπου και την ανάγκη των ιδιοκτητών για ιδιωτικότητα. Προσεγγίζοντας το κτίριο από μακριά, διαμέσου του πλακόστρωτου μονοπατιού από φυσικούς λίθους, ο επισκέπτης περνά ανάμεσα από τις δύο ελιές σήμα κατατεθέν της κατοικίας, και έρχεται αντιμέτωπος με μία εσωστρεφή όψη.

Αρχιτεκτονική: Αλεξάνδρα Καλλίτσα | Photo © Focus Agency – Μιχάλης Αικατερίνης


“Η κλιμάκωση της σκίασης, από τον υπαίθριο χώρο, στον ημιυπαίθριο, σε οδηγεί τέλος στο εσωτερικό της κατοικίας. Οι κύριοι χώροι της στρέφονται προς τη θέα, ενώ οι βοηθητικοί χώροι σχεδιάζονται στο πίσω μέρος της”.


Αρχιτεκτονική: Αλεξάνδρα Καλλίτσα | Photo © Focus Agency – Μιχάλης Αικατερίνης

Αρχιτεκτονική: Αλεξάνδρα Καλλίτσα | Photo © Focus Agency – Μιχάλης Αικατερίνης

Ο ημιυπαίθριος χώρος αποτελεί συνέχεια της κουζίνας, ενώ στο υπνοδωμάτιο σχεδιάζεται ξεχωριστός στεγασμένος χώρος. Το καθιστικό ενώνεται με το ελαιόκτημα, στο οποίο κοιτάει αμφιθεατρικά, διαμέσου ενός μεγάλου ανοίγματος. Δύο φωταγωγοί σχεδιάζονται στο πίσω μέρος του κτιρίου, εισάγοντας φως και αέρα στην κουζίνα και στους βοηθητικούς χώρους.

Αρχιτεκτονική: Αλεξάνδρα Καλλίτσα | Photo © Focus Agency – Μιχάλης Αικατερίνης

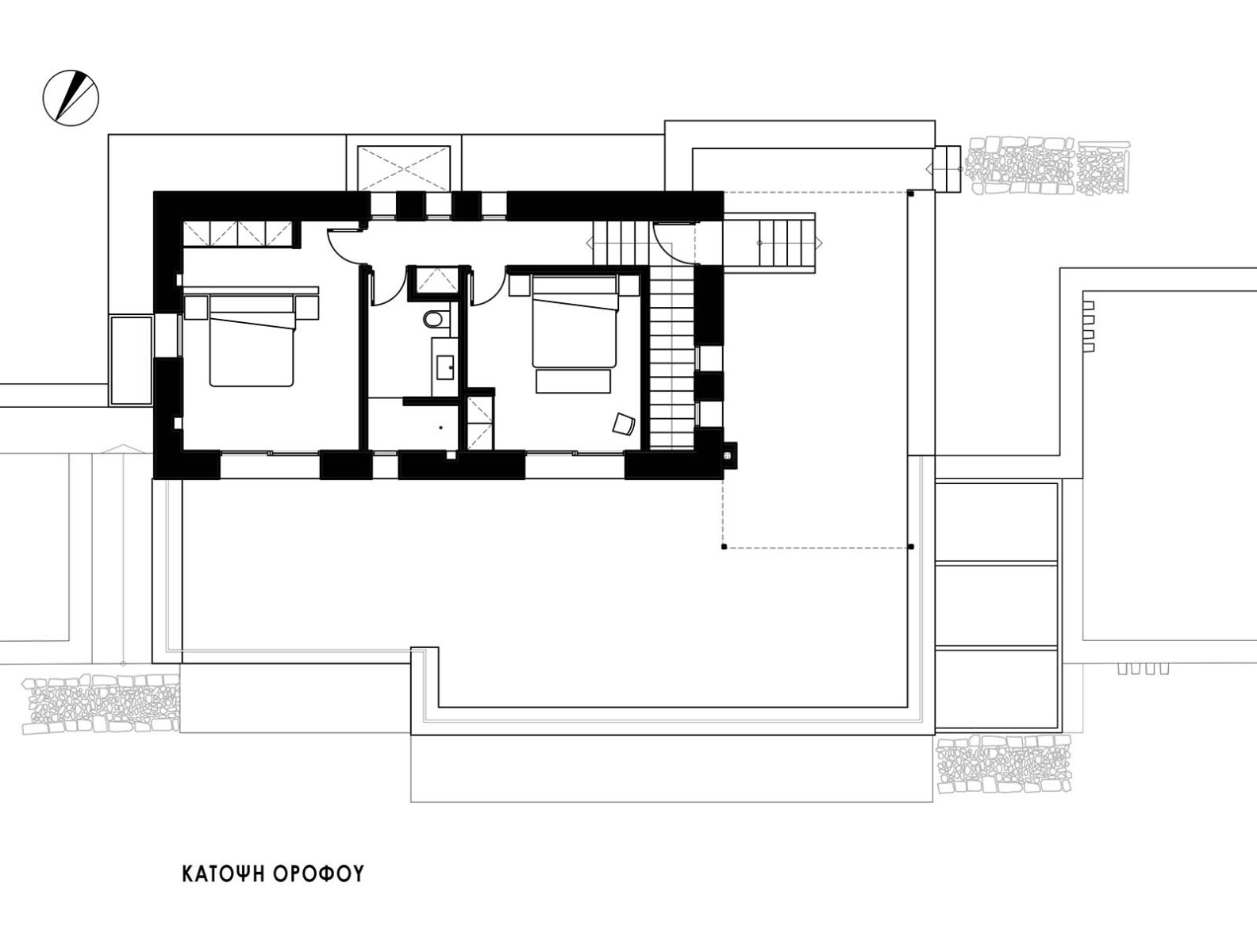
Ο όροφος αποτελείται από δύο υπνοδωμάτια και ένα λουτρό, ενώ η μπροστινή του βεράντα προσφέρει απρόσκοπτη θέα, όχι μόνο προς τη θάλασσα, αλλά και προς τον οικισμό της Συκαμιάς, ο οποίος βρίσκεται σκαρφαλωμένος στον αντίπερα βράχο. Έτσι, οι όψεις της κατοικίας προς τη θέα είναι αισθητά πιο εξωστρεφείς σε σχέση με τις άλλες πλευρές της που στρέφονται προς το δρόμο.

Αρχιτεκτονική: Αλεξάνδρα Καλλίτσα | Photo © Focus Agency – Μιχάλης Αικατερίνης

Αρχιτεκτονική: Αλεξάνδρα Καλλίτσα | Photo © Focus Agency – Μιχάλης Αικατερίνης


Στοιχεία & Συντελεστές έργου:
Τίτλος έργου: Κατοικία Τα Ράχτα, Τυπολογία: Αρχιτεκτονική – Κατοικία, Τοποθεσία: Σκάλα Συκαμιάς – Λέσβος – Ελλάδα, Αρχιτεκτονική: Αλεξάνδρα Καλλίτσα, Στατική μελέτη: Δημήτριος Καλλίτσας, Η/Μ: Ιγνάτιος Ιωαννίδης, Επιβλέποντες: Αλεξάνδρα Καλλίτσα – Λευτέρης Τσαπώνης, Eπιφάνεια: 180 τ.μ., Χρόνος Μελέτης: 2021, Χρόνος Κατασκευής: 2023- 2025, Κείμενο παρουσίασης: Αλεξάνδρα Καλλίτσα, Φωτογραφίες: Focus Agency – Μιχάλης Αικατερίνης

English description: On the island of Lesvos, close to the settlement of Sykamia, in an olive grove formed entirely by stone terraces of great aesthetic and historical value, architect Alexandra Kallitsa designed the Rachta Residence.

The architecture of the place is defined by the environmental interaction of the wind, water, stone, and olive trees that have been sculpting the landscape over the centuries. Hence, the concept was to design a house that becomes one with the environment, expanding the boundaries between landscape and building.

Architecture: Alexandra Kallitsa | Photo © Focus Agency – Michalis Aikaterinis

Architecture: Alexandra Kallitsa | Photo © Focus Agency – Michalis Aikaterinis

The house is divided in two levels, with the first floor receding from the ground floor, following the topography of the structured terraces. Approaching the building from afar, the visitor passes between two olive trees, a trademark of the house and faces an introverted view.

Architecture: Alexandra Kallitsa | Photo © Focus Agency – Michalis Aikaterinis


“The escalation of shading, from the outdoor area to the semi-outdoor, finally leads inside the house”.


Architecture: Alexandra Kallitsa | Photo © Focus Agency – Michalis Aikaterinis

Architecture: Alexandra Kallitsa | Photo © Focus Agency – Michalis Aikaterinis

Architecture: Alexandra Kallitsa | Photo © Focus Agency – Michalis Aikaterinis

The main areas are open to the unique view, while the utility areas are designed at the rear of the building. The semi-external space is a continuation of the kitchen, while the living room is connected through a large opening to the olive grove, which is developed amphitheatrically in front of it. Two skylights have been designed that introduce light and air into the house.

Architecture: Alexandra Kallitsa | Photo © Focus Agency – Michalis Aikaterinis

The terrace of the first floor offers unobstructed views, not only to the sea, but also to Sykamia, which is perched on the opposite hill. The design of the building reflects the simplicity of the place and the owners’ need for privacy.

Ground floor plan, © Alexandra Kallitsa

1st floor plan, © Alexandra Kallitsa


Facts & Credits:
Project Title: Rahta House, Typology: Architecture – Residence, Location: Skala Sikamineas – Lesvos – Greece, Architecture: Alexandra Kallitsa, Structural Engineering: Dimitrios Kallitsas, Mechanical & Electrical Engineering: Ignatios Ioannidis, Site Supervision: Alexandra Kallitsa – Lefteris Tsaponis, Area: 180sqm, Design Period: 2021, Construction Period: 2023–2025, Text description: Alexandra Kallitsa, Photography: Focus Agency – Michalis Aikaterinis

Υποβάλλετε ένα άρθρο

Το όνομά σας *

Το email σας *

Το θέμα του άρθρου σας *

kataskevesktirion.gr
kataskevesktirion.gr

Σχετικές δημοσιεύσεις

Αρχιτεκτονική μελέτη – Εσωτερική διακόσμηση - Κατασκευή: A&M Architects | Photo © AYLO Studio

5 Μαρτίου 2026

Η A&M Architects μεταμορφώνει δύο παραδοσιακά κτίρια σε μια ενιαία σύγχρονη κατοικία στο Απέρι Καρπάθου


Διαβάστε το άρθρο

Αρχιτεκτονική μελέτη και Σχεδιασμός Τοπίου: Studio Katia Petsali | Photo © Studio Katia Petsali

4 Μαρτίου 2026

Ένα πέτρινο καταφύγιο στους Παξούς: Αρχιτεκτονική κομψότητα σε αρμονία με τη φύση


Διαβάστε το άρθρο

Αρχιτεκτονική μελέτη – Σχεδιασμός εσωτερικών χώρων – Μελέτη φωτισμού - Κατασκευή: Μ3 Κύθηρα Κατασκευαστική | Photo © Παναγιώτης Βουμβάκης

3 Μαρτίου 2026

V House: Μια συγκλονιστική κατοικία στα Κύθηρα, κρυμμένη σε μια κατάφυτη πλαγιά του νησιού που θα σας μαγέψει


Διαβάστε το άρθρο

Αρχιτεκτονική μελέτη – Επίβλεψη: Φ. & Κ. ΚΥΔΩΝΙΑΤΗΣ & ΣΥΝΕΡΓΑΤΕΣ | Photo © Heinz Troll Photography

27 Φεβρουαρίου 2026

Avali Mar-Bella Collection: Βουνό και θάλασσα σε απόλυτη αρμονία


Διαβάστε το άρθρο

Αρχιτεκτονική μελέτη – Interior design – Επίβλεψη κατασκευής: Βασιλειάδης Αρχιτέκτονες | Photo © Γιώργος Χαραλάμπους

25 Φεβρουαρίου 2026

Μια βιοκλιματική κατοικία στoν Άγιο Τύχωνα της Λεμεσού σε διάλογο με το τοπίο, το φως και τη λιτότητα


Διαβάστε το άρθρο

Αρχιτεκτονική μελέτη – Επίβλεψη – Βιοκλιματική μελέτη: Arid | Photo © Γιώργος Σφακιανάκης

16 Φεβρουαρίου 2026

Μια διπλοκατοικία της δεκαετίας του ’50 στα Πατήσια αποκτά νέα ζωή χάρη σε ένα εντυπωσιακό, λευκό μεταλλικό πλέγμα


Διαβάστε το άρθρο
Facebook __ Ακολουθήστε μας στο Facebook
Twitter __ Ακολουθήστε μας στο Twitter
Instagram __ Ακολουθήστε μας στο Instagram

Αναζήτηση

Επικοινωνήστε μαζί μας στο ακόλουθο email:

info[@]kataskevesktirion.gr

© 2025 Κατασκευές Κτιρίων. All Rights Reserved.