• Πρόσφατα έργα
    • Αρχιτεκτονικά
    • Design – Διακόσμηση
    • Μελέτες
    • Εργασίες
  • Δόμηση – Υποδομές
    • Ξενοδοχεία – Τουρισμός
    • Κατασκευές – Ακίνητα
    • Αστικές αναπλάσεις
    • Στατικά – Τοπογραφικά
  • Εξοικονόμηση – Ενέργεια
    • ΑΠΕ
    • Πράσινες επενδύσεις
    • Η/Μ Εγκαταστάσεις
    • Αυτοματισμοί – Τεχνολογία
  • Επιχειρήσεις
    • Εταιρικά Νέα
    • Ειδικές Τεχνολογίες
  • Αφιερώματα
  •  
Ακίνητα: Στροφή σε κατοικίες μικρότερου εμβαδού κάνουν οι Έλληνες – Τι δείχνει έρευνα της RE/MAX Ελλάς
12 Ιουλίου 2024
«Χρυσή» βράβευση της Deloitte για το στρατηγικό σχέδιο της αναβίωσης του οικισμού Χωριό στην Χάλκη
15 Ιουλίου 2024

Αρχιτεκτονική μελέτη: MB Projects Athens | Photo © Δημήτρης Τσολακάκης

Vu Garden Apartment: Ένα ανακαινισμένο διαμέρισμα στο Λαιμό Βουλιαγμένης αποπνέει χαλαρότητα & κομψότητα

15 Ιουλίου 2024
Κατηγορίες
  • Design – Διακόσμηση
Ετικέτες
  • Vu Garden Apartment
  • αισθητική
  • ανακαίνιση
  • διαμέρισμα
  • κάτοψη
  • κομψότητα

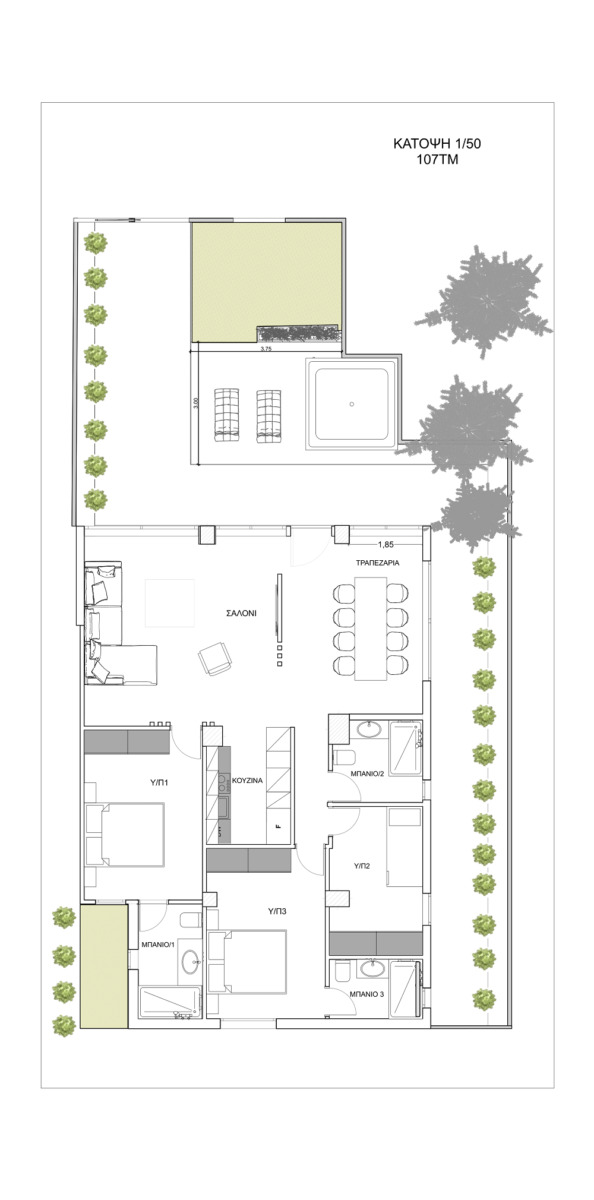
Το ισόγειο διαμέρισμα Vu Garden Apartment αφορά ένα διαμπερές ισόγειο σε μπλόκ πενταώροφης πολυκατοικίας.Το γεγονός ότι έχει δική του είσοδο από το δρόμο – κήπο το καθιστά ανεξάρτητο ως προς την είσοδο, το φως και την όχληση.

Βασικός γνώμονας σχεδιασμού των MB Projects Athens ήταν να δημιουργήσουν ένα άνετο και λειτουργίκο διαμέρισμα που θα προκαλεί μια αίσθηση χαλαρότητας. Η κλίμακα του σχεδιασμού σε μία ορθογώνια κάτοψη χώρισε τους χώρους σε 2 παράλληλες ενότητες, χώρους διημέρευσης με μεγάλα ανοίγματα στο φώς – κήπο και χώρους ανάπαυσης.

Αρχιτεκτονική μελέτη: MB Projects Athens | Photo © Δημήτρης Τσολακάκης

Αρχιτεκτονική μελέτη: MB Projects Athens | Photo © Δημήτρης Τσολακάκης

Αρχιτεκτονική μελέτη: MB Projects Athens | Photo © Δημήτρης Τσολακάκης

Αρχιτεκτονική μελέτη: MB Projects Athens | Photo © Δημήτρης Τσολακάκης

Αρχιτεκτονική μελέτη: MB Projects Athens | Photo © Δημήτρης Τσολακάκης

Αρχιτεκτονική μελέτη: MB Projects Athens | Photo © Δημήτρης Τσολακάκης

Αρχιτεκτονική μελέτη: MB Projects Athens | Photo © Δημήτρης Τσολακάκης

Αρχιτεκτονική μελέτη: MB Projects Athens | Photo © Δημήτρης Τσολακάκης


“Οι χώροι εισόδος – Dining – Living τοποθετήθηκαν κάτα μήκος της όψης με ανοίγματα έτσι ώστε internal–external garden να αποτελούν και να ολοκληρώνουν μία ενότητα. Ο περιβάλλοντας χωρος επικοινώνει ως ενοιαίο επίπεδο με τον εσωτερίκο, ο οποίος διαμορφώθηκε με παρτέρια κήπου, ξύλινο Deck με ξαπλώστρες (χώρο χαλάρωσης – jacuzzi) και πλακόστρωτο για το χώρο κίνησης”.


Αρχιτεκτονική μελέτη: MB Projects Athens | Photo © Δημήτρης Τσολακάκης

Αρχιτεκτονική μελέτη: MB Projects Athens | Photo © Δημήτρης Τσολακάκης

Αρχιτεκτονική μελέτη: MB Projects Athens | Photo © Δημήτρης Τσολακάκης

Η είσοδος εμπλουτίστηκε με ένα κάθετο στοιχείο (τοίχο) με ορθομαρμάρωση και γραμικό Led φωτισμό, προσθέτοντας ένα Lobby εισόδου καθώς και ένα διαχωρισμό στο χώρο τραπεζαρίας, σαλόνι και κουζίνας. Σε αυτό το σημείο εστίασε η αρχιτεκτονική ομάδα έτσι ώστε ένας ενιαίος χώρος με είσοδο, να αποκτήσει υπόσταση με τονισμό εισόδου και διαχωρισμό ενοτήτων.

Αρχιτεκτονική μελέτη: MB Projects Athens | Photo © Δημήτρης Τσολακάκης

Αρχιτεκτονική μελέτη: MB Projects Athens | Photo © Δημήτρης Τσολακάκης

Το διαμέρισμα υλοποιήθηκε σύμφωνα με τις ανάγκες μιας οικογένειας και διαθέτει 2 Master Bedrooms και ένα μικρότερο υπνοδωμάτιο με ανεξάρτιτο μπάνιο. Τα υλικά που χρησιμοποιήθηκαν ολοκληρώνουν μια αρχιτεκτονική καθαρότητα με τονισμούς ορθομαρμάρωσης και φωτεινές linear Led σχεδιαστικές παρεμβάσεις.

Κάτοψη διαμερίσματος, © MB Projects Athens


Στοιχεία & Συντελεστές έργου:
Τίτλος έργου: Vu Garden Apartment, Τυπολογία: Ριζική ανακαίνιση διαμερίσματος, Τοποθεσία: Λαιμός Βουλιαγμένης, Αρχιτεκτονική μελέτη: MB Projects Athens, Επίβλεψη – μελέτες εφαρμογής: Μαριαλένα Μπρεδάκη – Κατερίνα Καραμέρου, Εμβαδό:107 m², Έτος ολοκλήρωσης: 2022, Κείμενο παρουσίασης: Μαριαλένα Μπρεδάκη – Κατερίνα Καραμέρου, Φωτογραφίες: Δημήτρης Τσολακάκης

Υποβάλλετε ένα άρθρο

Το όνομά σας *

Το email σας *

Το θέμα του άρθρου σας *

kataskevesktirion.gr
kataskevesktirion.gr

Σχετικές δημοσιεύσεις

Αρχιτεκτονική μελέτη – Interior design – Project management: DOMES ARCHITECTS | Photo © Φίλιππος Πανούλης

6 Απριλίου 2026

SNAPPI Office Hub: Ένα πρότυπο εργασιακό περιβάλλον στο κέντρο της Αθήνας γεμάτο έντονα & φωτεινά χρώματα


Διαβάστε το άρθρο

Αρχιτεκτονική μελέτη – Σχεδιασμός - Ανάπτυξη & Διαχείριση έργου: Two Αrchitects Studio | Photo © Δημήτρης Παύλου

31 Μαρτίου 2026

Ένα σύγχρονο αστικό καταφύγιο στην καρδιά του Βόλου


Διαβάστε το άρθρο

Αρχιτεκτονικός σχεδιασμός: Γκέλη Δημητρακοπούλου | Photo © Notion The Agency

30 Μαρτίου 2026

Πόμελο: Ένα μεζεδοπωλείο σε διατηρητέο κέλυφος, όπου η λιτότητα του σχεδιασμού αναδεικνύει την υλικότητα & τη νησιώτικη γεωμετρία


Διαβάστε το άρθρο

Αρχιτεκτονική μελέτη – Ανάπτυξη & Διαχείριση έργου: Space Dreams | Photo © Απόλλωνας Γλύκας

27 Μαρτίου 2026

[chilling timelessly]: Ένα ανακαινισμένο διαμέρισμα στην Κυψέλη, ενώνει το παρελθόν με τη σύγχρονη εποχή


Διαβάστε το άρθρο

Design & Site supervision: Studio Thanasis | Photo © Lea Martin

24 Μαρτίου 2026

Studio Thanasis transforms this dark apartment in Kolonaki into a quality living space using natural daylight


Διαβάστε το άρθρο

Αρχιτεκονική Μελέτη & Επίβλεψη: Παναγιώτης Παπανικολάου | Photo © Παναγιώτης Παπανικολάου

23 Μαρτίου 2026

Ένα διαμέρισμα των ’80s στην Κηφισιά ανακαινίστηκε διατηρώντας τα στοιχεία της εποχής του – Και είναι απλά υπέροχο


Διαβάστε το άρθρο
Facebook __ Ακολουθήστε μας στο Facebook
Twitter __ Ακολουθήστε μας στο Twitter
Instagram __ Ακολουθήστε μας στο Instagram

Αναζήτηση

Επικοινωνήστε μαζί μας στο ακόλουθο email:

info[@]kataskevesktirion.gr

© 2025 Κατασκευές Κτιρίων. All Rights Reserved.