• Πρόσφατα έργα
    • Αρχιτεκτονικά
    • Design – Διακόσμηση
    • Μελέτες
    • Εργασίες
  • Δόμηση – Υποδομές
    • Ξενοδοχεία – Τουρισμός
    • Κατασκευές – Ακίνητα
    • Αστικές αναπλάσεις
    • Στατικά – Τοπογραφικά
  • Εξοικονόμηση – Ενέργεια
    • ΑΠΕ
    • Πράσινες επενδύσεις
    • Η/Μ Εγκαταστάσεις
    • Αυτοματισμοί – Τεχνολογία
  • Επιχειρήσεις
    • Εταιρικά Νέα
    • Ειδικές Τεχνολογίες
  • Αφιερώματα
  •  
Προκήρυξη αρχιτεκτονικού διαγωνισμού ιδεών για το ντεκ της παλιάς παραλίας Θεσσαλονίκης
27 Ιανουαρίου 2022
Πρόγραμμα προετοιμασίας πιστοποίησης κατασκευαστών 50 ωρών από την ALUMIL Academy
28 Ιανουαρίου 2022

Αρχιτεκτονική μελέτη – Επίβλεψη: MoC Architecture Collaborative, Photo © MoC Architecture Collaborative

Post Apoteca | farma’tʃia: Ανακατασκευή καταστήματος φαρμακείου στην Αθήνα

27 Ιανουαρίου 2022
Κατηγορίες
  • Design – Διακόσμηση
Ετικέτες
  • Post Apoteca | farma'tʃia
  • Αθήνα
  • ανακατασκευή
  • δάπεδο
  • επιφάνειες
  • λευκή οροφή
  • οριζόντια κύλιση
  • στοιχείο πλήρωσης
  • φαρμακείο
  • φωτιστικές επιφάνειες

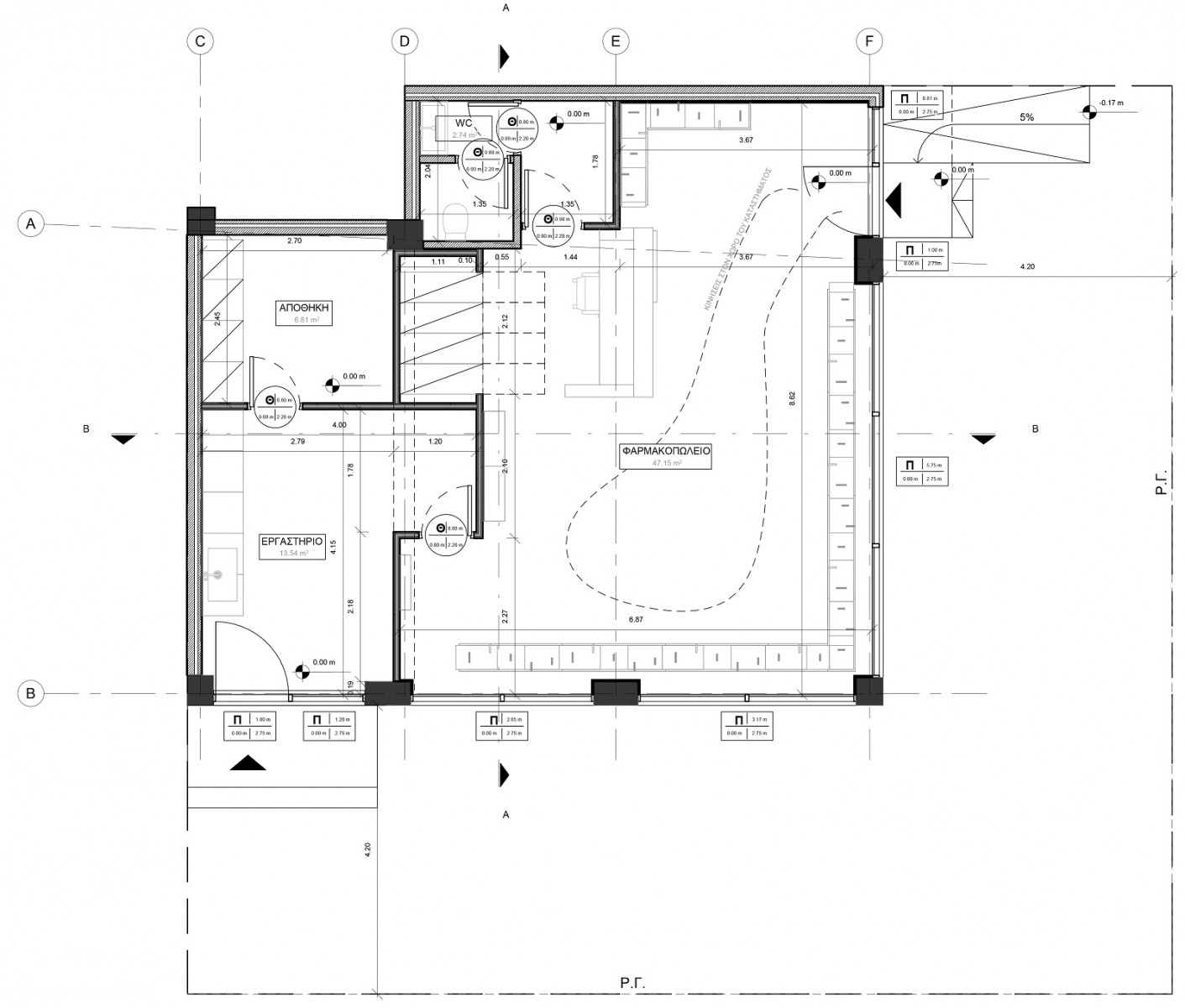
Το αρχιτεκτονικό γραφείο MoC Architecture Collaborative ολοκλήρωσε την ολική ανακατασκευή ενός φαρμακείου, στην Αθήνα, θέτοντας ως στόχο την λειτουργική και αισθητική αναβάθμιση του καταστήματος, σύμφωνα με τα πρότυπα ενός μίνιμαλ και οργανωμένου, σύγχρονου εργασιακού χώρου.

Ο χώρος επαναδιατυπώνει τον εαυτό του. Αναζητά τα πρώτα δομικά στοιχεία που τον συνέστησαν. Συμπίπτουν με έναν χώρο εσωστρεφή. Η δυναμική και αυστηρή του εσωστρέφεια παράγει την εντύπωση μίας ερμητικής μυσταγωγίας. Μία σειρά δυσνόητων τελετουργικών επεισοδίων λαμβάνουν χώρα καταλήγοντας σε δύο εμφανή μέλλοντα, στην ίαση αλλά και στην ταυτόχρονη πλήρωση στοιχείων-αντικειμένων «μυθικών», «θαυματουργών», ουτοπικών.

Αρχιτεκτονική μελέτη – Επίβλεψη: MoC Architecture Collaborative, Photo © MoC Architecture Collaborative


“Η παραπάνω διερεύνηση οδήγησε τους αρχιτέκτονες στην αρχική μόρφωση των συνθετικών τους εργαλείων”.


Αρχιτεκτονική μελέτη – Επίβλεψη: MoC Architecture Collaborative, Photo © MoC Architecture Collaborative

Αυτά εξελίχθηκαν επηρεαζόμενα από τις προφανείς λειτουργικές παραμέτρους για ταυτόχρονη έκθεση και αποθήκευση αντικειμένων. Συντίθεται, λοιπόν, ένα στοιχείο πλήρωσης, το οποίο δύναται να οργανώσει τον χώρο και να συντάξει ένα αρχιτεκτονικό λεξιλόγιο που διαπραγματεύεται την ίδια την υπόσταση και οντότητα του φαρμακείου.

Αρχιτεκτονική μελέτη – Επίβλεψη: MoC Architecture Collaborative, Photo © MoC Architecture Collaborative


“Το στοιχείο διασπάται σε μικρότερα τμήματα ως προς την ευελιξία και την προσαρμοστικότητά του”.


Αρχιτεκτονική μελέτη – Επίβλεψη: MoC Architecture Collaborative, Photo © MoC Architecture Collaborative

Ο παρόν εμβάτης ωστόσο δεν εμφανίζεται έτσι ώστε η πλήρωση να μην χάνει την χωρική της συνθήκη. Η συμπαγής βάση προβάλει τους χώρους αποθήκευσης, ενώ το εξελισσόμενο καθ’ ύψος σώμα του εμβάτη ορίζει ένα εναλλασσόμενο διττό εκθετήριο.

Αρχιτεκτονική μελέτη – Επίβλεψη: MoC Architecture Collaborative, Photo © MoC Architecture Collaborative

Μία οριζόντια κύλιση επιτυγχάνει ταυτόχρονα την μεγιστοποίηση της επιφάνειας έκθεσης και ωθεί στην απώλεια του σημείου ένωσης μεταξύ των εμβατών. Τα επιπρόσθετα μικρού μήκους κάθετα στοιχεία συνεισφέρουν ως κόμβοι στήριξης.

Αρχιτεκτονική μελέτη – Επίβλεψη: MoC Architecture Collaborative, Photo © MoC Architecture Collaborative

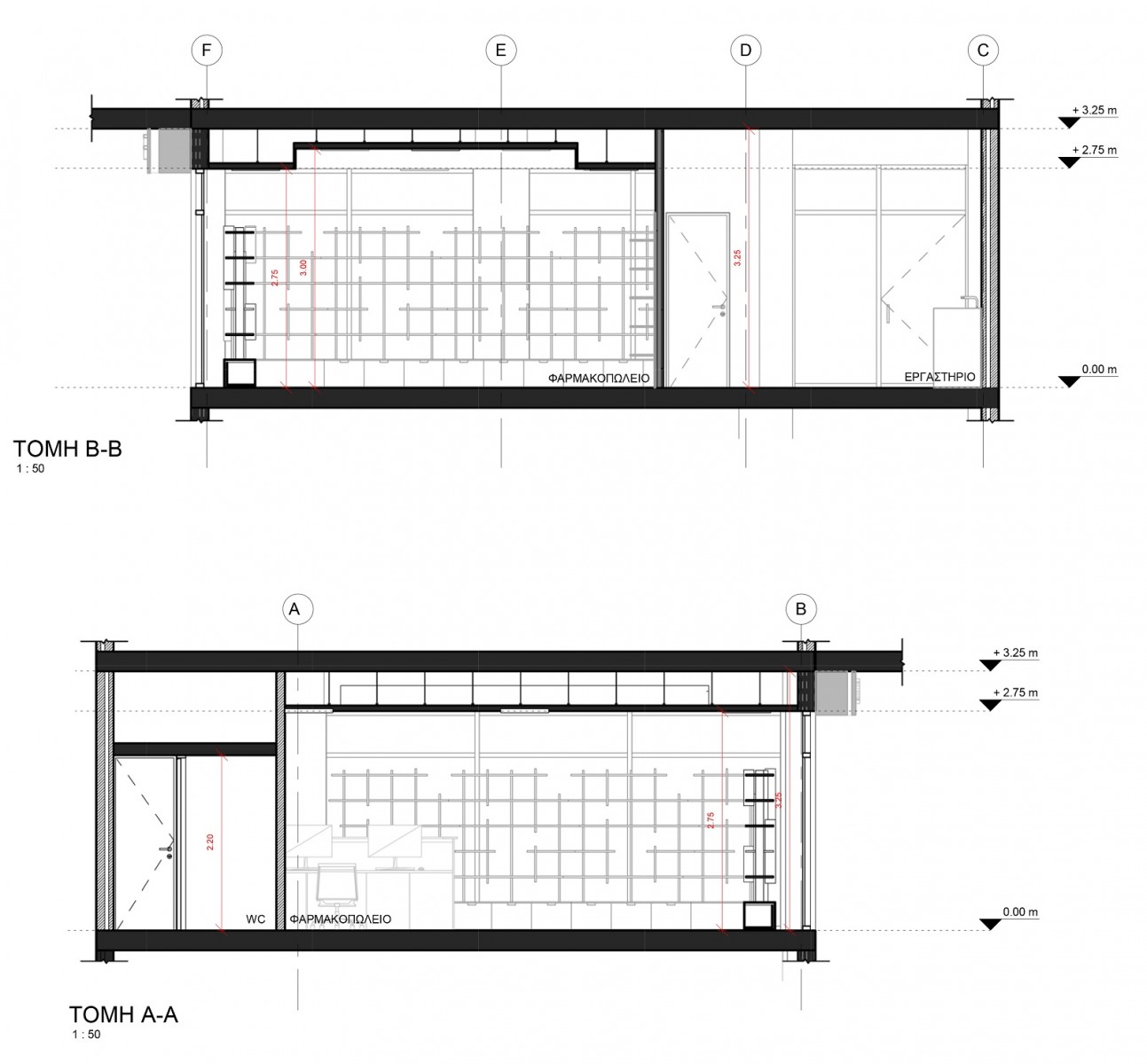
Οι οριζόντιες επιφάνειες του χώρου έρχονται να συνοδεύσουν την κάθετη πλήρωση. Η οροφή λευκή και συνεχής, με επίπεδες φωτιστικές επιφάνειες και η λείανση του ιδιαίτερου μαρμάρινου δαπέδου που βρέθηκε στο ακίνητο οδηγούν στον ίδιο σκοπό.

Αρχιτεκτονική μελέτη – Επίβλεψη: MoC Architecture Collaborative, Photo © MoC Architecture Collaborative


Στοιχεία & Συντελεστές έργου:
Τίτλος έργου: Post Apoteca | farma’tʃia, Τυπολογία: Ανακατασκευή καταστήματος φαρμακείου, Τοποθεσία: Αθήνα – Ελλάδα, Ιδιοκτήτης: Φαρμακείο Καλλιόπη Σιδωράκη, Αρχιτεκτονική μελέτη – Επίβλεψη: MoC Architecture Collaborative, Τεχνικός Σύμβουλος: Αρχ. Μηχ. Πρόδρομος Γουναρίδης, Κατασκευές – Ξυλουργικά: Ιωάννης Ασπρογέρακας, Συνολική Επιφάνεια: 84,28 m², Χρόνος Μελέτης: 2021, Χρόνος Κατασκευής: 2021, Κείμενο παρουσίασης – Φωτογραφίες: MoC Architecture Collaborative

English description: MoC Architecture Collaborative studio completed the total reconstruction of a pharmacy store in Athens, having as main design goal the functional and aesthetic upgrade of the space through the clear organized look of a modern workplace.

Space redefines itself. Seeking for the primordial firmitas that established itself. Coinciding with an introvert space. The dynamic and strict introversion produces the impression of a hermetic mystagogy. A series of obscure ritual events take place, concluding in two obvious futures, in healing and the simultaneous incorporation of elements-objects “mythical”, “miraculous”, utopian.

3D visual, © MoC Architecture Collaborative


“The above investigation led architects to the initial formation of their design tools”.


Exploded axonometric, © MoC Architecture Collaborative

These are evolved further under the influence of the obvious functional parameters and needs for together exhibition and storage of objects – products. Therefore, an infill element is composed which can organize the space and compile an architectural vocabulary that negotiates the very existence and entity of the pharmacy.

Axonometric, © MoC Architecture Collaborative


“The element is split into smaller parts due to its flexibility and adaptability.


Plan, © MoC Architecture Collaborative

The present module, it’s seamless, so as the infill element does not lose its spatial quality. The solid base displays the storage spaces while the evolving body defines an alternating double display surface. A horizontal sliding, concurrently achieves the maximization of the exhibition surface and pushes on the loss of the junction between the modules, while additional vertical elements contribute as structural nodes.

Section A-A & B-B, © MoC Architecture Collaborative

The horizontal surfaces of space come to accompany the vertical filling. A white and continuous ceiling, with flat lighting surfaces and the polishing of the marble floor lead to the same purpose.

Construction details, © MoC Architecture Collaborative


Facts & Credits:
Project title: Post Apoteca | farma’tʃia, Typology: Pharmacy reconstruction, Location: Athens – Greece, Owner: Kalliopi Sidoraki Pharmacy, Architectural design – Supervision: MoC Architecture Collaborative, Technical Consultant: Arch. Prodromos Gounaridis, Constructions – Carpentry: Ioannis Asprogerakas, Total Surface: 84,28 m², Design period: 2021, Construction period: 2021, Photography: MoC Architecture Collaborative

Υποβάλλετε ένα άρθρο

Το όνομά σας *

Το email σας *

Το θέμα του άρθρου σας *

kataskevesktirion.gr
kataskevesktirion.gr

Σχετικές δημοσιεύσεις

Αρχιτεκτονική μελέτη – Interior design – Project management: DOMES ARCHITECTS | Photo © Φίλιππος Πανούλης

6 Απριλίου 2026

SNAPPI Office Hub: Ένα πρότυπο εργασιακό περιβάλλον στο κέντρο της Αθήνας γεμάτο έντονα & φωτεινά χρώματα


Διαβάστε το άρθρο

Αρχιτεκτονική μελέτη – Σχεδιασμός - Ανάπτυξη & Διαχείριση έργου: Two Αrchitects Studio | Photo © Δημήτρης Παύλου

31 Μαρτίου 2026

Ένα σύγχρονο αστικό καταφύγιο στην καρδιά του Βόλου


Διαβάστε το άρθρο

Αρχιτεκτονικός σχεδιασμός: Γκέλη Δημητρακοπούλου | Photo © Notion The Agency

30 Μαρτίου 2026

Πόμελο: Ένα μεζεδοπωλείο σε διατηρητέο κέλυφος, όπου η λιτότητα του σχεδιασμού αναδεικνύει την υλικότητα & τη νησιώτικη γεωμετρία


Διαβάστε το άρθρο

Αρχιτεκτονική μελέτη – Ανάπτυξη & Διαχείριση έργου: Space Dreams | Photo © Απόλλωνας Γλύκας

27 Μαρτίου 2026

[chilling timelessly]: Ένα ανακαινισμένο διαμέρισμα στην Κυψέλη, ενώνει το παρελθόν με τη σύγχρονη εποχή


Διαβάστε το άρθρο

Design & Site supervision: Studio Thanasis | Photo © Lea Martin

24 Μαρτίου 2026

Studio Thanasis transforms this dark apartment in Kolonaki into a quality living space using natural daylight


Διαβάστε το άρθρο

Αρχιτεκονική Μελέτη & Επίβλεψη: Παναγιώτης Παπανικολάου | Photo © Παναγιώτης Παπανικολάου

23 Μαρτίου 2026

Ένα διαμέρισμα των ’80s στην Κηφισιά ανακαινίστηκε διατηρώντας τα στοιχεία της εποχής του – Και είναι απλά υπέροχο


Διαβάστε το άρθρο
Facebook __ Ακολουθήστε μας στο Facebook
Twitter __ Ακολουθήστε μας στο Twitter
Instagram __ Ακολουθήστε μας στο Instagram

Αναζήτηση

Επικοινωνήστε μαζί μας στο ακόλουθο email:

info[@]kataskevesktirion.gr

© 2025 Κατασκευές Κτιρίων. All Rights Reserved.