• Πρόσφατα έργα
    • Αρχιτεκτονικά
    • Design – Διακόσμηση
    • Μελέτες
    • Εργασίες
  • Δόμηση – Υποδομές
    • Ξενοδοχεία – Τουρισμός
    • Κατασκευές – Ακίνητα
    • Αστικές αναπλάσεις
    • Στατικά – Τοπογραφικά
  • Εξοικονόμηση – Ενέργεια
    • ΑΠΕ
    • Πράσινες επενδύσεις
    • Η/Μ Εγκαταστάσεις
    • Αυτοματισμοί – Τεχνολογία
  • Επιχειρήσεις
    • Εταιρικά Νέα
    • Ειδικές Τεχνολογίες
  • Αφιερώματα
  •  
Zeus International: Ανακαινίστηκε πλήρως το ξενοδοχείο Eretria Hotel & Spa Resort στην Εύβοια
12 Μαΐου 2021
Υπεγράφη η σύμβαση για την ενεργειακή αναβάθμιση του Γενικού Νοσοκομείου Καστοριάς
13 Μαΐου 2021

Αρχιτεκτονική μελέτη – Interior design: EKKY studio architects + Λία Χαρτούτσιου, Photo © CreativePhotoRoom

Kagas Hairdressing Salon: Μινιμαλιστική διακόσμηση σε ένα κομμωτήριο με άποψη

12 Μαΐου 2021
Κατηγορίες
  • Design – Διακόσμηση
Ετικέτες
  • Kagas Hairdressing Salon
  • minimal
  • διακόσμηση
  • διακοσμητική σπάτουλα
  • έπιπλα
  • κομμωτήριο
  • Κύπρος
  • Λευκωσία
  • μέταλλο
  • ξύλο
  • υλικα
  • φυτά

Το Kagas Hairdressing Salon, ένα κομμωτήριο στην Λευκωσία της Κύπρου, σχεδιάστηκε από το αρχιτεκτονικό γραφείο EKKY studio architects, με στόχο τη δημιουργία ενός σύγχρονου χώρου, που αποτελείται απο καθαρούς άξονες, εκφράζοντας ένα μινιμαλιστικό χαρακτήρα και δίνοντας παράλληλα έμφαση στη λειτουργικότητα και στη μέγιστη αξιοποίηση του υφιστάμενου χώρου.

Στοιχεία όπως ο χώρος υποδοχής, το μπαρ – χώρος αναμονής, τα φυτά, ο διακριτικός φωτισμός δημιουργούν αίσθηση οικειότητας και ευχάριστης ατμόσφαιρας προς τους πελάτες και τους εργαζόμενους, χωρίς να προδίδεται αμέσως η χρήση του χώρου ως κομμωτηρίο.

Αρχιτεκτονική μελέτη – Interior design: EKKY studio architects + Λία Χαρτούτσιου, Photo © CreativePhotoRoom

Αρχιτεκτονική μελέτη – Interior design: EKKY studio architects + Λία Χαρτούτσιου, Photo © CreativePhotoRoom

Αρχιτεκτονική μελέτη – Interior design: EKKY studio architects + Λία Χαρτούτσιου, Photo © CreativePhotoRoom


“Επίσης δόθηκε έμφαση στη σωστή διακίνηση των χρηστών, μέσω του σχεδιασμού διαδρόμων, οι οποίοι διαχωρίζουν τις διαφορετικές ζώνες εργασίας”.


Αρχιτεκτονική μελέτη – Interior design: EKKY studio architects + Λία Χαρτούτσιου, Photo © CreativePhotoRoom

Αρχιτεκτονική μελέτη – Interior design: EKKY studio architects + Λία Χαρτούτσιου, Photo © CreativePhotoRoom

Αρχιτεκτονική μελέτη – Interior design: EKKY studio architects + Λία Χαρτούτσιου, Photo © CreativePhotoRoom

Τα υλικά και οι υφές που χρησιμοποιήθηκαν ανταποκρίνονται στις σύγχρονες τάσεις σχεδιασμού, συνδιάζοντας αρμονικά ψυχρά και ζεστά υλικά όπως ξύλο, μέταλλο, διακοσμητική σπάτουλα. Βασικό υλικό στο σχεδιασμό είναι οι κάθετες λωρίδες μεταλλικής λαμαρίνας, που έχουν χρησιμοποιηθεί ως κύρια επένδυση στο  χώρο.

Αρχιτεκτονική μελέτη – Interior design: EKKY studio architects + Λία Χαρτούτσιου, Photo © CreativePhotoRoom

Αρχιτεκτονική μελέτη – Interior design: EKKY studio architects + Λία Χαρτούτσιου, Photo © CreativePhotoRoom

Αρχιτεκτονική μελέτη – Interior design: EKKY studio architects + Λία Χαρτούτσιου, Photo © CreativePhotoRoom


“Όλα τα έπιπλα είναι σχεδιασμένα και ειδικά προσαρμοσμένα βάση του χώρου αλλά και των ανάγκών των χρηστών του κομμωτηρίου”.


Αρχιτεκτονική μελέτη – Interior design: EKKY studio architects + Λία Χαρτούτσιου, Photo © CreativePhotoRoom

Αρχιτεκτονική μελέτη – Interior design: EKKY studio architects + Λία Χαρτούτσιου, Photo © CreativePhotoRoom

Κρυφές θύρες για βοηθητικά δωμάτια και εσωτερικοί αποθηκευτικοί χώροι στοχεύουν στη διατήρηση καθαρών όψεων και ταυτόχρονα βοηθούν στη λειτουργικότητα του χώρου.

Αρχιτεκτονική μελέτη – Interior design: EKKY studio architects + Λία Χαρτούτσιου, Photo © CreativePhotoRoom

Αρχιτεκτονική μελέτη – Interior design: EKKY studio architects + Λία Χαρτούτσιου, Photo © CreativePhotoRoom

Αρχιτεκτονική μελέτη – Interior design: EKKY studio architects + Λία Χαρτούτσιου, Photo © CreativePhotoRoom

Αρχιτεκτονική μελέτη – Interior design: EKKY studio architects + Λία Χαρτούτσιου, Photo © CreativePhotoRoom

Τα φυτά είναι ένα στοιχείο που επαναλαμβάνεται στο χώρο, διαμορφώνοντας την ιδιωτικότητα μεταξύ των θέσεων εργασίας, ενώ επιτρέπει στο φως να διαχέεται ομοιόμορφα και να δημιουργεί ένα ενδιαφέρον παιχνίδι φωτός και σκιάς.

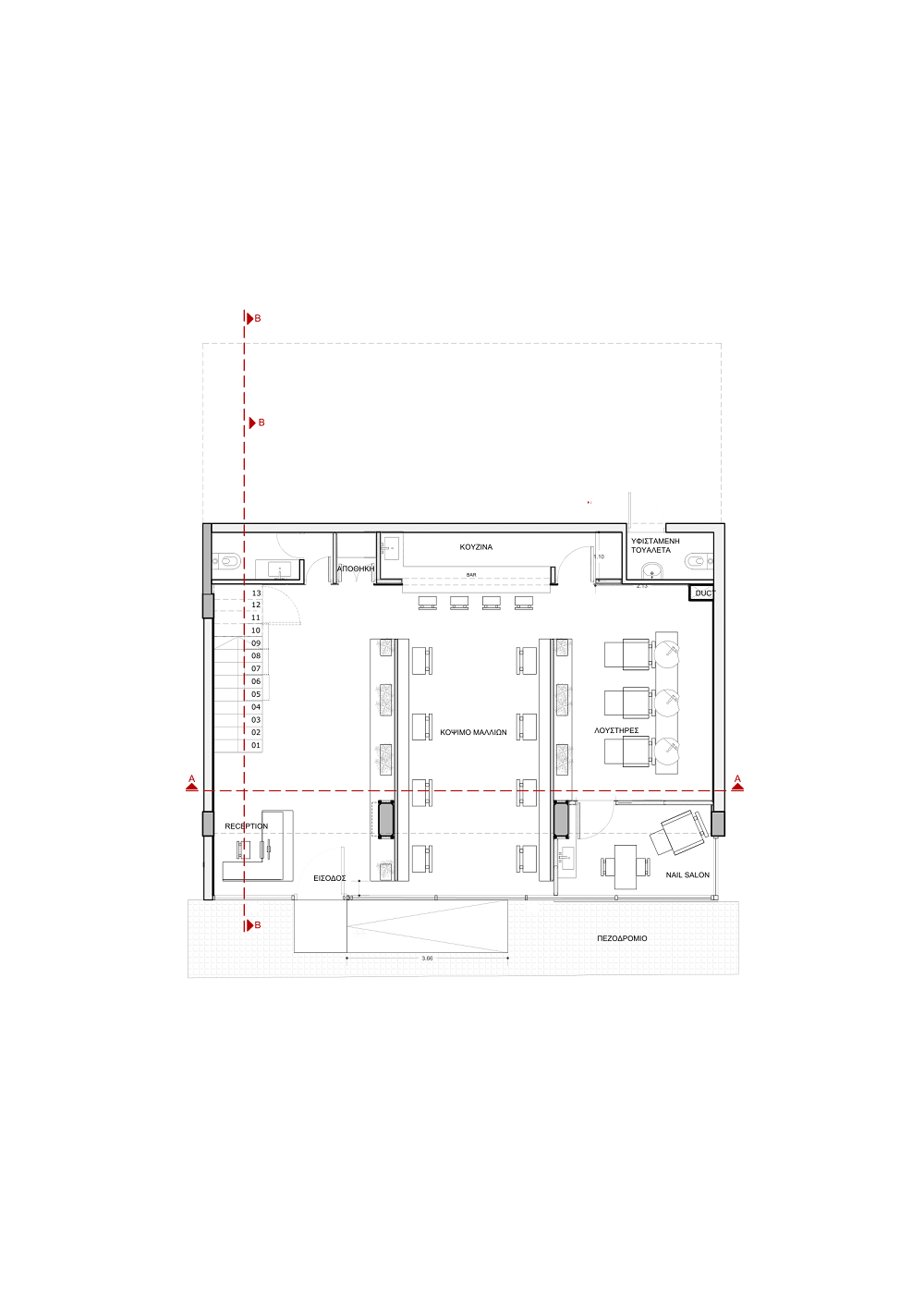
Κάτοψη ισογείου, © EKKY studio architects

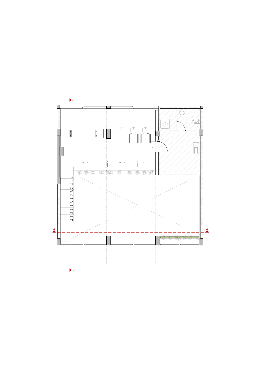
Κάτοψη 1ου ορόφου, © EKKY studio architects

Τομή Α-Α, © EKKY studio architects

Τομή Β-Β, © EKKY studio architects


Στοιχεία & Συντελεστές έργου:
Τίτλος έργου: Kagas Hairdressing Salon, Τυπολογία: Εμπορικό κατάστημα, Πελάτης: Kagkas Hair Stylist, Τοποθεσία: Λευκωσία – Κύπρος, Αρχιτεκτονική μελέτη – Interior design: EKKY studio architects, Ομάδα μελέτης: Ελίνα Κρητικού – Kenzo Yamashita – Λία Χαρτούτσιου, Η/Μ μελέτη: Jihaco electrical, Κατασκευή: UZZIEL Constructions (Χάρης Λισσώτης), Υπεργολάβος μεταλλικών κατασκευών: Παναγιώτης Χρίστου, Υπεργολάβος ξύλινων κατασκευών: Μάκης Παναγιώτου, Εμβαδόν: 160 m², Έτος μελέτης: 2019, Κατάσταση: Ολοκληρωμένο, Κείμενο παρουσίασης: EKKY studio architects, Φωτογραφίες: CreativePhotoRoom

Υποβάλλετε ένα άρθρο

Το όνομά σας *

Το email σας *

Το θέμα του άρθρου σας *

kataskevesktirion.gr
kataskevesktirion.gr

Σχετικές δημοσιεύσεις

Αρχιτεκτονική μελέτη – Interior design – Project management: DOMES ARCHITECTS | Photo © Φίλιππος Πανούλης

6 Απριλίου 2026

SNAPPI Office Hub: Ένα πρότυπο εργασιακό περιβάλλον στο κέντρο της Αθήνας γεμάτο έντονα & φωτεινά χρώματα


Διαβάστε το άρθρο

Αρχιτεκτονική μελέτη – Σχεδιασμός - Ανάπτυξη & Διαχείριση έργου: Two Αrchitects Studio | Photo © Δημήτρης Παύλου

31 Μαρτίου 2026

Ένα σύγχρονο αστικό καταφύγιο στην καρδιά του Βόλου


Διαβάστε το άρθρο

Αρχιτεκτονικός σχεδιασμός: Γκέλη Δημητρακοπούλου | Photo © Notion The Agency

30 Μαρτίου 2026

Πόμελο: Ένα μεζεδοπωλείο σε διατηρητέο κέλυφος, όπου η λιτότητα του σχεδιασμού αναδεικνύει την υλικότητα & τη νησιώτικη γεωμετρία


Διαβάστε το άρθρο

Αρχιτεκτονική μελέτη – Ανάπτυξη & Διαχείριση έργου: Space Dreams | Photo © Απόλλωνας Γλύκας

27 Μαρτίου 2026

[chilling timelessly]: Ένα ανακαινισμένο διαμέρισμα στην Κυψέλη, ενώνει το παρελθόν με τη σύγχρονη εποχή


Διαβάστε το άρθρο

Design & Site supervision: Studio Thanasis | Photo © Lea Martin

24 Μαρτίου 2026

Studio Thanasis transforms this dark apartment in Kolonaki into a quality living space using natural daylight


Διαβάστε το άρθρο

Αρχιτεκονική Μελέτη & Επίβλεψη: Παναγιώτης Παπανικολάου | Photo © Παναγιώτης Παπανικολάου

23 Μαρτίου 2026

Ένα διαμέρισμα των ’80s στην Κηφισιά ανακαινίστηκε διατηρώντας τα στοιχεία της εποχής του – Και είναι απλά υπέροχο


Διαβάστε το άρθρο
Facebook __ Ακολουθήστε μας στο Facebook
Twitter __ Ακολουθήστε μας στο Twitter
Instagram __ Ακολουθήστε μας στο Instagram

Αναζήτηση

Επικοινωνήστε μαζί μας στο ακόλουθο email:

info[@]kataskevesktirion.gr

© 2025 Κατασκευές Κτιρίων. All Rights Reserved.