• Πρόσφατα έργα
    • Αρχιτεκτονικά
    • Design – Διακόσμηση
    • Μελέτες
    • Εργασίες
  • Δόμηση – Υποδομές
    • Ξενοδοχεία – Τουρισμός
    • Κατασκευές – Ακίνητα
    • Αστικές αναπλάσεις
    • Στατικά – Τοπογραφικά
  • Εξοικονόμηση – Ενέργεια
    • ΑΠΕ
    • Πράσινες επενδύσεις
    • Η/Μ Εγκαταστάσεις
    • Αυτοματισμοί – Τεχνολογία
  • Επιχειρήσεις
    • Εταιρικά Νέα
    • Ειδικές Τεχνολογίες
  • Αφιερώματα
  •  
“Kafedromio” coffee shop reflects an authentic traditional side of Crete
8 Φεβρουαρίου 2021
Όμιλος ΗΡΑΚΛΗΣ: Το νέο προϊόν LYSIS αναδείχθηκε «Πράσινο Δομικό Υλικό της Χρονιάς»
9 Φεβρουαρίου 2021

Φωτορεαλιστική άποψη συγκροτήματος, © DO:GMa

Συγκρότημα Κοινωνικής Κατοικίας στα Πάνω Πολεμίδια της Λεμεσού: Όριο, ως Βάθος

8 Φεβρουαρίου 2021
Κατηγορίες
  • Μελέτες
Ετικέτες
  • διάταξη
  • διαφωνισμός.
  • καννάβος
  • κοινωνική κατοικία
  • Κύπρος
  • Λεμεσός
  • Όριος ως Βάθος
  • πρόταση
  • συγκρότημα

Το αρχιτεκτονικό γραφείο DO:GMa έλαβε μέρος στον αρχιτεκτονικό διαγωνισμό «Συγκρότημα Κοινωνικής Κατοικίας στα Πάνω Πολεμίδια στην Επαρχία Λεμεσού», παρουσιάζοντας μια πρόταση που έχει ως θεωρητική αφετηρία την ανάγκη εξόδου του σύγχρονου ανθρώπου από τον ασφυκτικό κλοιό της χρησιμότητας και της ωφελιμοθηρίας, μέσω της συμμετοχής του, στις από κοινού αποφάσεις για την αντιμετώπιση των προκλήσεων της σημερινής ζωής.

Όριο, ως Βάθος
Η άμεση σχέση με θεσμικές διαδικασίες οποιασδήποτε κλίμακας αποτελεί θεμελιώδη παράγοντα θετικής ενεργοποίησης της ύπαρξης, την ίδια στιγμή κατά την οποία αποτελεί την ουσιαστικότερη καταστρατήγηση του «εγώ».
Το βίωμα, ως η πρακτική και άμεση αντίσταση στο κήρυγμα από οποιοδήποτε πομπό και με οποιοδήποτε περιεχόμενο, είναι δυνατό από μόνο του να καταργήσει τις αποστάσεις του ατόμου από την πραγματικότητα, και με εφόδια το σεβασμό και την αναγνώριση της μοναδικότητας, να το καταστήσει ον κοινωνικό και κατανοητικό.
Η συμβολή της κατανόησης – μίας φράσης, μίας ανάγκης, ή ενός συμβάντος – είναι σημαντική στη δημιουργία της κοινής ιδέας και της προϋπάρχουσας συλλογικής γνώσης πάνω στην οποία βασίζεται η αλήθεια. Η τελευταία, ετυμολογικά (α + λήθη = εμφάνεια, μη απόκρυψη), αλλά και σημειολογικά (σύμπτωση κοινής διαπίστωσης), επαληθεύεται κοινωνούμενη στην εμπειρία της σχέσης. Έτσι, δημιουργείται η Πόλη.
Διάταξη, και κάνναβος ως μήτρα
Η πρόταση επιδιώκει συστηματικά τον κατά βούληση συσχετισμό του κατοίκου κάθε οικιστικής μονάδας με το άμεσο και, σταδιακά, με το ευρύ κοινωνικό περιβάλλον. Λειτουργεί ως προτεραιότητα η εξασφάλιση της ιδιωτικότητας κάθε οικιστικής μονάδας.
Παρέχεται, σε κάθε οικιστική μονάδα, μέσω της επέκτασης του εσωτερικού χώρου σε εξωτερικό, καλυμμένο, χώρο, αλλά και κήπο – επαφή με τη γη. Κατ’ αυτό τον τρόπο, η πρόταση στοχεύει στον άμεσο συσχετισμό του χρήστη με τον τόπο, αλλά και η ενίσχυση του στοιχείου της κοινής κατοικημένης επιφάνειας με τη διπλανή και το διπλανό του.

Κάτοψη Ισογείου, © DO:GMa


“Κατόπιν, με στόχο την οικονομία χώρου και περιμέτρου, οι μονάδες οργανώνονται σε ομάδες”.


Η μεσοτοιχία και η κοινή περίμετρος δημιουργούν σχηματισμούς, οι οποίοι, με συνδυασμό μεταξύ τους δημιουργούν δίκτυο συνδυασμένων οικιστικών ομάδων, με δυνατότητα επέκτασης σε κάνναβο. Η τελευταία λειτουργεί προγραμματικά, ως όριο και διεπαφή, ενώ δεν περιορίζεται σε μονοδιάστατη (γραμμική) συνθήκη.
Η ανάπτυξη προσανατολίζεται σύμφωνα με το ανάγλυφο του τεμαχίου υπό ανάπτυξη. Τα επίπεδα οργανώνονται σε αναβαθμίδες ενιαίου πλάτους και ίσης υψομετρικής διαφοράς μεταξύ τους, ώστε να διατηρηθεί στο βέλτιστο βαθμό το υφιστάμενο ανάγλυφο.
Το ακριβές πλάτος σχεδιάζεται έχοντας λάβει υπόψη παραμέτρους που αφορούν την πολεοδομία (αποστάσεις, συντελεστές, ορισμούς), την αρχιτεκτονική πρόταση (προγραμματικός στόχος), τη δομοστατική διάρθρωση (ανοίγματα, καταπονήσεις, οικονομία υλικού), και το κτηριολογικό πρόγραμμα (αριθμός μονάδων, εμβαδόν, και απαιτήσεις).
Προκρίνεται διάσταση της καννάβου τέτοια ώστε να μπορεί να εξυπηρετήσει τα απαιτούμενα εμβαδά ανά επίπεδο, ώστε η κύρια οικιστική μονάδα (κατοικία τριών υπνοδωματίων) να μπορεί να αναπτυχθεί, και να διαχωριστεί σε ιδιωτικό και δημόσιο ανά επίπεδο, σε ένα κελί της καννάβου.

Κάτοψη Ορόφου, © DO:GMa


“Οι – οργανωμένες σε ομάδες – οικιστικές μονάδες διατάσσονται στην κάνναβο με γνώμονα την ενεργοποίηση συσχετισμών μεταξύ μονάδων γειτονικής ομάδας”.


Ενώ το περιουσιακό όριο μεταξύ των μονάδων είναι υπαρκτό και – κατά βούληση εμφανές – επιδιώκεται μέσω της οπτικής σύνδεσης να καλλιεργηθεί η επιθυμία διερεύνησης του εύρους της γειτονίας και της σύσφιγξης των σχέσεων μεταξύ των ανθρώπων.
Η επάλληλη λειτουργία των συνδέσεων είναι δυνατό να διευρύνει την έννοια της γειτονίας και να δομήσει σταδιακά ένα ενιαίο δίκτυο με ισχυρούς κοινωνικούς δεσμούς στο σύνολο των μονάδων και έξω από αυτό.

Ισομετρική προβολή πρότασης, © DO:GMa

Στο οδικό σύνορο των τεμαχίων τοποθετούνται οι προσβάσεις πεζών, υπηρεσιών και οχημάτων από το οδικό δίκτυο, ενώ το μήκος της επαφής του τεμαχίου με τα όμορα τεμάχια, διατρέχεται από ράμπα πρόσβασης οχημάτων προς και από τους χώρους στάθμευσης των μονάδων που βρίσκονται εσωτερικά της ανάπτυξης.

“Με αυτή τη διάταξη, η κίνηση οχημάτων και οι προσβάσεις σχεδιάζονται εκτός πυρήνα”.


Τον τελευταίο, πέραν των ιδιωτικών εξωτερικών χώρων στην περίμετρο κάθε μονάδας, διατρέχει στον άξονα Βορρά-Νότου μία ελικοειδής διαδρομή – κλιμακωτή στη μία πτυχή της, επίπεδη στην άλλη, αφού ακολουθεί το ανάγλυφο – η οποία εξυπηρετεί τη διακίνηση διαμέσου της ανάπτυξης, την ίδια στιγμή που αποτελεί ζώνη διακίνησης και δραστηριότητας στη διεπαφή μεταξύ μονάδων.
Κάθε κελί της καννάβου που βρίσκεται στον πυρήνα και δεν καταλαμβάνεται από κτήριο τελεί υπό τη συνθήκη αντιπαραβολής δύο ιδιωτικών υπαίθριων χώρων εκατέρωθεν της ζώνης διακίνησης.
Το συνθετικό, αυτό, στοιχείο, επιδιώκει να συνδέσει το ιδιωτικό με το δημόσιο και πάλι με το ιδιωτικό δημιουργώντας αισθητικές και νοητές συνδέσεις μεταξύ των παρισταμένων, είτε βρίσκονται σε στάση, είτε βρίσκονται σε κίνηση, είτε βρίσκονται στο σπίτι, είτε βρίσκονται εκτός.
Η συναναστροφή μεταξύ των κατοίκων γειτονικών και διευρυμένης γειτονίας μονάδων ενθαρρύνεται περαιτέρω από την ενίσχυση της δυνατότητας οπτικής διείσδυσης που παρέχεται από τη διαμπερότητα των μονάδων στο ισόγειο και τη δυνατότητα αμφιθέασης σε συνδυασμό με τον όροφο.

“Η ιδιωτικότητα των μονάδων (ιδιαίτερα στη ζώνη των υπνοδωματίων στον όροφο) παραμένει ως επιλογή, μολαταύτα δεν είναι η μοναδική”.


Στο σύνολό τους, οι είκοσι-οκτώ (28) οικιστικές μονάδες, προκύπτουσες από την ενεργοποίηση της καννάβου στο πεδίο υπό ανάπτυξη, βάσει των παραμέτρων που τέθηκαν, διατηρούν σχέσεις άμεσης και έμμεσης γειτονίας, με αριθμό άλλων μονάδων ικανό να θέσει τις βάσεις για το σκεπτικό της πρότασης.

“Η καταληκτική συνθήκη της αρχικής πρόθεσης είναι η κατάργηση της ανάγκης και της παρουσίας των περιφράξεων για προστασία γύρω από κάθε μονάδα”.


Το πρώτο και πιο αποφασιστικό βήμα προς εκείνη την κατεύθυνση γίνεται με την παροχή της υποδομής. Η ενεργοποίηση και απενεργοποίηση αυτής της – εκ πρώτης σκέψης – ουτοπικής πρόθεσης αφήνεται στους κατοίκους των μονάδων με στόχο να αποτελέσει την πρώτιστη και πιο σημαντική πολιτική τους θέση.

Ανατολική Όψη, © DO:GMa

Δυτική Όψη, © DO:GMa

Εγκάρσια τομή, © DO:GMa

Διαμήκης Τομή, © DO:GMa

Στην ανάπτυξη περιλαμβάνονται δύο κατοικίες δύο υπνοδωματίων (2Χ2υ), είκοσι-τέσσερις κατοικίες τριών υπνοδωματίων (24Χ3υ), και δύο κατοικίες τεσσάρων υπνοδωματίων (2Χ4υ). Στο σύνολό της, η ανάπτυξη φιλοδοξεί να φιλοξενήσει 84-112 κατοίκους αναλόγως με τον τύπο της οικογένειας που θα φιλοξενηθεί σε κάθε μονάδα.
Στο Βόρειο τμήμα της ανάπτυξης (Τμήμα Α) χωροθετούνται πέντε οικιστικές μονάδες (2Χ2υ + 1Χ3υ + 2Χ4υ = 15-20 μόνιμοι κάτοικοι) ομαδοποιημένες σε ένα στερεό των πέντε μονάδων, ενώ στο Νότιο τμήμα (Τμήμα Β) χωροθετούνται 23 οικιστικές μονάδες (23Χ3υ = 69-92 μόνιμοι κάτοικοι), ομαδοποιημένες σε πέντε στερεά των τριών μονάδων και δύο στερεά των τεσσάρων μονάδων.

Φωτορεαλιστική άποψη συγκροτήματος, © DO:GMa


“Σε κάθε μονάδα, το ισόγειο αφιερώνεται στις οικογενειακές και φιλικές συναναστροφές”.


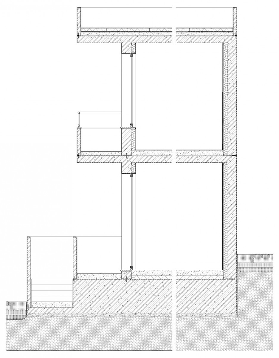
Κατασκευαστική λεπτομέρεια, © DO:GMa

Ο χώρος της εστίας, σχεδιάζεται απέναντι από την κλίμακα που οδηγεί στον όροφο, ώστε να αποτελεί τη συνδετική περιοχή μεταξύ του χώρου διημέρευσης και του χώρου ανάπαυσης. Καθιστικό και τραπεζαρία επωφελούνται από τη διαμπερότητα του σχεδιασμού, και την ευκαιρία της υπαίθριας προέκτασης, και ως προγραμματική συνθήκη (αμφιθέαση και επαφή με τη γη και τους γείτονες), και ως μνεία στο μεσογειακό τρόπο ζωής που ευνοεί την υπαίθρια δραστηριότητα.

Φωτορεαλιστική άποψη καθιστικού, © DO:GMa

Φωτορεαλιστική άποψη χώρου εργαλειών, © DO:GMa


“Κάτω από την κλίμακα εγκαθίσταται χώρος υγιεινής, και στο μέτωπό της υπάρχει η αναμονή για βιβλιοθήκη”.


Φωτορεαλιστική άποψη χώρου καλλιέργειας, © DO:GMa

Ο όροφος ανάπαυσης και περισυλλογής σχεδιάζεται με τα υπνοδωμάτια, εκατέρωθεν διαδρόμου, ο οποίος στη στέψη και τη βάση του, περιέχει τους υγρούς χώρους (πλυσταριό και λουτρό).

Φωτορεαλιστική άποψη χώρου άθλησης, © DO:GMa

Οι προεξοχές έξω από τα υπνοδωμάτια στο επίπεδο οροφής ισογείου και οροφής ορόφου προσφέρουν τη δυνατότητα σκίασης στους προσανατολισμούς που διευκολύνεται, αλλά, κυρίως, την ευκαιρία διατήρησης φυτών εξωτερικού χώρου γύρω από το υπνοδωμάτιο.

Φωτορεαλιστική άποψη χώρου γυμναστικής, © DO:GMa

Έχοντας εις γνώση, ότι η χρήση τους πιθανόν να μην περιοριστεί στη φύτευση και με την βεβαιότητα ότι η συγκεκριμένη κίνηση αποτελεί την ελάχιστη δυνατή υπονόμευση των πολεοδομικών κανονισμών για τις μη-βατές αρχιτεκτονικές προεξοχές, σχεδιάζεται κιγκλίδωμα μέχρι το απαιτούμενο επίπεδο για προστασία.

Φωτορεαλιστική άποψη προαύλιου χώρου, © DO:GMa

Η οροφή σχεδιάζεται ως μη-βατό δώμα, έχει πρόσβαση από εξωτερική σκάλα και προορίζεται για υπηρεσίες σχετικές με την υδραυλική και ηλεκτρική εγκατάσταση.

Φωτορεαλιστική άποψη αυλής, © DO:GMa

Φωτορεαλιστική άποψη τραπεζαρίας, © DO:GMa

Φωτορεαλιστική άποψη κήπου, © DO:GMa

Επίλογος
Η διεύρυνση της γειτονίας μέσω της διεύρυνσης του βάθους του υπαρκτού ορίου, αντιπροσωπεύει κατά κάποιο τρόπο και σε ένα βαθμό την ανατροπή, ή, έστω, την υπονόμευση, της επικρατούσας κανονιστικής συνθήκης διαχωρισμού του οδικού συνόρου με το έτερο σύνορο.
Η πρόταση διαχειρίζεται τα σύνορα κάθε μονάδας ως κοινά είτε είναι οδικά είτε είναι άλλου είδους, ενώ ταυτόχρονα το όριο μεταξύ των μονάδων αποκτά βάθος συναρμογής, ώστε να διευκολυνθεί η συνύπαρξη με μεγαλύτερο αριθμό μονάδων από τις όμορες. Το όριο της συνύπαρξης, μετατρέπεται σε συνύπαρξη επί του ορίου. Αυτή η αρχιτεκτονική πρόνοια αποτελεί την ελάχιστη πολιτική συμβολή προς το στόχο του να ζούμε μαζί.

Φωτορεαλιστική απόψη εσωτερικού χώρου καθιστικού, © DO:GMa

Φωτορεαλιστική απόψη εσωτερικού χώρου κουζίνας, © DO:GMa


Στοιχεία & Συντελεστές πρότασης:
Τίτλος διαγωνισμού: Συγκρότημα Κοινωνικής Κατοικίας στα Πάνω Πολεμίδια στην Επαρχία Λεμεσού. Τυπολογία: Αρχιτεκτονικός διαγωνισμός, Διοργάνωση: Κυπριακός Οργανισμός Αναπτύξεως Γης, Αρχιτεκτονική μελέτη: DO:GMa, Ομάδα μελέτης: Γεώργιος Μακρίδης – Κωνσταντίνα Βοσκαρίδου – Κωνσταντίνα Χαραλάμπους – Έλενα Πηλλακούρη – Αντωνία Γεωργίου
<

Υποβάλλετε ένα άρθρο

Το όνομά σας *

Το email σας *

Το θέμα του άρθρου σας *

kataskevesktirion.gr
kataskevesktirion.gr

Σχετικές δημοσιεύσεις

Αρχιτεκτονική μελέτη – Στατική μελέτη – Αρχιτεκτονική τοπίου: Vrantsi | Φωτορεαλιστική απεικόνιση © Vrantsi

16 Απριλίου 2026

Villa Earth: Μια φουτουριστική βίλα που μοιάζει να αναδύεται από τις ακτές της Μεσογείου σαν υπερπολυτελές γιοτ


Διαβάστε το άρθρο

Αρχιτεκτονική Μελέτη: The Hive Architects | Φωτορεαλιστική απεικόνιση © The Hive Architects

14 Απριλίου 2026

Μια μονοκατοικία στο Μαρούσι που βασίζεται στον γεωμετρικό σχεδιασμό & τη σύγχρονη πολυτέλεια


Διαβάστε το άρθρο

Αρχιτεκτονική μελέτη - Γενικό Πολεοδομικό Σχέδιο Χερσαίας Ζώνης - Μελέτη Τοπίου: Neiheiser Argyros | Φωτορεαλιστική απεικόνιση © DUEE Studio

1 Απριλίου 2026

Μια νέα μαρίνα για την Ερμιόνη, σχεδιασμένη ως επέκταση του αρχαίου χωριού της περιοχής


Διαβάστε το άρθρο

Αρχιτεκτονική μελέτη: FOTIS ZAPANTIOTIS associated architects | Φωτορεαλιστική απεικόνιση © STUDIO TAF

13 Μαρτίου 2026

Ένα υπόσκαφο οινοποιείο μοιάζει να «σχίζει» το καταπράσινο τοπίο σε μια πλαγιά της Αιδηψού


Διαβάστε το άρθρο

Αρχιτεκτονική Μελέτη: The Hive Architects | Φωτορεαλιστική απεικόνιση © IDAA – Nikos Mathioudakis

12 Μαρτίου 2026

FLUENTUS Residences: Τρεις υπόσκαφες κατοικίες γίνονται ένα με το φυσικό κυκλαδίτικο τοπίο


Διαβάστε το άρθρο

Architecture - Interior design: EFTEKTON Architects & Engineers | 3d depiction © EFTEKTON Architects & Engineers

6 Μαρτίου 2026

Timeless design & contemporary materiality complete Eftekton architects’ apartment interior in central Athens


Διαβάστε το άρθρο
Facebook __ Ακολουθήστε μας στο Facebook
Twitter __ Ακολουθήστε μας στο Twitter
Instagram __ Ακολουθήστε μας στο Instagram

Αναζήτηση

Επικοινωνήστε μαζί μας στο ακόλουθο email:

info[@]kataskevesktirion.gr

© 2025 Κατασκευές Κτιρίων. All Rights Reserved.