Σε ένα από τα πιο γνωστά κοσμοπολίτικα σοκάκια της χώρας της Μυκόνου, στα Ματογιάννια, βρίσκεται το Squeezecoffee–bar. Το Squeezeαποτελεί ένα νέο διαμορφωμένο χώρο στη καρδιά της χώρας, που σχεδιάστηκε με τέτοιο τρόπο έτσι ώστε να λειτουργεί καθ’όλη τη διάρκεια της ημέρας, το πρωί σερβίροντας φρέσκους χυμούς, καφέ και πρόχειρο φαγητό και το βράδυ να μετατρέπεται σε ένα ατμοσφαιρικό cocktailbar.
Στόχος του σχεδιασμού, ήταν μέσα από μια μινιμαλιστική προσέγγιση να εκφραστεί η καθαρότητα των γραμμών και να αναδειχθούν τα παραδοσιακά αρχιτεκτονικά στοιχεία του αιγαιοπελαγίτικου τοπίου.
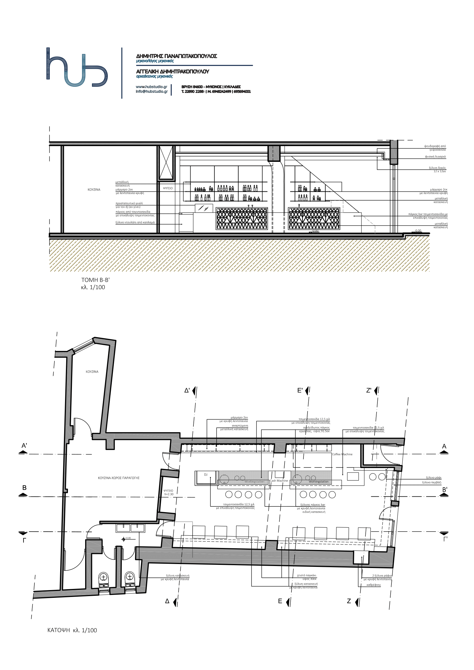
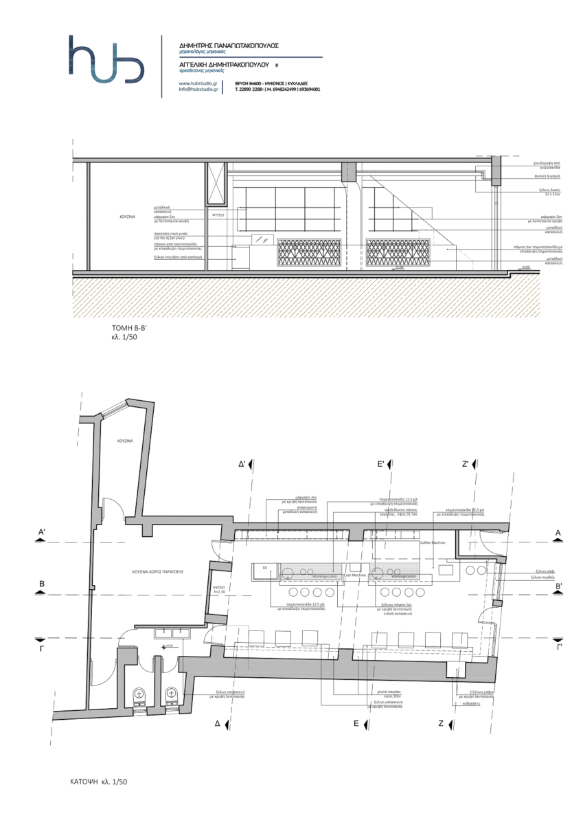
Για αυτό το λόγο διαμορφώθηκε η χαρακτηριστική καμάρα στη μέση περίπου του χώρου χωρίς όμως να δημιουργεί αυστηρά όρια και να εμποδίζει το φως να εισέλθει σε αυτόν. Οι αδρές επιφάνειες των τοίχων και του πατώματος σε γκρι-μπεζ αποχρώσεις τσιμεντοκονίας, τα κρεμαστά φωτιστικά από φυσική ψάθα και η οροφή από από φυσική λυγαριά δημιουργούν μία ζεστή και οικία ατμόσφαιρα.
Το στοιχείο που επικρατεί συνολικά στη διαμόρφωση του χώρου είναι τα τριγωνικά μοτίβα του παραδοσιακού κυκλαδίτικου περιστερώνα, όπου χρησιμοποιήθηκαν τόσο για τη διαμόρφωση των επίπλων του μπαρ, του καθιστικού, του WC όσο και για τη διαμόρφωση των φωτιζόμενων εσοχών στο διαχωριστικό τοίχο μεταξύ της κουζίνας και του κύριου χώρου.
Συγκεκριμένα το μπαρ αποτελείται από ένα ορθογωνικό πάγκο, επικαλυμμένο με τσιμεντοκονία σε ίδια απόχρωση με το πάτωμα ώστε να αποτελεί τη συνέχεια του, και δύο ξύλινες κατασκευές από κλωστρά με τριγωνικά μοτίβα σε επανάληψη, που έρχονται και “κουμπώνουν” πάνω στην όψη του πάγκου.
Με την ίδια λογική έχουν κατασκευαστεί και οι ξύλινοι πάγκοι του καθιστικού που διατρέχουν σχεδόν όλο το μήκος του μαγαζιού. Η κάβα πίσω από το μπαρ και τα custom made τραπεζάκια, σχεδιασμένα σε αυστηρά μοντέρνες γραμμές και χρησιμοποιώντας μαύρο μεταλλικό σκελετό και γκρι μάρμαρο, προσδίδουν στο χώρο ένα σύγχρονο διακοσμητικό χαρακτήρα.
The “Squeezecoffee–bar” is located in one of the most known cosmopolitan alleys of Mykonos, at Matogiannia. Squeeze is a new coffee bar in the most central part of Chora, designed in such a way that it can operate throughout the day, serving fresh juice, coffee and cold dishes in the morning while in the evening it becomes an atmospheric cocktail bar.
The aim of the design was the expression of the purity of lines and of the traditional Aegean Sea architecture through a minimalist approach. For this reason, in the middle of the space we created the characteristic Cycladic arc, without, however, forming strict boundaries and preventing the light from entering. The rough wall and floor surfacesin gray–beige cement mortar, the hanging lightings made of straw and the roof made of wicker create a warm and intimate atmosphere.
However, the most prominent elements are the triangular patterns of the traditional Cycladicdovecots, used both in the furniture of the bar, the living room, and the WC but as well in the lit cavities in the wall that separates the kitchen from the main area.
More specifically, the bar consists of a rectangular counter covered with cement mortar in the same color as the floor, becoming in this way its continuation, and two wooden clostrats with triangular patterns that come and “snap” over the facade of the counter.
The woodenbenchesof the living area running almost the entire length of the shop are of the same design. The shelves with the drink bottlesbehind the barand thecustommadetables, in austere, modern style with the black metal frame and the gray marble, give the space a modern aspect.