• Πρόσφατα έργα
    • Αρχιτεκτονικά
    • Design – Διακόσμηση
    • Μελέτες
    • Εργασίες
  • Δόμηση – Υποδομές
    • Ξενοδοχεία – Τουρισμός
    • Κατασκευές – Ακίνητα
    • Αστικές αναπλάσεις
    • Στατικά – Τοπογραφικά
  • Εξοικονόμηση – Ενέργεια
    • ΑΠΕ
    • Πράσινες επενδύσεις
    • Η/Μ Εγκαταστάσεις
    • Αυτοματισμοί – Τεχνολογία
  • Επιχειρήσεις
    • Εταιρικά Νέα
    • Ειδικές Τεχνολογίες
  • Αφιερώματα
  •  
«Πράσινο» για την υπαγωγή στον αναπτυξιακό του ξενοδοχείου Δουζόγλου στο Μικρολίμανο
19 Νοεμβρίου 2018
Grundfos Ελλάς: Συµµετοχή στο νέο πεντάστερο τουριστικό συγκρότηµα «Atlantica Dreams Resort & Spa» στη Ρόδο [pics]
20 Νοεμβρίου 2018

Σχεδιασμός / Επίβλεψη: Μόρας Αντώνιος, Photo © Μόρας Αντώνιος

Μετατροπή υφιστάμενου κτίσματος του 1980 σε νέο πρακτορείο “ΟΠΑΠ” στην πόλη της Λάρισας [pics]

19 Νοεμβρίου 2018
Κατηγορίες
  • Design – Διακόσμηση
Ετικέτες
  • interior design
  • γεωμετρία
  • ενότητες
  • Λάρισα
  • μετατροπή
  • πρακτορείο ΟΠΑΠ
  • υλικα
Το νέο πρακτορείο του ΟΠΑΠ εγκαταστάθηκε σε υφιστάμενο κτίριο της δεκαετίας του 1980 σε κεντρικό σημείο της πόλης της Λάρισας. Στο συγκεκριμένο χώρο στο παρελθόν είχαν την έδρα τους ετερόκλητες λειτουργίες του τομέα της παροχής υπηρεσιών (ατελιέ μόδας, τράπεζα κ.α.) οι οποίες είχαν αφήσει υλικά το στίγμα τους στο κτίριο, ειδικότερα καθώς είχε χρησιμοποιηθεί ως κατάστημα τράπεζας τα δάπεδα ήταν επενδυμένα με μάρμαρο λευκό & σκούρο πράσινο σε pattern που δημιουργούσε λωρίδες μέσω του contrast.

Σχεδιασμός / Επίβλεψη: Μόρας Αντώνιος, Photo © Μόρας Αντώνιος


Επένδυση με μάρμαρο υπήρχε και σε επιλεγμένα στοιχεία του φέροντα οργανισμού. Παρά τα ακριβά υλικά μεταγενέστερες επεμβάσεις με ιδιαίτερα ‘διακοσμητικό” χαρακτήρα είχαν δημιουργήσει αλλοιώσεις στην εικόνα του κτιρίου και του καταστήματος ειδικότερα μέσα από την εκτεταμένη χρήση γυψοσανίδων.

Σχεδιασμός / Επίβλεψη: Μόρας Αντώνιος, Photo © Μόρας Αντώνιος


Ούτε οι αρχιτέκτονες δεν πίστευαν την κατάχρηση σε υλικά μέχρι που ολοκληρώθηκε η διαδικασία των αποξηλώσεων και βρέθηκαν σε ένα εντελώς διαφορετικό χώρο από αυτόν που είχαν αρχικά επισκεφθεί.

Σχεδιασμός / Επίβλεψη: Μόρας Αντώνιος, Photo © Μόρας Αντώνιος


Σε συνεργασία με τους εντολοδόχους τους, κατέληξαν ότι θα χρησιμοποιούσαν τα υφιστάμενα υλικά και θα προσπαθούσαν να τα επισκευάσουν και να τα αναδείξουν όσο ήταν δυνατό.

Σχεδιασμός / Επίβλεψη: Μόρας Αντώνιος, Photo © Μόρας Αντώνιος


Λαμβάνοντας υπ’ όψη το γεγονός ότι η πολιτική του ΟΠΑΠ σε ζητήματα οπτικής ταυτότητας είναι αρκετά αυστηρή η χρήση όλων των χρωμάτων και των υλικών έγινε μέσα από το διαθέσιμο κατάλογο του ΟΠΑΠ ωστόσο οι μελετητές προχώρησαν ώστε να δώσουν σε σημεία άλλοτε ένα γεωμετρικό και άλλοτε ένα θεματικό twist.

Σχεδιασμός / Επίβλεψη: Μόρας Αντώνιος, Photo © Μόρας Αντώνιος


Το ίδιο συνέβη και με τις όψεις του καταστήματος όπου επιχειρήθηκε να αναδειχθεί ο αρχικό σχεδιασμός του κτιρίου με την προσθήκη των επιτρεπόμενων από τη νομοθεσία και την εταιρική ταυτότητα του ΟΠΑΠ ενημερωτικών πινακίδων.

Σχεδιασμός / Επίβλεψη: Μόρας Αντώνιος, Photo © Μόρας Αντώνιος


Σε πολλές περιπτώσεις η επέμβαση στο χώρο θύμιζε περισσότερο αποκατάσταση κτιρίου παρά συμβατική επέμβαση interior design με αλόγιστες συνθήκες. Με αυτό τον τρόπο το κόστος έμεινε χαμηλό ενώ παράλληλα ο χώρος έγινε πιο ευρύχωρος και εξωστρεφής.

Σχεδιασμός / Επίβλεψη: Μόρας Αντώνιος, Photo © Μόρας Αντώνιος


Για να είναι πιο φιλικός ο χώρος στους επισκέπτες έγινε χρήση υλικών που να παραπέμπουν στο ξύλο ενώ χρησιμοποιήθηκαν όπου επιτρεπόταν από την ταυτότητα του ΟΠΑΠ χρωματικές αποχρώσεις θερμές.

Σχεδιασμός / Επίβλεψη: Μόρας Αντώνιος, Photo © Μόρας Αντώνιος


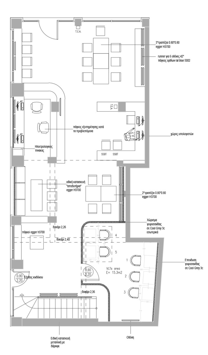
Ειδικότερα το κατάστημα χωρίζεται σε 4 αλληλοσυνδεόμενους και σε παράθεση χώρους στο ισόγειο. Σε μεγάλο βαθμό το κατάστημα θυμίζει sports café και μπορεί να υποστηρίξει και αντίστοιχες υπηρεσίες.

Σχεδιασμός / Επίβλεψη: Μόρας Αντώνιος, Photo © Μόρας Αντώνιος


Σχεδιασμός / Επίβλεψη: Μόρας Αντώνιος, Photo © Μόρας Αντώνιος


Οι ενότητες στις οποίες χωρίζεται είναι οι ακόλουθες:

→ Η fast lane που βρίσκεται σε άμεση επαφή με την είσοδο όπου και εξυπηρετούνται πελάτες που επιθυμούν να παίξουν γρήγορα. Τα έπιπλα κατασκευάστηκαν από μεταλλικό σκελετό και μελαμίνη από τον κατάλογο του ΟΠΑΠ ενώ χρησιμοποιήθηκαν μεταλλικά καθίσματα με κίτρινες λεπτομέρειες. Τα runner των οθονών, οι οθόνες και ο ηλεκτρομηχανολογικός εξοπλισμός ακολουθούν τις προδιαγραφές του ΟΠΑΠ για άνετη θέαση και στηρίζονται άλλοτε σε γυψοσανίδα και άλλες φορές σε μεταλλική κατασκευή. Για το φωτισμό του χώρου σχεδιάστηκαν δύο κυκλικά γραμμικά φωτιστικά από λαμαρίνα σε μαύρο χρώμα προσαρμοσμένα στη κλίμακα τόσο του χώρου αλλά και του παρακείμενου δρόμου έτσι ώστε να δημιουργηθούν και οπτικά ερεθίσματα στους περαστικούς που να προσκαλούν στο εσωτερικό. Ο φωτισμός συμπληρώνεται με μαύρα γραμμικά φωτιστικά χαμηλής κατανάλωσης ενέργειας και με ατμοσφαιρικό φωτισμό στα runners και στο ταμείο.

Σχεδιασμός / Επίβλεψη: Μόρας Αντώνιος, Photo © Μόρας Αντώνιος


→ Στο χώρο του ταμείου και των ηλεκτρονικών υπολογιστών όπου άμεσα μπορούν να εξυπηρετούνται οι επισκέπτες, να κάνουν χρήση του online gaming του ΟΠΑΠ και να έχουν και τη βοήθεια του εκπαιδευμένου προσωπικού του καταστήματος. Η μπλε πλάτη του ταμείου υποστηρίζει runners με οθόνες και συνοδεύεται από μεταλλικό πλέγμα ίδιας λογικής με αυτό του πρώτου χώρου. Ο πάγκος του ταμείου είναι γωνιακός και καμπυλωμένος με κρυφό φωτισμό και τα διακριτικά του ΟΠΑΠ κατά τις προδιαγραφές. Ο πάγκος κατασκευάστηκε εκ νέου.

Σχεδιασμός / Επίβλεψη: Μόρας Αντώνιος, Photo © Μόρας Αντώνιος


→ Τα «αποδυτήρια» όπου οι επισκέπτες μπορούν να μείνουν πιο άνετα στο χώρο, να πάρουν ένα καφέ, αναψυκτικό ή σνακ και να παρακολουθήσουν virtual αγώνες ή ότι άλλο. Τα αποδυτήρια κατασκευάστηκαν από μελαμίνη και συνδυάστηκαν με μεταλλικό πλέγμα το οποίο διαθέτει κρυφό φωτισμό. Η πλάτη τους σε χρώμα πράσινο αντλείται από το χρωματολόγιο του ΟΠΑΠ.

Σχεδιασμός / Επίβλεψη: Μόρας Αντώνιος, Photo © Μόρας Αντώνιος


→ Ο χώρος του Play χαρακτηρίζεται από το γαλάζιου χρώματος όγκο και τοποθετήθηκε με σκοπό να δημιουργηθεί ένα οπτικό ερέθισμα στο πίσω μέρος του καταστήματος αλλά και να ορίσει τις κινήσεις προς το πατάρι όπου μελλοντικά προβλέπεται η κατασκευή ενός πιο ιδιωτικού lounge για παρακολούθηση αγώνων και προς το υπόγειο (η σκάλα βρίσκεται πίσω από το μεταλλικό πλέγμα) όπου υπάρχουν βοηθητικές λειτουργίες αποθήκευσης και εξυπηρέτησης κοινού και προσωπικού (wc, κουζινάκι, αποδυτήρια κλπ). Στο υπόγειο αναδείχθηκε το παλιό θησαυροφυλάκιο της τράπεζας ως θεματικό αντικείμενο για εγκαταστάσεις που σχετίζονται με διαφορετικές περιόδους του χρόνου.

Σχεδιασμός / Επίβλεψη: Μόρας Αντώνιος, Photo © Μόρας Αντώνιος


Τα υλικά που χρησιμοποιήθηκαν αντλήθηκαν κατά κύριο λόγο από τα προβλεπόμενα από την ταυτότητα του ΟΠΑΠ. Οι ειδικές κατασκευές έπρεπε να εγκριθούν προ της κατασκευής τους από το σχετικό τμήμα του ΟΠΑΠ. Για την ολοκλήρωση των εργασιών εκδόθηκαν όλες οι σχετικές νόμιμες άδειες.

Κάτοψη © Μόρας Αντώνιος


Στοιχεία & Συντελεστές Έργου:

Έργο: Πρακτορείο ΟΠΑΠ, Τοποθεσία: Λάρισα, Σχεδιασμός – επίβλεψη: Μόρας Αντώνιος (Αρχιτέκτονας Μηχανικός) – Μανετζή Αλεξάνδρα (Aρχιτέκτονας Mηχανικός) – Μπάταλας Δημήτρης (Πολιτικός Μηχανικός – Interior Designer), Αποτυπώσεις: Μέρια Κέννυ (φοιτητής ΑΤΕΙ Πολιτικών Μηχανικών), Κατασκευή: Μπάταλας Δημήτρης, Χρόνος Μελέτης & Κατασκευής: Μάϊος – Ιούνιος 2018, Συνολική επιφάνεια: 140 τμ, Συνεργάτες: Τζιοβάνι Λατσινέ (γυψοσανίδες) – Γεροβασίλης Δημήτρης (ηλεκτρολογικές εγκαταστάσεις) – Δημοσθένης Παζάρας (μεταλλικές κατασκευές) – Άρτιον ΕΠΕ (Ξυλουργικά) – Αχιλλέας Οικονόμου (τζάμια/plexiglass), Κείμενο Παρουσίασης: Μόρας Αντώνιος, Φωτογραφίες: Μόρας Αντώνιος

Υποβάλλετε ένα άρθρο

Το όνομά σας *

Το email σας *

Το θέμα του άρθρου σας *

kataskevesktirion.gr
kataskevesktirion.gr

Σχετικές δημοσιεύσεις

Αρχιτεκτονική μελέτη – Interior design – Project management: DOMES ARCHITECTS | Photo © Φίλιππος Πανούλης

6 Απριλίου 2026

SNAPPI Office Hub: Ένα πρότυπο εργασιακό περιβάλλον στο κέντρο της Αθήνας γεμάτο έντονα & φωτεινά χρώματα


Διαβάστε το άρθρο

Αρχιτεκτονική μελέτη – Σχεδιασμός - Ανάπτυξη & Διαχείριση έργου: Two Αrchitects Studio | Photo © Δημήτρης Παύλου

31 Μαρτίου 2026

Ένα σύγχρονο αστικό καταφύγιο στην καρδιά του Βόλου


Διαβάστε το άρθρο

Αρχιτεκτονικός σχεδιασμός: Γκέλη Δημητρακοπούλου | Photo © Notion The Agency

30 Μαρτίου 2026

Πόμελο: Ένα μεζεδοπωλείο σε διατηρητέο κέλυφος, όπου η λιτότητα του σχεδιασμού αναδεικνύει την υλικότητα & τη νησιώτικη γεωμετρία


Διαβάστε το άρθρο

Αρχιτεκτονική μελέτη – Ανάπτυξη & Διαχείριση έργου: Space Dreams | Photo © Απόλλωνας Γλύκας

27 Μαρτίου 2026

[chilling timelessly]: Ένα ανακαινισμένο διαμέρισμα στην Κυψέλη, ενώνει το παρελθόν με τη σύγχρονη εποχή


Διαβάστε το άρθρο

Design & Site supervision: Studio Thanasis | Photo © Lea Martin

24 Μαρτίου 2026

Studio Thanasis transforms this dark apartment in Kolonaki into a quality living space using natural daylight


Διαβάστε το άρθρο

Αρχιτεκονική Μελέτη & Επίβλεψη: Παναγιώτης Παπανικολάου | Photo © Παναγιώτης Παπανικολάου

23 Μαρτίου 2026

Ένα διαμέρισμα των ’80s στην Κηφισιά ανακαινίστηκε διατηρώντας τα στοιχεία της εποχής του – Και είναι απλά υπέροχο


Διαβάστε το άρθρο
Facebook __ Ακολουθήστε μας στο Facebook
Twitter __ Ακολουθήστε μας στο Twitter
Instagram __ Ακολουθήστε μας στο Instagram

Αναζήτηση

Επικοινωνήστε μαζί μας στο ακόλουθο email:

info[@]kataskevesktirion.gr

© 2025 Κατασκευές Κτιρίων. All Rights Reserved.