• Πρόσφατα έργα
    • Αρχιτεκτονικά
    • Design – Διακόσμηση
    • Μελέτες
    • Εργασίες
  • Δόμηση – Υποδομές
    • Ξενοδοχεία – Τουρισμός
    • Κατασκευές – Ακίνητα
    • Αστικές αναπλάσεις
    • Στατικά – Τοπογραφικά
  • Εξοικονόμηση – Ενέργεια
    • ΑΠΕ
    • Πράσινες επενδύσεις
    • Η/Μ Εγκαταστάσεις
    • Αυτοματισμοί – Τεχνολογία
  • Επιχειρήσεις
    • Εταιρικά Νέα
    • Ειδικές Τεχνολογίες
  • Αφιερώματα
  •  
Spitogatos: Συνεχίστηκε το ανοδικό «ράλι» τιμών ενοικίασης & αγοράς ακινήτων το τρίτο τρίμηνο του 2023
11 Οκτωβρίου 2023
Η Schneider Electric πιστοποιήθηκε ως Great Place to Work
12 Οκτωβρίου 2023

Interior design: ZIKZAK Architects | Photo © Aaron Miles

ZIKZAK Architects bring a warm and relaxed aesthetic to this law firm office interior in Limassol, Cyprus

11 Οκτωβρίου 2023
Κατηγορίες
  • Design – Διακόσμηση
Ετικέτες
  • calmness
  • confidence
  • Cyprus
  • Enalian Company
  • glass fence
  • law firm
  • Limassol
  • mezzanine
  • office interior
  • stability
  • sun protection
  • wooden blinds

ZIKZAK Architects have completed work on the project for the Cypriot office of the legal company Enalian. The client wanted a comfortable and stylish workspace done in light shades. The designers set out to create a space with an atmosphere of stability, calmness, confidence, and comfort. They drew inspiration from the tranquil coastal landscapes of the island.

The office is often visited by clients, and the nature of the company’s work is quite stressful and intense. The designers aimed to use interior design to reduce the level of nervous tension in order to solve legal tasks more effectively in the office. They chose light warm shades for the color scheme, and wood and travertine stone as the predominant materials in the design.

Interior design: ZIKZAK Architects | Photo © Aaron Miles

Interior design: ZIKZAK Architects | Photo © Aaron Miles

Interior design: ZIKZAK Architects | Photo © Aaron Miles

Interior design: ZIKZAK Architects | Photo © Aaron Miles


“This decision creates a connection to the landscapes of Cyprus within the interior”.


Interior design: ZIKZAK Architects | Photo © Aaron Miles

Interior design: ZIKZAK Architects | Photo © Aaron Miles

Interior design: ZIKZAK Architects | Photo © Aaron Miles

The space is free of unnecessary clutter and is associated with the eternal: the sea, sandy beaches, and sunny slopes. This environment helps reduce stress levels, increases concentration, and sets the tone for serious work. “We aimed to create an office where the client feels completely calm, as if they have come to a SPA, rather than a legal company”, says project manager Vlad Gavrylov.

Interior design: ZIKZAK Architects | Photo © Aaron Miles

Interior design: ZIKZAK Architects | Photo © Aaron Miles

The premises are located in a newly built office center and had already undergone finishing renovations at the time of design. Therefore, the team faced the challenge of incorporating existing elements of the space into the new interior. They kept the wall cladding, flooring, kitchen area, and restrooms, which was a cost-effective solution for the project. An additional dining area was added to the existing kitchen. The restroom area had to be partially transformed, including relocating the entrance from the kitchen area to the transit zone.

Interior design: ZIKZAK Architects | Photo © Aaron Miles

Interior design: ZIKZAK Architects | Photo © Aaron Miles


“The office space has three levels, the first of which is the basement”.


Interior design: ZIKZAK Architects | Photo © Aaron Miles

Interior design: ZIKZAK Architects | Photo © Aaron Miles

Interior design: ZIKZAK Architects | Photo © Aaron Miles

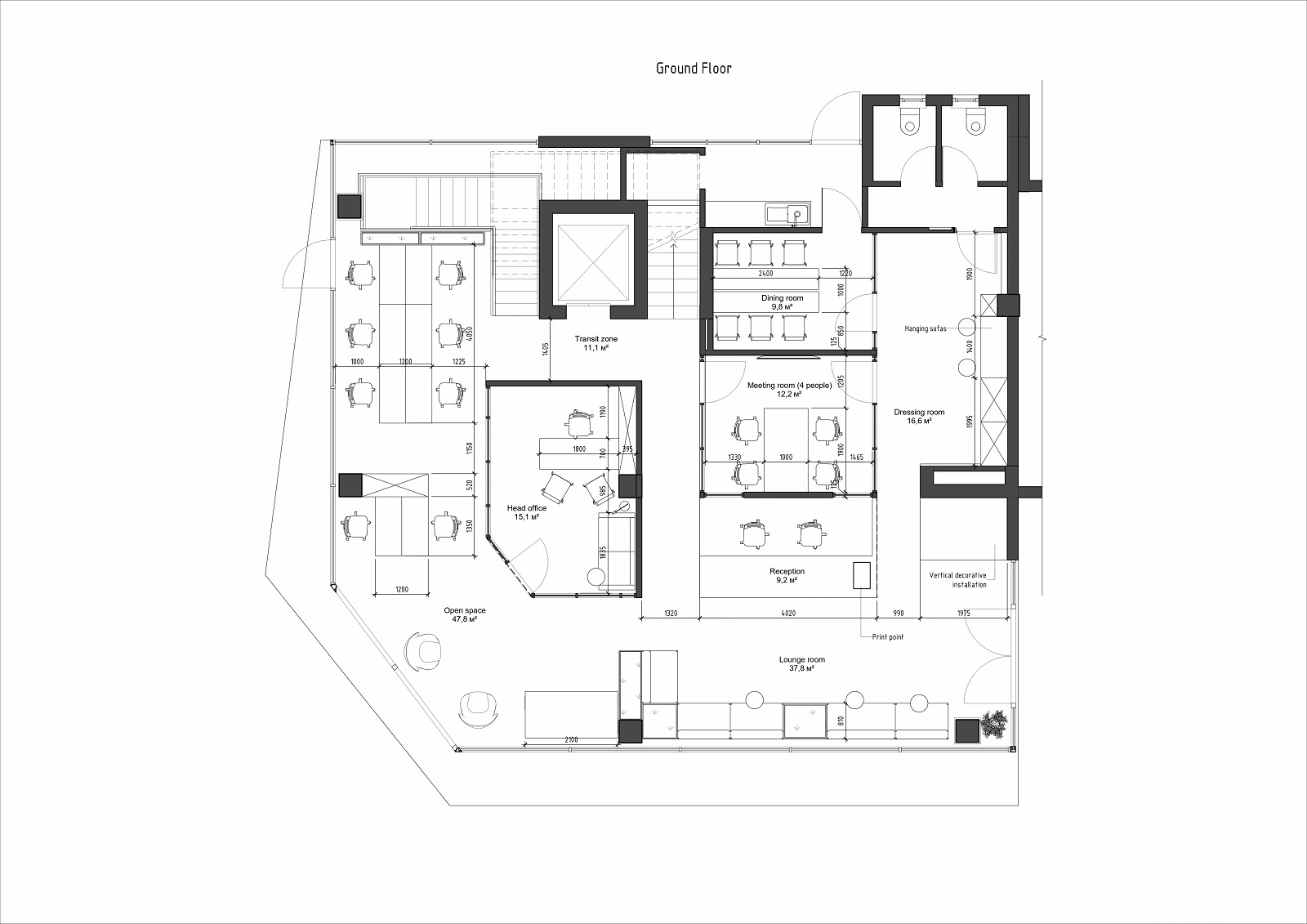
Here, a large conference room and a cozy lounge area with a coffee point were placed. Stairs lead up to the representative floor, which is a two-level space along the glazing. The designers played with linear wave-like luminaires to delicately emphasize the layering of the floor’s structure. Clients are greeted in this area with a concise reception area, a comfortable waiting zone, a spacious lounge, and a phone booth for confidential conversations. The floor is equipped with a conference room, an open space, a private office, and a dining area.

Interior design: ZIKZAK Architects | Photo © Aaron Miles

Interior design: ZIKZAK Architects | Photo © Aaron Miles


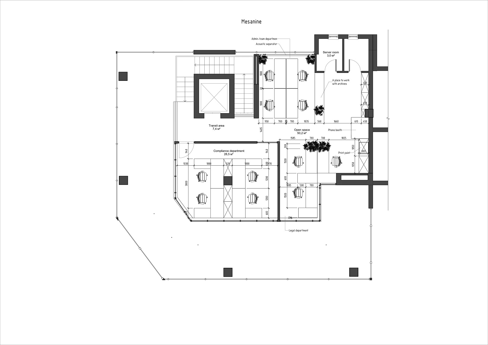
“The third level is a mezzanine separated from the main space by a solid glass fence”.


Interior design: ZIKZAK Architects | Photo © Aaron Miles

Interior design: ZIKZAK Architects | Photo © Aaron Miles

Interior design: ZIKZAK Architects | Photo © Aaron Miles

Interior design: ZIKZAK Architects | Photo © Aaron Miles

This area is intended solely for office employees and features high-level confidentiality offices. It was important to equip the large panoramic windows in the representative area with sun protection systems. To achieve this, wooden blinds were used, which organically fit into the overall interior and create an aesthetic composition of light and shadow.

Interior design: ZIKZAK Architects | Photo © Aaron Miles

Interior design: ZIKZAK Architects | Photo © Aaron Miles

Interior design: ZIKZAK Architects | Photo © Aaron Miles

With a focus on working with a large amount of paper documentation, large and capacious desks were provided for employees. A stylish wardrobe with niches for relaxation and decorative shelves is arranged for the team and company guests. Space is reserved for phyto-compositions, which are shrubby plants that mimic natural island plantings and complement the overall relaxed aesthetic.

Interior design: ZIKZAK Architects | Photo © Aaron Miles

Interior design: ZIKZAK Architects | Photo © Aaron Miles

Enalian office is designed to provide comfort and reduce stress for both clients and employees. When inside, you forget about the hustle and bustle of the city and fully immerse yourself in the atmosphere of the company, which guarantees stability and peace of mind to its service users.

Basement floor plan, © ZIKZAK Architects

Ground floor plan, © ZIKZAK Architects

Mezzanine floor plan, © ZIKZAK Architects


Facts & Credits:
Project title: Enalian, Typology: Office | Interiors, Location: Limassol – Cyprus, Client: Enalian Legal Company, Interior design: ZIKZAK Architects, Principal architect: Vlad Havrylov, Design team: V. Havrylov – M. Ternova – I. Yashyn – A. Klatchun – A. Yehiiants – A. Makarenko – N. Zykh – T. Zykh, Project area: 372sqm (4000sqft), Design & Completion Year: 2023, Text description: ZIKZAK Architects, Photography: Aaron Miles

Υποβάλλετε ένα άρθρο

Το όνομά σας *

Το email σας *

Το θέμα του άρθρου σας *

kataskevesktirion.gr
kataskevesktirion.gr

Σχετικές δημοσιεύσεις

Μελέτη – Σχεδιασμός: Foil-S | Photo © Δημήτρης Μουγκός

20 Απριλίου 2026

Karate: Μέσα σε ένα ατμοσφαιρικό bar στο κέντρο της Θεσσαλονίκης με έντονο το ρετρό στοιχείο


Διαβάστε το άρθρο

Αρχιτεκτονική μελέτη – Interior design – Project management: DOMES ARCHITECTS | Photo © Φίλιππος Πανούλης

6 Απριλίου 2026

SNAPPI Office Hub: Ένα πρότυπο εργασιακό περιβάλλον στο κέντρο της Αθήνας γεμάτο έντονα & φωτεινά χρώματα


Διαβάστε το άρθρο

Αρχιτεκτονική μελέτη – Σχεδιασμός - Ανάπτυξη & Διαχείριση έργου: Two Αrchitects Studio | Photo © Δημήτρης Παύλου

31 Μαρτίου 2026

Ένα σύγχρονο αστικό καταφύγιο στην καρδιά του Βόλου


Διαβάστε το άρθρο

Αρχιτεκτονικός σχεδιασμός: Γκέλη Δημητρακοπούλου | Photo © Notion The Agency

30 Μαρτίου 2026

Πόμελο: Ένα μεζεδοπωλείο σε διατηρητέο κέλυφος, όπου η λιτότητα του σχεδιασμού αναδεικνύει την υλικότητα & τη νησιώτικη γεωμετρία


Διαβάστε το άρθρο

Αρχιτεκτονική μελέτη – Ανάπτυξη & Διαχείριση έργου: Space Dreams | Photo © Απόλλωνας Γλύκας

27 Μαρτίου 2026

[chilling timelessly]: Ένα ανακαινισμένο διαμέρισμα στην Κυψέλη, ενώνει το παρελθόν με τη σύγχρονη εποχή


Διαβάστε το άρθρο

Design & Site supervision: Studio Thanasis | Photo © Lea Martin

24 Μαρτίου 2026

Studio Thanasis transforms this dark apartment in Kolonaki into a quality living space using natural daylight


Διαβάστε το άρθρο
Facebook __ Ακολουθήστε μας στο Facebook
Twitter __ Ακολουθήστε μας στο Twitter
Instagram __ Ακολουθήστε μας στο Instagram

Αναζήτηση

Επικοινωνήστε μαζί μας στο ακόλουθο email:

info[@]kataskevesktirion.gr

© 2025 Κατασκευές Κτιρίων. All Rights Reserved.