


Αρχιτεκτονικός σχεδιασμός: Urban Soul Project, Photo © Spyros Hound Photography – Βαγγέλης Πατεράκης

Αρχιτεκτονικός σχεδιασμός: Urban Soul Project, Photo © Spyros Hound Photography – Βαγγέλης Πατεράκης

Αρχιτεκτονικός σχεδιασμός: Urban Soul Project, Photo © Spyros Hound Photography – Βαγγέλης Πατεράκης

Αρχιτεκτονικός σχεδιασμός: Urban Soul Project, Photo © Spyros Hound Photography – Βαγγέλης Πατεράκης

Αρχιτεκτονικός σχεδιασμός: Urban Soul Project, Photo © Spyros Hound Photography – Βαγγέλης Πατεράκης

Αρχιτεκτονικός σχεδιασμός: Urban Soul Project, Photo © Spyros Hound Photography – Βαγγέλης Πατεράκης

Αρχιτεκτονικός σχεδιασμός: Urban Soul Project, Photo © Spyros Hound Photography – Βαγγέλης Πατεράκης

Αρχιτεκτονικός σχεδιασμός: Urban Soul Project, Photo © Spyros Hound Photography – Βαγγέλης Πατεράκης
Στοιχεία & Συντελεστές έργου:
Τίτλος έργου: Villa Brown Ermou, Τυπολογία: Boutique hotel, Τοποθεσία: Οδός Πετράκη – Σύνταγμα – Αθήνα – Ελλάδα, Αρχιτεκτονικός σχεδιασμός: Urban Soul Project, Στατική μελέτη: Χριστόφορος Κολυβάς, Ηλεκτρομηχανολογική μελέτη: Arxiko Consulting Engineers (Γιώργος Θεοφιλογιαννάκος), Μελέτη φωτισμού: Πάνος Ιωαννίδης, Ακουστική μελέτη: Γιώργος Χατζηγεωργίου, Κατασκευή: DBD Athens Constructions SA, Επιφάνεια: 2100 τ.μ., Κείμενο παρουσίασης: Urban Soul Project, Φωτογραφίες: Spyros Hound Photography – Βαγγέλης Πατεράκης

Design: Urban Soul Project, Photo © Spyros Hound Photography – Vangelis Paterakis

Design: Urban Soul Project, Photo © Spyros Hound Photography – Vangelis Paterakis

Design: Urban Soul Project, Photo © Spyros Hound Photography – Vangelis Paterakis

Villa Brown Ermou Façade plan, © Urban Soul Project

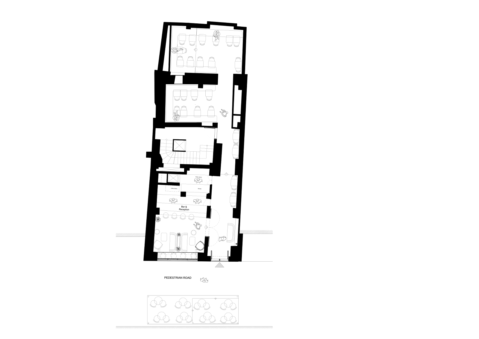
Villa Brown Ermou Ground floor plan, © Urban Soul Project

Villa Brown Ermou 1st floor plan, © Urban Soul Project

Villa Brown Ermou 3rd floor plan, © Urban Soul Project

Villa Brown Ermou 4th floor plan, © Urban Soul Project
Facts & Credits:
Project title: Villa Brown Ermou, Typology: Boutique hotel, Location: Petraki Street – Syntagma – Athens – Greece, Design: Urban Soul Project, Structural Study: Christoforos Kolyvas, Electromechanical Study: Arxiko Consulting Engineers (Giorgos Theofilogiannakos), Light Study: Panos Ioannidis, Sound Design: Giorgos Chatzigeorgiou, Construction: DBD Athens Constructions SA, Area: 2100 sqm., Text description: Urban Soul Project, Photography: Spyros Hound Photography – Vangelis Paterakis