• Πρόσφατα έργα
    • Αρχιτεκτονικά
    • Design – Διακόσμηση
    • Μελέτες
    • Εργασίες
  • Δόμηση – Υποδομές
    • Ξενοδοχεία – Τουρισμός
    • Κατασκευές – Ακίνητα
    • Αστικές αναπλάσεις
    • Στατικά – Τοπογραφικά
  • Εξοικονόμηση – Ενέργεια
    • ΑΠΕ
    • Πράσινες επενδύσεις
    • Η/Μ Εγκαταστάσεις
    • Αυτοματισμοί – Τεχνολογία
  • Επιχειρήσεις
    • Εταιρικά Νέα
    • Ειδικές Τεχνολογίες
  • Αφιερώματα
  •  
InterContinental Hotels: Εγκαινιάζει την Noted Collection, ένα νέο κεφάλαιο στην ανάπτυξη του χαρτοφυλακίου ποιοτικής φιλοξενίας
18 Φεβρουαρίου 2026
Η LG Electronics παρουσιάζει στην ISE 2026 λύσεις οθονών και λογισμικού για B2B πελάτες
19 Φεβρουαρίου 2026

Σχεδιασμός: R DEC Design & Construction | Photo © Βασίλης Βασιλείου

3R Project: Η μετατροπή ενός συμβατικού γραφειακού χώρου στο Βόλο σε ένα ζωντανό περιβάλλον δημιουργικότητας & φαντασίας

19 Φεβρουαρίου 2026
Κατηγορίες
  • Design – Διακόσμηση
Ετικέτες
  • ανακαίνιση
  • Βόλος
  • δημιουργικότητα
  • διερεύνηση
  • θερμοί τόνοι
  • λευκές επιφάνειες
  • υφές ξύλου
  • φαντασία
  • φωτισμός
  • χώρος γραφείων

Το 3R Project (Reclaim, Rebrace, Recount), που παρουσιάζει η εταιρεία R DEC Design & Construction, αποτελεί μια συνολική επανεξέταση του χώρου εργασίας, μεταμορφώνοντας ένα υφιστάμενο γραφείο σε ένα δυναμικό περιβάλλον που ενθαρρύνει τη δημιουργικότητα, τη συνεργασία και τη συνεχή σχεδιαστική διερεύνηση. Αντί να επιβάλλει μια τυποποιημένη διάταξη, η επέμβαση συνομιλεί με τις προϋπάρχουσες γεωμετρίες και ιδιαιτερότητες του χώρου, αξιοποιώντας τες ως καταλύτες χωρικής καινοτομίας. Το έργο επιδιώκει να συγχωνεύσει την αποδοτικότητα με τον πειραματισμό, διαμορφώνοντας ένα περιβάλλον όπου μορφή και λειτουργία συνυπάρχουν σε έναν ρευστό, προσαρμόσιμο διάλογο.

Το γραφείο αρθρώνεται γύρω από τρεις βασικές ζώνες: τον χώρο σχεδιασμού, τον χώρο μελέτης και τον χώρο παρουσίασης. Οι ζώνες αυτές λειτουργούν ως αλληλοσυνδεόμενα στάδια της δημιουργικής διαδικασίας, διευκολύνοντας τόσο την ατομική συγκέντρωση όσο και τη συνεργατική αλληλεπίδραση. Ο χώρος παρουσίασης μπορεί να διαχωρίζεται οπτικά και ακουστικά μέσω συρόμενων διαχωριστικών, επιτρέποντας στον χώρο να μεταβαίνει απρόσκοπτα μεταξύ ανοιχτότητας και ιδιωτικότητας. Αυτή η ευέλικτη προσέγγιση αντικατοπτρίζει μια ευρύτερη φιλοσοφία: οι χώροι δεν πρέπει να υπαγορεύουν τη συμπεριφορά, αλλά να προσαρμόζονται στους εξελισσόμενους ρυθμούς της εργασίας και της φαντασίας.

Σχεδιασμός: R DEC Design & Construction | Photo © Βασίλης Βασιλείου


“Κεντρικό στοιχείο της χωρικής σύλληψης αποτελεί η ανάδειξη των υφιστάμενων γεωμετριών”.


Σχεδιασμός: R DEC Design & Construction | Photo © Βασίλης Βασιλείου

Οι αιχμηρές γωνίες και οι γραμμικές εντάσεις της κάτοψης αγκαλιάζονται και τονίζονται μέσω του σχεδιασμού ειδικά κατασκευασμένων επίπλων, τα οποία ακολουθούν μια λογική παρόμοια με αυτήν μιας δημιουργικής γραμμής παραγωγής. Κάθε στοιχείο μελετάται προσεκτικά ώστε να ενσωματώνει αποθηκευτικούς χώρους, επιφάνειες εργασίας και κυκλοφορία σε ένα συνεκτικό σύστημα, προάγοντας τόσο την αποδοτικότητα όσο και την εργονομία, ενώ παράλληλα ενισχύει τον εγγενή ρυθμό της αρχιτεκτονικής.

Σχεδιασμός: R DEC Design & Construction | Photo © Βασίλης Βασιλείου


“Η υλική και αισθητηριακή στρατηγική αρθρώνει περαιτέρω το εννοιολογικό πλαίσιο”.


Σχεδιασμός: R DEC Design & Construction | Photo © Βασίλης Βασιλείου

Σχεδιασμός: R DEC Design & Construction | Photo © Βασίλης Βασιλείου

Οι λευκές επιφάνειες προσφέρουν ένα ουδέτερο και εκτεταμένο υπόβαθρο, τονίζοντας τη διαύγεια και την αντίληψη του φωτός. Οι θερμοί, γήινοι τόνοι του φυσικού ξύλου και της άμμου δημιουργούν απτικά αντισταθμίσματα, προσδίδοντας οικειότητα στον χώρο και γειώνοντας τη δυναμική της γεωμετρίας του. Ο φωτισμός, φυσικός και τεχνητός, ενορχηστρώνεται ώστε να ζωντανεύει τον χώρο, να αναδεικνύει τις υφές, να υπογραμμίζει τις διαδρομές και να διαμορφώνει μια ατμόσφαιρα που διεγείρει τη δημιουργικότητα.

Σχεδιασμός: R DEC Design & Construction | Photo © Βασίλης Βασιλείου

Το 3R Project αποτελεί τελικά μια διερεύνηση της αρχιτεκτονικής ενσυναίσθησης — της ικανότητας του σχεδιασμού να ανταποκρίνεται στις ανάγκες των χρηστών του, αποκαλύπτοντας ταυτόχρονα το λανθάνον δυναμικό των υφιστάμενων συνθηκών. Αναδεικνύει πώς η προσεκτική προσέγγιση των χωρικών σχέσεων, της υλικότητας και της προσαρμοστικότητας μπορεί να μεταμορφώσει ένα συμβατικό γραφείο σε ένα ζωντανό πλαίσιο δημιουργίας. Το έργο θολώνει τα όρια μεταξύ δομής, επίπλου και ροής εργασίας, προτείνοντας ένα μοντέλο σχεδιασμού χώρων εργασίας που είναι ταυτόχρονα λειτουργικό, εκφραστικό και εννοιολογικά πλούσιο.

Σχεδιασμός: R DEC Design & Construction | Photo © Βασίλης Βασιλείου


Στοιχεία & Συντελεστές έργου:
Τίτλος έργου: 3R Project, Τυπολογία: Ανακαίνιση γραφειακού χώρου | Εσωτερικός σχεδιασμός, Τοποθεσία: Βόλος – Ελλάδα, Σχεδιασμός: R DEC Design & Construction, Εμβαδόν: 90 τ.μ., Κατάσταση: Υλοποιημένο, Κείμενο παρουσίασης: Ευθυμία Δημητρακοπούλου, Φωτογραφίες: Βασίλης Βασιλείου

English description: The 3R Project (Reclaim, Rebrace, Recount), completed by R DEC Design & Construction company, represents a comprehensive rethinking of the workplace, transforming an existing office into a dynamic environment that fosters creativity, collaboration, and continuous design exploration.

Rather than imposing a standardized layout, the intervention engages with the pre-existing geometries and idiosyncrasies of the space, using them as catalysts for spatial innovation. The project seeks to merge efficiency and experimentation, crafting an environment where form and function coexist in a fluid, adaptable dialogue.

Design: R DEC Design & Construction | Photo © Vassilis Vasileiou

The office is articulated around three primary zones: the design area, the study area, and the presentation area. These zones operate as interconnected stages of the creative process, facilitating both individual focus and collaborative interaction. The presentation area can be visually and acoustically separated through sliding partitions, allowing the space to shift seamlessly between openness and privacy. This flexible approach reflects a broader philosophy: spaces should not dictate behavior, but rather adapt to the evolving rhythms of work and imagination.

Design: R DEC Design & Construction | Photo © Vassilis Vasileiou

Design: R DEC Design & Construction | Photo © Vassilis Vasileiou


“Central to the spatial concept is the treatment of existing geometries”.


Design: R DEC Design & Construction | Photo © Vassilis Vasileiou

The sharp angles and linear tensions of the floor plan are embraced, highlighted through the design of custom furniture that follows a logic akin to a creative production line. Each element is carefully conceived to integrate storage, work surfaces, and circulation into a cohesive system, promoting both efficiency and ergonomics while reinforcing the inherent rhythm of the architecture.

Design: R DEC Design & Construction | Photo © Vassilis Vasileiou


The material and sensory strategy further articulates the conceptual framework.


Design: R DEC Design & Construction | Photo © Vassilis Vasileiou

White surfaces provide a neutral, expansive backdrop, emphasizing clarity and the perception of light. Warm, earthy tones of natural wood and sand create tactile counterpoints, infusing the space with intimacy and grounding the visual dynamism of its geometry. Lighting, both natural and artificial, is orchestrated to animate the space, highlighting textures, emphasizing pathways, and shaping an atmosphere that stimulates creativity.

Design: R DEC Design & Construction | Photo © Vassilis Vasileiou

The 3R Project is ultimately an exploration of architectural empathy—the capacity of design to respond to the needs of its users while revealing latent potential within existing conditions. It demonstrates how careful attention to spatial relationships, materiality, and adaptability can transform a conventional office into a living framework for creativity. The project blurs the boundaries between structure, furniture, and workflow, offering a model of workplace design that is simultaneously functional, expressive, and conceptually rich.

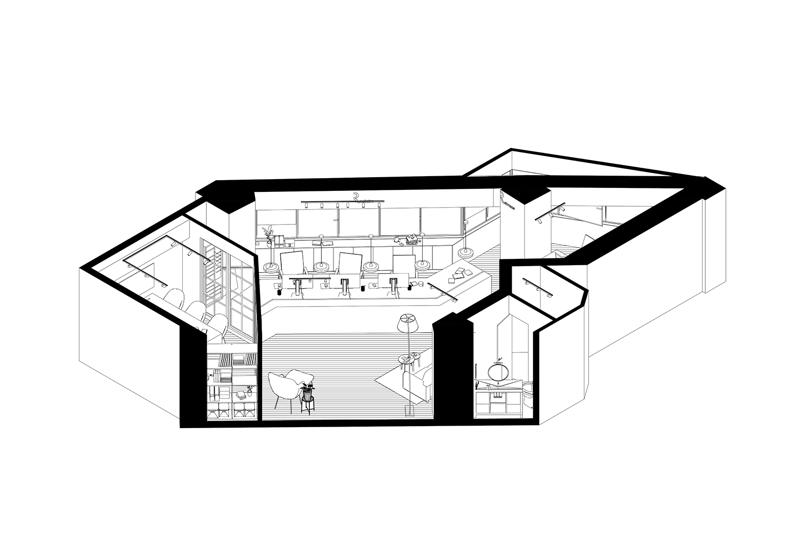
Plan, © R DEC Design & Construction

Section, © R DEC Design & Construction


Facts & Credits:
Project title: 3R Project, Typology: Interior | Office Renovation, Location: Volos – Greece, Design: R DEC Design & Construction, Area: 90sqm, Status: Completed, Text description: Efthymia Dimitrakopoulou, Photography: Vassilis Vasileiou

Υποβάλλετε ένα άρθρο

Το όνομά σας *

Το email σας *

Το θέμα του άρθρου σας *

kataskevesktirion.gr
kataskevesktirion.gr

Σχετικές δημοσιεύσεις

Αρχιτεκτονική μελέτη – Σχεδιασμός εσωτερικών χώρων: Ελευθέριος Αμπατζής | Photo © Ιωάννης Προμπονάς

16 Μαρτίου 2026

Μυηθείτε στη γοητευτική ατμόσφαιρα του ανακαινισμένου ξενοδοχείου Rocabella στη Μύκονο


Διαβάστε το άρθρο

Αρχιτεκτονική μελέτη: Γεωργία Κότσαρη + Ευτυχία Παπαθανασίου | Photo © Δημήτρης Σωτηρόπουλος

11 Μαρτίου 2026

Ένα ισόγειο διαμέρισμα στου Παπάγου επανασυστήνεται ως ένα συνεχές, φωτεινό & ευέλικτο πεδίο καθημερινής ζωής


Διαβάστε το άρθρο

Μελέτη – Σχεδιασμός: Konn Design Studio | Photo © Karen Gkiounasian

10 Μαρτίου 2026

Μια σύγχρονη κατοικία στη Θεσσαλονίκη, όπου η άνεση, η λειτουργικότητα και η υλικότητα συνυπάρχουν


Διαβάστε το άρθρο

Αρχιτεκτονικός σχεδιασμός – Επίβλεψη: Aesthe Architecture Studio | Photo © Αντώνης Σαρρής

9 Μαρτίου 2026

Messy Marvels: Έντονα χρώματα & συνειδητός σχεδιασμός σε ένα νέο πολυχώρο παιχνιδιού, δημιουργίας & τέχνης στην Καστοριά


Διαβάστε το άρθρο

Interior design: ZIKZAK Architects | Photo © German Moiseev

26 Φεβρουαρίου 2026

CEO office in Cyprus reimagined by ZIKZAK architects as a calm & contemporary workplace — crafted to inspire confidence


Διαβάστε το άρθρο

Σχεδιασμός εσωτερικών χώρων - Επίβλεψη: Νίκη Μαυρίδου (Αρχιτέκτων Μηχανικός) | Photo © Δημήτρης Αλεξούδης

17 Φεβρουαρίου 2026

Ένα παλιό διαμέρισμα στην Κομοτηνή «μεταμορφώθηκε» σε στούντιο αισθητικής & λέιζερ: Κομψότητα & αρμονία σε κάθε λεπτομέρεια


Διαβάστε το άρθρο
Facebook __ Ακολουθήστε μας στο Facebook
Twitter __ Ακολουθήστε μας στο Twitter
Instagram __ Ακολουθήστε μας στο Instagram

Αναζήτηση

Επικοινωνήστε μαζί μας στο ακόλουθο email:

info[@]kataskevesktirion.gr

© 2025 Κατασκευές Κτιρίων. All Rights Reserved.