• Πρόσφατα έργα
    • Αρχιτεκτονικά
    • Design – Διακόσμηση
    • Μελέτες
    • Εργασίες
  • Δόμηση – Υποδομές
    • Ξενοδοχεία – Τουρισμός
    • Κατασκευές – Ακίνητα
    • Αστικές αναπλάσεις
    • Στατικά – Τοπογραφικά
  • Εξοικονόμηση – Ενέργεια
    • ΑΠΕ
    • Πράσινες επενδύσεις
    • Η/Μ Εγκαταστάσεις
    • Αυτοματισμοί – Τεχνολογία
  • Επιχειρήσεις
    • Εταιρικά Νέα
    • Ειδικές Τεχνολογίες
  • Αφιερώματα
  •  
Τι ισχύει για τις θέσεις πάρκινγκ σε υπόγεια γκαράζ, ακάλυπτους χώρους και πυλωτές πολυκατοικιών;
29 Οκτωβρίου 2025
SIEMENS και SIDENOR: Εξοικονόμηση ενέργειας 46% στο αντλητικό συγκρότημα του εργοστασίου της Θεσσαλονίκης
30 Οκτωβρίου 2025

Αρχιτεκτονική μελέτη: OM3 Architects & Liza Tiktapanidou Architecture | Photo © studiovd.gr / Νίκος Βαβδινούδης – Χρήστος Δημητρίου

Το κτίριο γραφείων της Q-CERT στην Πυλαία Θεσσαλονίκης μας δείχνει τι σημαίνει πρότυπο κτιριακού ανασχεδιασμού

30 Οκτωβρίου 2025
Κατηγορίες
  • Αρχιτεκτονικά
Ετικέτες
  • knx
  • Q-CERT
  • αυτοματισμός
  • βιοτεχνικός χώρος
  • Θεσσαλονίκη
  • κτίριο γραφείων
  • μετατροπή
  • σκίαση
  • φωτισμός

Η Q–Cert είναι μία εταιρεία πιστοποίησης με σημαντικό αριθμό εργαζομένων. Τα νέα γραφεία της φιλοξενούνται σε ένα ιδιόκτητο κτίριο στην Πυλαία, του οποίου η ομάδα των συνεργαζόμενων γραφείων OM3 Architects & Liza Tiktapanidou Architecture ανέλαβε το συνολικό, ριζικό επανασχεδιασμό του, καθώς και την κατασκευή. Το κτίριο υπήρξε κλειστό τα τελευταία χρόνια, με την τελευταία χρήση του να είναι βιοτεχνικός χώρος. Ορθογώνιας κάτοψης, τριώροφο, οργανωμένο γύρω από ένα κενό χώρο-εσωτερικό αίθριο.

Έγιναν εκτεταμένες αποξηλώσεις για να γίνει σωστή εκτίμηση της υφιστάμενης κατάστασης του κτιρίου και των αναγκαίων παρεμβάσεων. Από την προηγούμενη χρήση διατηρήθηκαν: το εσωτερικό κλιμακοστάσιο, ο ανελκυστήρας εμπορευμάτων και οι μεταλλικοί διάδρομοι οι οποίοι διέσχιζαν το αίθριο με τα κιγκλιδώματά τους.

Αρχιτεκτονική μελέτη: OM3 Architects & Liza Tiktapanidou Architecture | Photo © studiovd.gr / Νίκος Βαβδινούδης – Χρήστος Δημητρίου

Αρχιτεκτονική μελέτη: OM3 Architects & Liza Tiktapanidou Architecture | Photo © studiovd.gr / Νίκος Βαβδινούδης – Χρήστος Δημητρίου

Βασικές συνθετικές επιλογές
Το κτίριο επανασχεδιάστηκε συνολικά, τόσο εσωτερικά, όσο και εξωτερικά, με έμφαση στη λειτουργικότητα, τον φυσικό φωτισμό και αερισμό των χώρων, την σκίαση των όψεων, τον κλιματισμό, μηχανικό εξαερισμό και φωτισμό, ταυτόχρονα με την αποτύπωση της ανανεωμένης “ταυτότητας” της εταιρείας στο χώρο, προσαρμοσμένης στις σύγχρονες απαιτήσεις των γραφείων.

Αρχιτεκτονική μελέτη: OM3 Architects & Liza Tiktapanidou Architecture | Photo © studiovd.gr / Νίκος Βαβδινούδης – Χρήστος Δημητρίου

Αρχιτεκτονική μελέτη: OM3 Architects & Liza Tiktapanidou Architecture | Photo © studiovd.gr / Νίκος Βαβδινούδης – Χρήστος Δημητρίου

Αρχιτεκτονική μελέτη: OM3 Architects & Liza Tiktapanidou Architecture | Photo © studiovd.gr / Νίκος Βαβδινούδης – Χρήστος Δημητρίου

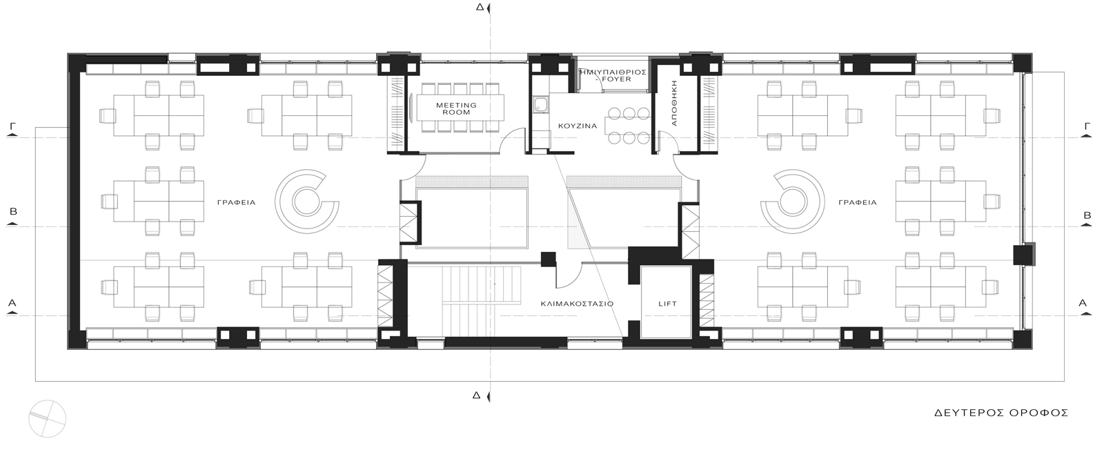
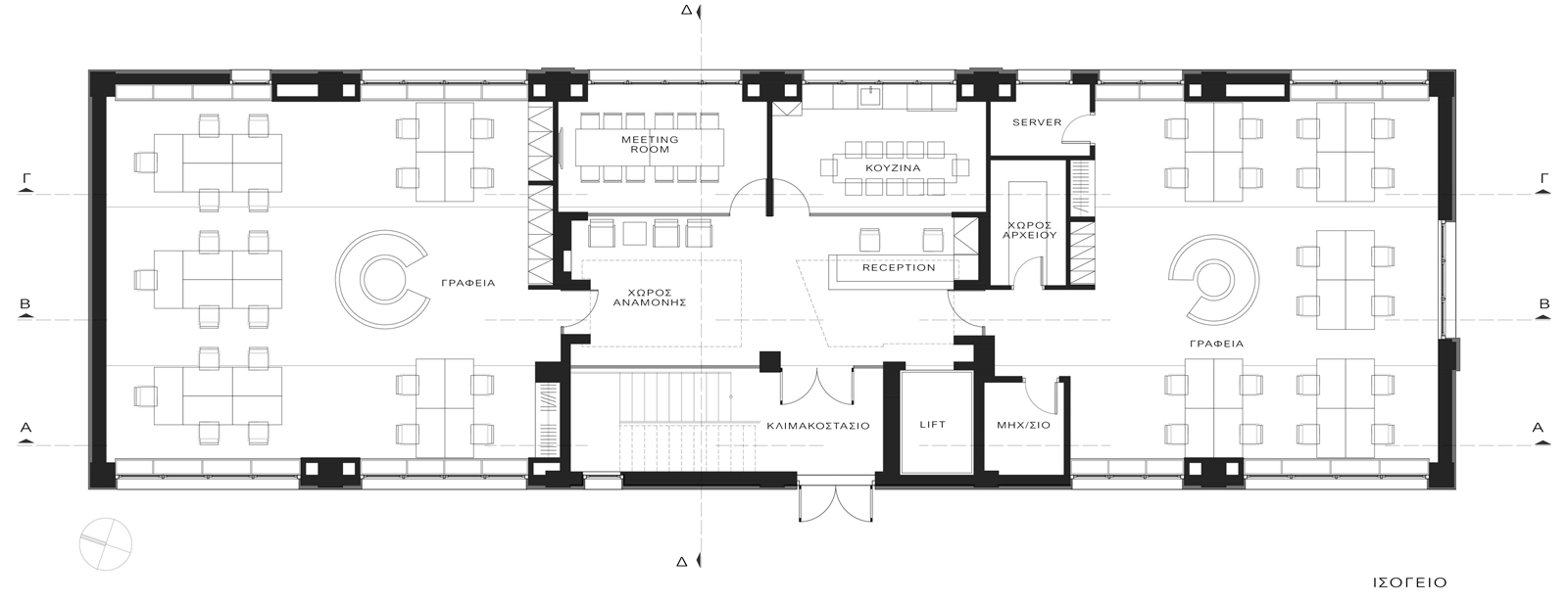
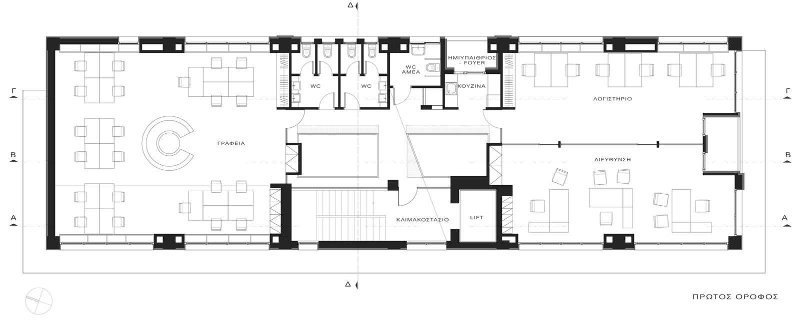
Τα γραφεία οργανώθηκαν στα αριστερά και δεξιά του εσωτερικού αιθρίου, σε όλες τις στάθμες. Κεντρικά, στο ισόγειο διαμορφώθηκαν οι “δημόσιοι” χώροι του κτιρίου: η reception, ένας μικρός χώρος αναμονής και διαχωρισμένοι με ένα μεγάλο υαλοστάσιο, ένας χώρος συνεργασίας (meeting room) και μία κουζίνα-χώρος πρόχειρου φαγητού. Στην α’ στάθμη χωροθετούνται οι χώροι υγιεινής και ένα coffee spot για την παρασκευή καφέ, προμήθεια νερού κλπ. Στη β’ στάθμη υπάρχει ένα δεύτερο coffee spot και ένας δεύτερος χώρος  συνεργασίας (meeting room).

Αρχιτεκτονική μελέτη: OM3 Architects & Liza Tiktapanidou Architecture | Photo © studiovd.gr / Νίκος Βαβδινούδης – Χρήστος Δημητρίου

Αρχιτεκτονική μελέτη: OM3 Architects & Liza Tiktapanidou Architecture | Photo © studiovd.gr / Νίκος Βαβδινούδης – Χρήστος Δημητρίου


“Εφαρμόστηκαν τα δύο χρώματα του λογότυπου της εταιρείας, το μπλε και το πράσινο, σε συνδυασμό με το λευκό, το ανοιχτό γκρίζο και το μαύρο. Σε διάφορες θέσεις (ερμάρια, έπιπλα και δάπεδο διευθυντικών γραφείων, κατακόρυφα πετάσματα κλιματισμού στον κεντρικό χώρο), χρησιμοποιήθηκαν υλικά με όψη ανοιχτόχρωμου ξύλου, επιχειρώντας μία ισορροπία μεταξύ ψυχρού και θερμού”.


Αρχιτεκτονική μελέτη: OM3 Architects & Liza Tiktapanidou Architecture | Photo © studiovd.gr / Νίκος Βαβδινούδης – Χρήστος Δημητρίου

Αρχιτεκτονική μελέτη: OM3 Architects & Liza Tiktapanidou Architecture | Photo © studiovd.gr / Νίκος Βαβδινούδης – Χρήστος Δημητρίου

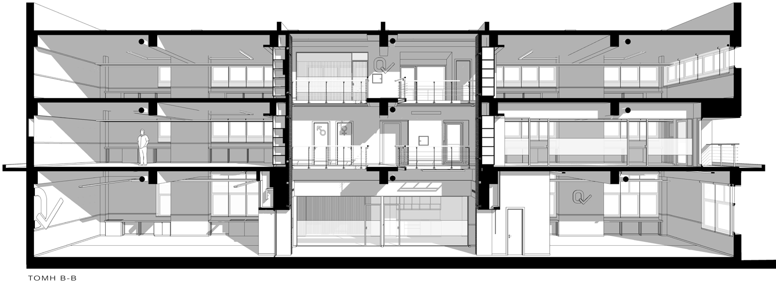
Οι οροφές των γραφείων παρέμειναν εμφανείς, ώστε, αφενός να μη χαμηλώσει το ελεύθερο ύψος των χώρων και αφετέρου, να γίνει ευκολότερη η πρόσβαση, συντήρηση και προσαρμογή των δικτύων σε μελλοντικές αναδιατάξεις των θέσεων εργασίας. Οι οροφές και τα δίκτυα που βρίσκονται κάτω από αυτές, χρωματίστηκαν σε σκούρα απόχρωση, ώστε να αποτελούν ένα σκοτεινό φόντο για τα φωτεινά κυκλικά και γραμμικά φωτιστικά των γραφείων.

Αρχιτεκτονική μελέτη: OM3 Architects & Liza Tiktapanidou Architecture | Photo © studiovd.gr / Νίκος Βαβδινούδης – Χρήστος Δημητρίου

Αρχιτεκτονική μελέτη: OM3 Architects & Liza Tiktapanidou Architecture | Photo © studiovd.gr / Νίκος Βαβδινούδης – Χρήστος Δημητρίου

Αρχιτεκτονική μελέτη: OM3 Architects & Liza Tiktapanidou Architecture | Photo © studiovd.gr / Νίκος Βαβδινούδης – Χρήστος Δημητρίου

Για κάθε γραφειακή ενότητα, σχεδιάστηκε και ένα κυκλικό καθιστικό (booth) επενδυμένο με ηχοαπορρηφητικά υλικά, κάταλληλο για ιδιωτικές επικοινωνίες και ολιγομελείς συναντήσεις/συζητήσεις, που να μην ενοχλεί τους υπόλοιπους εργαζόμενους. Οι κατασκευές αυτές, υπολογίζεται να προστεθούν στο άμεσο μέλλον.

Αρχιτεκτονική μελέτη: OM3 Architects & Liza Tiktapanidou Architecture | Photo © studiovd.gr / Νίκος Βαβδινούδης – Χρήστος Δημητρίου

Αρχιτεκτονική μελέτη: OM3 Architects & Liza Tiktapanidou Architecture | Photo © studiovd.gr / Νίκος Βαβδινούδης – Χρήστος Δημητρίου

Οι όψεις επανασχεδιάσθηκαν, με νέα ανοίγματα-παράθυρα, σε νέες θέσεις και διαστάσεις. Στις α’ και β’ στάθμες, στις θέσεις των coffee spots και στη νότια όψη, σε συνέχεια των γραφείων της διεύθυνσης, διαμορφώθηκαν μικροί ημιϋπαίθριοι χώροι/διέξοδοι χαλάρωσης και χώροι για τους καπνιστές. Οι χώροι αυτοί, κατά τα άλλα “διασκεδάζουν” την ανατολική και νότια όψη του κτιρίου, χρωματισμένοι στις έντονες μπλε και πράσινες αποχρώσεις, αντίστοιχες των εσωτερικών χώρων.

Αρχιτεκτονική μελέτη: OM3 Architects & Liza Tiktapanidou Architecture | Photo © studiovd.gr / Νίκος Βαβδινούδης – Χρήστος Δημητρίου

Αρχιτεκτονική μελέτη: OM3 Architects & Liza Tiktapanidou Architecture | Photo © studiovd.gr / Νίκος Βαβδινούδης – Χρήστος Δημητρίου

Αρχιτεκτονική μελέτη: OM3 Architects & Liza Tiktapanidou Architecture | Photo © studiovd.gr / Νίκος Βαβδινούδης – Χρήστος Δημητρίου


“Η βόρεια όψη, παρέμεινε «τυφλή», φόντο μιας μεγάλης φωτεινής επιγραφής – logo της εταιρείας. Η μεγάλη δυτική όψη προς το δρόμο και ένα τμήμα της νότιας όψης καλύφθηκαν με κατακόρυφα περιστρεφόμενα σκίαστρα αλουμινίου, ως ηλιοπροστασία των εσωτερικών χώρων”.


Αρχιτεκτονική μελέτη: OM3 Architects & Liza Tiktapanidou Architecture | Photo © studiovd.gr / Νίκος Βαβδινούδης – Χρήστος Δημητρίου

Αρχιτεκτονική μελέτη: OM3 Architects & Liza Tiktapanidou Architecture | Photo © studiovd.gr / Νίκος Βαβδινούδης – Χρήστος Δημητρίου

Για να “ζωντανέψει” η κύρια όψη και να δημιουργηθεί μία διαφορετική νυχτερινή άποψη του κτιρίου, φωτίστηκαν τα σκίαστρα με γραμμικούς φωτισμούς led στα δύο χρώματα του λογότυπου, με το πράσινο να φωτίζει τη διώροφη ζώνη ψηλά, και το μπλε χρώμα, τη ζώνη του ισογείου-βάση του κτιρίου.

Αρχιτεκτονική μελέτη: OM3 Architects & Liza Tiktapanidou Architecture | Photo © studiovd.gr / Νίκος Βαβδινούδης – Χρήστος Δημητρίου

Ενεργειακή και Η/Μ μελέτες
Στο κτίριο της Q-CERT εφαρμόστηκε το πρωτόκολλο αυτοματισμού ΚΝΧ. Όλα τα ηλεκτρομηχανολογικά υποσυστήματα, δηλαδή, ο φωτισμός εσωτερικά και εξωτερικά του κτιρίου, οι ρευματοδότες, τα συστήματα σκίασης, ο κλιματισμός, ο αερισμός του κτιρίου καθώς και η πρόσβαση σε αυτό, ενοποιούνται και ελέγχονται μέσα από το σύστημα ΚΝΧ με πολλαπλούς τρόπους. Είτε τοπικά μέσω διακοπτών, είτε κεντρικά μέσω έξυπνων οθονών, είτε μέσω application σε κινητό, tablet ή υπολογιστή.

Αρχιτεκτονική μελέτη: OM3 Architects & Liza Tiktapanidou Architecture | Photo © studiovd.gr / Νίκος Βαβδινούδης – Χρήστος Δημητρίου

Η περιμετρική σκίαση με ηλεκτροκίνητες περσίδες σκίασης, σε συνδυασμό με τα συστήματα φωτισμού και κλιματισμού, προσφέρει υψηλή άνεση ενώ ταυτόχρονα εξοικονομεί ενέργεια μειώνοντας σημαντικά το ενεργειακό αποτύπωμα του κτιρίου. Μέσω του συστήματος αυτοματισμού αξιοποιούνται στο έπακρο οι δυνατότητές των συστημάτων ασφαλείας, ειδοποιώντας τον τελικό χρήστη για οποιαδήποτε δυσλειτουργία ή αστοχία συνεισφέροντας στην πρόληψη και άμεση αντίδραση.

Κάτοψη ισογείου, © OM3 Architects & Liza Tiktapanidou Architecture

Κάτοψη 1ου ορόφου, © OM3 Architects & Liza Tiktapanidou Architecture

Κάτοψη 2ου ορόφου, © OM3 Architects & Liza Tiktapanidou Architecture

Τομή Β-Β, © OM3 Architects & Liza Tiktapanidou Architecture


Στοιχεία & Συντελεστές έργου:
Τίτλος έργου: Κτίριο γραφείων της εταιρείας Q-CERT, Τυπολογία: Μετασκευή τριώροφου κτιρίου από βιοτεχνικό σε χώρο γραφείων, Τοποθεσία: Οδός Μαρίας Κάλλας 5-7 | Πυλαία Θεσσαλονίκης, Ιδιοκτήτης: Q-CERT A.E., Αρχιτεκτονική μελέτη: OM3 Architects & Liza Tiktapanidou Architecture, Επίβλεψη: OM3 Architects & Liza Tiktapanidou Architecture, H/M μελέτη: GMP Κατασκευαστική Α.Ε., Μελέτη φωτισμού: Liza Tiktapanidou Architecture – Puressence – GMP Κατασκευαστική Α.Ε., Μελέτη εσωτερικού χώρου: Liza Tiktapanidou Architecture, Ενεργειακή μελέτη: OM3 Architects – GMP Κατασκευαστική Α.Ε., Τεχνική εταιρεία κατασκευής: F-Ergon, Συνολικό εμβαδό κτιρίου: 960,0 τ.μ., Xρόνος μελέτης: 2023-2024, Xρόνος κατασκευής: 2024, Κείμενο παρουσίασης: OM3 Architects & Liza Tiktapanidou Architecture, Φωτογραφίες: studiovd.gr / Νίκος Βαβδινούδης – Χρήστος Δημητρίου

Υποβάλλετε ένα άρθρο

Το όνομά σας *

Το email σας *

Το θέμα του άρθρου σας *

kataskevesktirion.gr
kataskevesktirion.gr

Σχετικές δημοσιεύσεις

Αρχιτεκτονική μελέτη: Cristina & Vadim Ghiorghiu + Βιβή Καρούντζου | Photo © Cristina Ghiorghiu

15 Απριλίου 2026

Mazi: Μια μινιμαλιστική βίλα που φωλιάζει ήσυχα σε ένα παραθαλάσσιο χωριό της Πάρου


Διαβάστε το άρθρο

Αρχιτεκτονική μελέτη & Κατασκευή: OIKOMΟΡΦΕΣ | Photo © Βαγγέλης Ρασσιάς

8 Απριλίου 2026

Ένα boutique hotel στη Λακωνική Μάνη «ισορροπεί» ανάμεσα στην παραδοσιακή αρχιτεκτονική & τη σύγχρονη εμπειρία φιλοξενίας


Διαβάστε το άρθρο

Αρχιτεκτονική μελέτη: anagram architecture | Photo © Creative Photo Room – Μαρία Ευθυμίου

7 Απριλίου 2026

Ένα συγκρότημα 24 κοινωνικών κατοικιών στη Λάρνακα «μεταμορφώνεται» σε σύγχρονο αστικό χωριό


Διαβάστε το άρθρο

Αρχιτεκτονικό γραφείο: The Hive Architects | Photo © Γιώργος Σφακιανάκης

3 Απριλίου 2026

Aegean Color Rooms: Ένα ειδυλλιακό «καταφύγιο» στο νησί της Πάρου «υποκλίνεται» στην κυκλαδίτικη ομορφιά


Διαβάστε το άρθρο

Σχεδιασμός & Επίβλεψη κατασκευής: Studio Syn | Κατασκευή: Δημήτρης Γριμέκης - R.I.SE. Τεχνική | Photo © Μαριάνα Μπίστη

2 Απριλίου 2026

Ένα παλιό κτίσμα στον Κεραμεικό μετατρέπεται σε 2 αυτόνομες κατοικίες που αποπνέουν σύγχρονο στιλ και vintage αισθητική


Διαβάστε το άρθρο

Αρχιτεκτονική μελέτη και εσωτερικός σχεδιασμός: KP Office | Επικεφαλής Αρχιτέκτονας: Κωνσταντίνος Πίττας | Photo © Σταύρος Νιφλής

26 Μαρτίου 2026

Η μεσογειακή απλότητα και η παραδοσιακή Κυκλαδίτικη αρχιτεκτονική ενώνονται σε αυτή τη κατοικία στην Πάρο


Διαβάστε το άρθρο
Facebook __ Ακολουθήστε μας στο Facebook
Twitter __ Ακολουθήστε μας στο Twitter
Instagram __ Ακολουθήστε μας στο Instagram

Αναζήτηση

Επικοινωνήστε μαζί μας στο ακόλουθο email:

info[@]kataskevesktirion.gr

© 2025 Κατασκευές Κτιρίων. All Rights Reserved.