• Πρόσφατα έργα
    • Αρχιτεκτονικά
    • Design – Διακόσμηση
    • Μελέτες
    • Εργασίες
  • Δόμηση – Υποδομές
    • Ξενοδοχεία – Τουρισμός
    • Κατασκευές – Ακίνητα
    • Αστικές αναπλάσεις
    • Στατικά – Τοπογραφικά
  • Εξοικονόμηση – Ενέργεια
    • ΑΠΕ
    • Πράσινες επενδύσεις
    • Η/Μ Εγκαταστάσεις
    • Αυτοματισμοί – Τεχνολογία
  • Επιχειρήσεις
    • Εταιρικά Νέα
    • Ειδικές Τεχνολογίες
  • Αφιερώματα
  •  
ΥΠΠΟ: Ανακατασκευάζει το Βιομηχανικό Συγκρότημα της Πειραιώς 260
17 Ιουλίου 2024
Aria Hotels: Εγκαθιστούν τον πρώτο φορτιστή ηλεκτρικών αυτοκινήτων στην Κίμωλο
18 Ιουλίου 2024

Αρχιτεκτονική μελέτη: Μαριαλένα Καμπάνη | Φωτορεαλιστική απεικόνιση, © Μαριαλένα Καμπάνη - Ιωάννης Βακαλίδης

Ένα συγκρότημα κατοικιών που κάνει αίσθηση στο Βροντάδο της Χίου – Ξύλο και πέτρα σε απόλυτη αρμονία

18 Ιουλίου 2024
Κατηγορίες
  • Μελέτες
Ετικέτες
  • αρμονία
  • κατοικίες
  • μελέτη
  • ξύλο
  • πέτρα
  • συγκρότημα
  • φυσικό περιβάλλον
  • Χίος

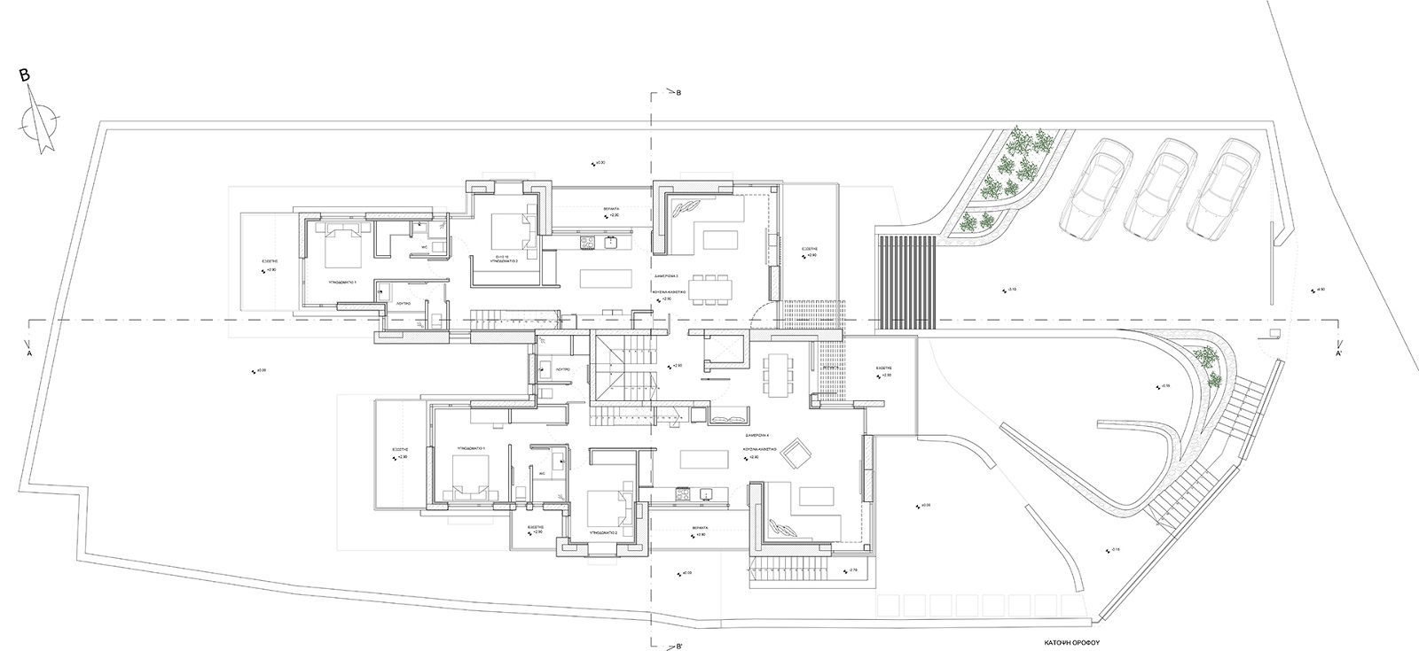
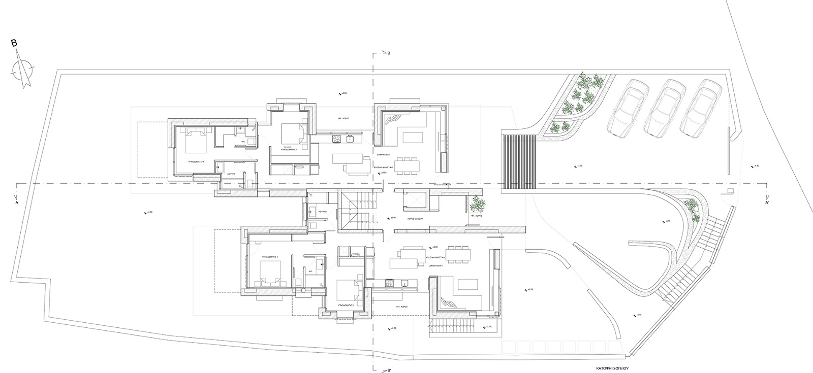
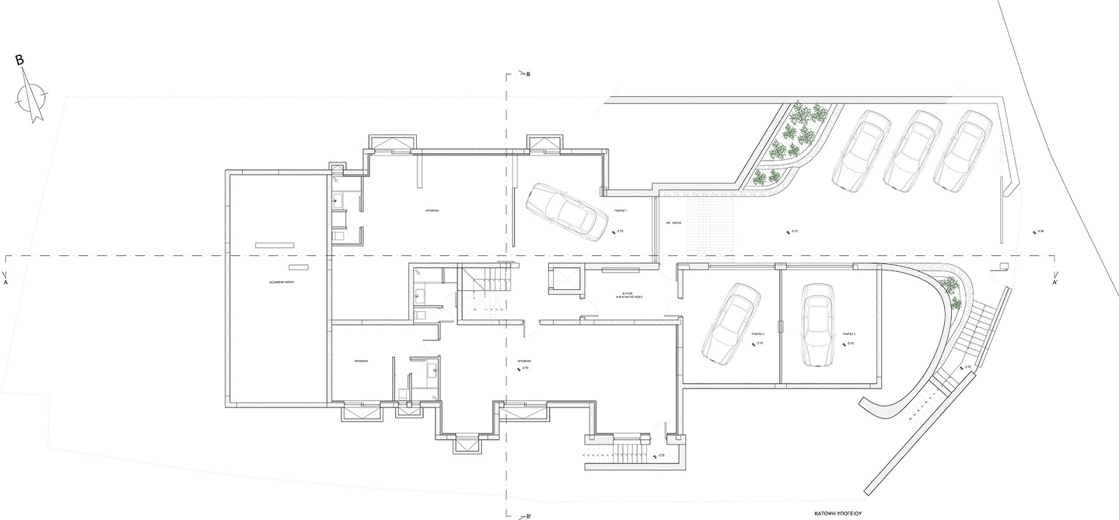
Η μελέτη, που παρουσιάζει η αρχιτέκτονας Μαριαλένα Καμπάνη, αφορά σε νεόδμητο κτίριο κατοικιών στο Βροντάδο της Χίου, αποτελούμενο από τέσσερα διαμερίσματα τα οποία αναπτύσσονται σε ισόγειο και πρώτο όροφο. Οι υπόγειοι χώροι χρησιμοποιούνται για γκαράζ και αποθήκες.

Λόγω της έντονης υψομετρικής διαφοράς μεταξύ οικοπέδου και οδού, ο κτιριακός όγκος τοποθετείται σε απόσταση από το ανατολικό όριο προκειμένου να εξασφαλιστεί η πρόσβαση σε αυτόν μέσω κλιμακωτής ανάπτυξης από πεζούλες πρασίνου, οι τοίχοι των οποίων κατασκευάζονται υπό κλίση προκειμένου να ‘υποδέχονται’ τους επισκέπτες ομαλά.

Αρχιτεκτονική μελέτη: Μαριαλένα Καμπάνη | Φωτορεαλιστική απεικόνιση, © Μαριαλένα Καμπάνη – Ιωάννης Βακαλίδης

Αρχιτεκτονική μελέτη: Μαριαλένα Καμπάνη | Φωτορεαλιστική απεικόνιση, © Μαριαλένα Καμπάνη – Ιωάννης Βακαλίδης

Καθοριστικό ρόλο στη σύνθεση του κτιρίου έπαιξε η θέση και το σχήμα του οικοπέδου. Εξαιτίας του επιμήκους σχήματός του με τη στενή πλευρά να αντικρύζει τη θάλασσα και το τοπίο, οι κατοικίες οργανώνονται έτσι ώστε και οι τέσσερις να απολαμβάνουν τη θέα μέσω των κοινόχρηστων χώρων του εσωτερικού τους.

Αρχιτεκτονική μελέτη: Μαριαλένα Καμπάνη | Φωτορεαλιστική απεικόνιση, © Μαριαλένα Καμπάνη – Ιωάννης Βακαλίδης

Αρχιτεκτονική μελέτη: Μαριαλένα Καμπάνη | Φωτορεαλιστική απεικόνιση, © Μαριαλένα Καμπάνη – Ιωάννης Βακαλίδης


“Το σύνολο των κατοικιών διαρθρώνεται γύρω από έναν κεντρικό πυρήνα, αυτόν του κοινόχρηστου κλιμακοστασίου, ο οποίος σε οδηγεί σε όλα τα επίπεδα”.


Ανατολική όψη, © Μαριαλένα Καμπάνη

Δυτική όψη, © Μαριαλένα Καμπάνη

Βόρεια όψη, © Μαριαλένα Καμπάνη

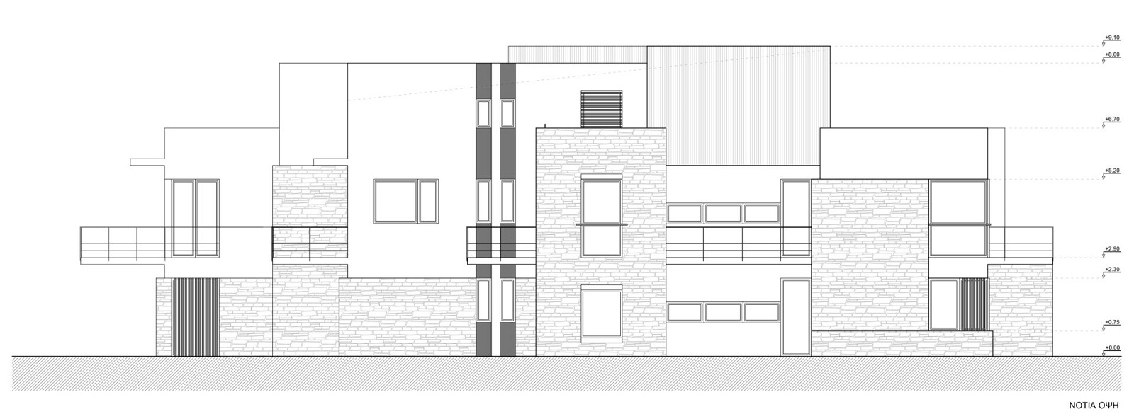
Νότια όψη, © Μαριαλένα Καμπάνη

Σημαντικό παράγοντα για την οργάνωση των επιμέρους χώρων κάθε κατοικίας αποτέλεσε ο προσανατολισμός. Επομένως, ο βόρειος όγκος του κτιρίου ‘συρταρώνει’ δυτικά προκειμένου να ‘αποκόψει’ το βορρά στους ιδιωτικούς χώρους του νότιου όγκου επιτρέποντας σταθερό φωτισμό στους κοινόχρηστους χώρους, ενώ ταυτόχρονα οι δικοί του ιδιωτικοί χώροι επωφελούνται του νότου μέσω μεγάλων ανοιγμάτων.

Κάτοψη υπογείου, © Μαριαλένα Καμπάνη

Κάτοψη ισογείου, © Μαριαλένα Καμπάνη

Κάτοψη ορόφου, © Μαριαλένα Καμπάνη


“Επιθυμώντας την εναρμόνιση του κτιρίου στο περιβάλλον του, ένα μεγάλο τμήμα του κελύφους του, συντίθεται από φυσικά υλικά που μορφώνουν τις όψεις (πέτρα, ξύλο)”.


Κάτοψη σοφίτας, © Μαριαλένα Καμπάνη

Κάτοψη δώματος, © Μαριαλένα Καμπάνη

Προτεραιότητα ήταν το κτίριο να περιβάλλεται από πυκνή βλάστηση γι’ αυτό τα τμήματα που διαστρώνονται με χυτό υλικό είναι τα απολύτως απαραίτητα για την εξασφάλιση των προσβάσεων και της ανάπτυξης βασικών υπαίθριων δραστηριοτήτων. Με τον τρόπο αυτό, επιτυγχάνεται και η ένταξη στο φυσικό περιβάλλον που αποτέλεσε βασικό άξονα στο σύνολο της μελέτης.

Τομή Α-Α, © Μαριαλένα Καμπάνη

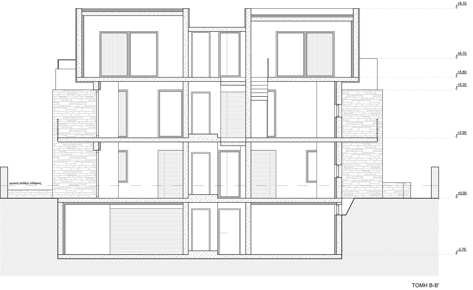
Τομή Β-Β, © Μαριαλένα Καμπάνη


Στοιχεία & Συντελεστές έργου:
Τίτλος έργου: Green Block of Flats, Τυπολογία: Πολυκατοικία, Τοποθεσία: Βροντάδος – Χίος, Αρχιτεκτονική μελέτη: Μαριαλένα Καμπάνη, Στατική μελέτη: Κωνσταντίνος Βαβάκας, Κατάσταση: Μελέτη, Έτος μελέτης: 2022, Κείμενο παρουσίασης: Μαριαλένα Καμπάνη, Φωτορεαλιστικές απεικονίσεις: Φωτορεαλιστικές απεικονίσεις: Μαριαλένα Καμπάνη – Ιωάννης Βακαλίδης
<

Υποβάλλετε ένα άρθρο

Το όνομά σας *

Το email σας *

Το θέμα του άρθρου σας *

kataskevesktirion.gr
kataskevesktirion.gr

Σχετικές δημοσιεύσεις

Αρχιτεκτονική Μελέτη: The Hive Architects | Φωτορεαλιστική απεικόνιση © The Hive Architects

14 Απριλίου 2026

Μια μονοκατοικία στο Μαρούσι που βασίζεται στον γεωμετρικό σχεδιασμό & τη σύγχρονη πολυτέλεια


Διαβάστε το άρθρο

Αρχιτεκτονική μελέτη - Γενικό Πολεοδομικό Σχέδιο Χερσαίας Ζώνης - Μελέτη Τοπίου: Neiheiser Argyros | Φωτορεαλιστική απεικόνιση © DUEE Studio

1 Απριλίου 2026

Μια νέα μαρίνα για την Ερμιόνη, σχεδιασμένη ως επέκταση του αρχαίου χωριού της περιοχής


Διαβάστε το άρθρο

Αρχιτεκτονική μελέτη: FOTIS ZAPANTIOTIS associated architects | Φωτορεαλιστική απεικόνιση © STUDIO TAF

13 Μαρτίου 2026

Ένα υπόσκαφο οινοποιείο μοιάζει να «σχίζει» το καταπράσινο τοπίο σε μια πλαγιά της Αιδηψού


Διαβάστε το άρθρο

Αρχιτεκτονική Μελέτη: The Hive Architects | Φωτορεαλιστική απεικόνιση © IDAA – Nikos Mathioudakis

12 Μαρτίου 2026

FLUENTUS Residences: Τρεις υπόσκαφες κατοικίες γίνονται ένα με το φυσικό κυκλαδίτικο τοπίο


Διαβάστε το άρθρο

Architecture - Interior design: EFTEKTON Architects & Engineers | 3d depiction © EFTEKTON Architects & Engineers

6 Μαρτίου 2026

Timeless design & contemporary materiality complete Eftekton architects’ apartment interior in central Athens


Διαβάστε το άρθρο

Άποψη από το εσωτερικό του καταστήματος | Φωτορεαλιστική απεικόνιση © Constantine Bouras Studio

2 Μαρτίου 2026

Ανάπλαση Εμπορικής Ζώνης του Λιμένα Ραφήνας: Μια νέα αφήγηση για το δημόσιο χώρο της εισόδου του λιμανιού Ραφήνας


Διαβάστε το άρθρο
Facebook __ Ακολουθήστε μας στο Facebook
Twitter __ Ακολουθήστε μας στο Twitter
Instagram __ Ακολουθήστε μας στο Instagram

Αναζήτηση

Επικοινωνήστε μαζί μας στο ακόλουθο email:

info[@]kataskevesktirion.gr

© 2025 Κατασκευές Κτιρίων. All Rights Reserved.