• Πρόσφατα έργα
    • Αρχιτεκτονικά
    • Design – Διακόσμηση
    • Μελέτες
    • Εργασίες
  • Δόμηση – Υποδομές
    • Ξενοδοχεία – Τουρισμός
    • Κατασκευές – Ακίνητα
    • Αστικές αναπλάσεις
    • Στατικά – Τοπογραφικά
  • Εξοικονόμηση – Ενέργεια
    • ΑΠΕ
    • Πράσινες επενδύσεις
    • Η/Μ Εγκαταστάσεις
    • Αυτοματισμοί – Τεχνολογία
  • Επιχειρήσεις
    • Εταιρικά Νέα
    • Ειδικές Τεχνολογίες
  • Αφιερώματα
  •  
Amanzoe: Επενδύσεις σε νέες πολυτελείς βίλες με επίκεντρο την επέτειο των 10 χρόνων λειτουργίας
27 Σεπτεμβρίου 2022
Mytilineos: Κατασκευάζει φωτοβολταϊκά έργα μεγάλης κλίμακας εντός και εκτός Ελλάδας
28 Σεπτεμβρίου 2022

Μελέτη διακόσμησης: Χαδουλος Μάριος | interior Design Team, Photo © Γιώργος Φάκαρος

Ένα ιατρείο στη Θεσσαλονίκη που ξεχωρίζει έντονα από τις μοναδικές αρμονικές του καμπύλες

27 Σεπτεμβρίου 2022
Κατηγορίες
  • Design – Διακόσμηση
Ετικέτες
  • custom made έπιπλα
  • αρμονικές καμπύλες
  • δάπεδα
  • διακόσμηση
  • δρύινα πηχάκια
  • Θεσσαλονίκη
  • ιατρείο
  • μεταλλικά ράφια
  • οροφή
  • ταινίες LED
  • φυσικό κονίαμα
  • φωτισμός

Το ιατρείο, που βρίσκεται στο κέντρο της Θεσσαλονίκης, καταλαμβάνει τον τέταρτο όροφο κτιρίου, ανοιχτής κάτοψης 165 m². Βασική ιδέα του σχεδιασμού, από τον Interior Designer Μάριο Χαδουλό, υπήρξε η μεθερμηνεία του ανθρώπινου σώματος και η ενσωμάτωση των αρμονικών καμπύλων που το χαρακτηρίζουν. Στόχος ήταν η δημιουργία ενός ροϊκού και γήινου χώρου, που προάγει ένα αίσθημα ηρεμίας στον επισκέπτη του ιατρείου.

Ο χώρος υποδοχής και αναμονής των ασθενών, ορίζεται από τα δύο custom-made έπιπλα της reception και του καναπέ, σε ύφος μινιμαλιστικό, με τον χαρακτηριστικό καμπυλοειδή σχεδιασμό τους.
Οι τοίχοι, η οροφή και τα έπιπλα φέρουν φυσικό κονίαμα απαλού μπεζ χρώματος, το δάπεδο των χώρων επενδύεται με πλακίδια τύπου ξύλου, τοποθετημένα σε μορφή ψαροκόκκαλου, η καμπύλη που πλαισιώνει την reception επενδύεται με μασίφ δρύινα πηχάκια, ενώ μέρος των τοίχων διακοσμείται με λακαρισμένα πηχάκια λευκού χρώματος.

Μελέτη διακόσμησης: Χαδουλος Μάριος | interior Design Team, Photo © Γιώργος Φάκαρος


“Η διακόσμηση του χώρου συμπληρώνεται με τους καθρέπτες οργανικού σχήματος και την ύπαρξη του πράσινου, φυσικού στοιχείου”.


Μελέτη διακόσμησης: Χαδουλος Μάριος | interior Design Team, Photo © Γιώργος Φάκαρος

Ο φωτισμός είναι ήπιος και επιτυγχάνεται με εγκυβωτισμένες ταινίες LED στην οροφή και τα ιδιαίτερα μεταλλικά φωτιστικά. Στο ίδιο ύφος σχεδιάστηκαν και οι μεταλλικές  πινακίδες ένδειξης του κάθε χώρου.

Μελέτη διακόσμησης: Χαδουλος Μάριος | interior Design Team, Photo © Γιώργος Φάκαρος

Ο διάδρομος, που οδηγεί προς τους χώρους των εξεταστηρίων και το γραφείο ιατρού, καταλήγει στο άγαλμα, εμπνεύσεως, σχεδιασμού και υλοποίησης του κ. Χαδουλού, επηρρεασμένο από την τελειότητα της γυναικείας μορφής.

Μελέτη διακόσμησης: Χαδουλος Μάριος | interior Design Team, Photo © Γιώργος Φάκαρος

Την τελειότητα αυτή αντανακλούν και οι καθρέπτες που επενδύουν την αριστερή πλευρά του διαδρόμου. Επιλέγεται η τοποθέτηση κρυφών θυρών, με κρυφές κάσες. Την αίσθηση της συνέχειας εντείνει ο κρυφός φωτισμός που τοποθετείται στο επίπεδο του δαπέδου περιμετρικά του διαδρόμου.

Μελέτη διακόσμησης: Χαδουλος Μάριος | interior Design Team, Photo © Γιώργος Φάκαρος


“Στο γραφείο του ιατρού κυριαρχεί το ξύλινο στοιχείο”.


Μελέτη διακόσμησης: Χαδουλος Μάριος | interior Design Team, Photo © Γιώργος Φάκαρος

Ο τοίχος, που επενδύεται με μασίφ δρύινα πηχάκια, έχει στο μέσον μεταλλικά ράφια και δημιουργούνται κρυφές ντουλάπες εκατέρωθεν. Το γραφείο κατασκευάστηκε από δρύ καπνιστό και στηρίζεται σε μεταλλικά πόδια. Ιδιαίτερα στοιχεία του χώρου αποτελούν οι μεταλλικές λεπτομέρειες στήριξης των ραφιών. Ο χώρος συνδέεται εσωτερικά με δύο εξεταστήρια.

Μελέτη διακόσμησης: Χαδουλος Μάριος | interior Design Team, Photo © Γιώργος Φάκαρος

Ο δεύτερος διάδρομος, που οδηγεί στις αίθουσες laser, επενδύεται με συνδυασμό από καπλαμά δρυός, λακαρισμένα πηχάκια λευκού χρώματος και φυσικό κονίαμα, με τις χαρακτηριστικές κρυφές πόρτες να μην διαταράσουν την αρμονία του ιατρείου.

Μελέτη διακόσμησης: Χαδουλος Μάριος | interior Design Team, Photo © Γιώργος Φάκαρος


Στοιχεία & Συντελεστές έργου:
Tίτλος έργου: Ιατρείο στη Θεσσαλονίκη, Τυπολογία: Εσωτερική διακόσμηση επαγγελματικού χώρου, Τοποθεσία: Θεσσαλονίκη, Μελέτη διακόσμησης: Χαδουλος Μάριος | interior Design Team, Εμβαδό: 165 m², Έτος υλοποίησης: 2021, Κείμενο παρουσίασης: Χαδουλος Μάριος | interior Design Team, Φωτογραφίες: Γιώργος Φάκαρος

English description: Interior designer Marios Chadoulos was in charge of the interior design of a clinic, located in the center of Thessaloniki, Greece, which occupies the fourth floor of a building, open plan 165 m².  Basic idea of the project was the reinterpretation of the human body and the integration of the harmonic curves that characterize it. The goal was to create a spiritual and earthy space, which promotes a feeling of calm to the visitor of the clinic.

The reception and waiting area for patients, is defined by the two custom-made furniture in the reception and the sofa, in a minimalist style, with their characteristic curved design. The walls, ceiling and furniture are coated with light beige Kourasanit. The floor of the premises is covered with herringbone patterned, wood imitation tiles. The curve that frames the reception is lined with solid wooden slats. Part of the walls is decorated with white lacquered slats.

Interior Design: Chadoulos Marios | Interior Design Team, Photo © George Fakaros


“The design is completed with the mirrors of an organic shape and the existence of the green, natural element”.


Interior Design: Chadoulos Marios | Interior Design Team, Photo © George Fakaros

The lighting is soft, and is achieved with recessed LED strips in the ceiling and special metal lights. The metal signs indicating each space were designed in the same style. The corridor, which leads to the examination rooms and the doctor’s office, ends at the statue, is inspired, designed and realized by Mr. Chadoulos, influenced by the perfection of the female form.

Interior Design: Chadoulos Marios | Interior Design Team, Photo © George Fakaros

Interior Design: Chadoulos Marios | Interior Design Team, Photo © George Fakaros

Interior Design: Chadoulos Marios | Interior Design Team, Photo © George Fakaros

This perfection is also reflected by the mirrors lining the left side of the corridor. The doors are hidden along the walls. The sense of continuity is intensified by the hidden lighting, placed at floor level around the perimeter of the corridor.

Interior Design: Chadoulos Marios | Interior Design Team, Photo © George Fakaros


“The wooden element dominates the doctor’s office”.


Interior Design: Chadoulos Marios | Interior Design Team, Photo © George Fakaros

Interior Design: Chadoulos Marios | Interior Design Team, Photo © George Fakaros

The wall is lined with Oak slats, it has metal shelves in the middle and hidden cabinets are created on each side. The office table is made of Smoked Oak and rests on metal legs. The metal details supporting the shelves are important elements of the design. The office space is internally connected with two examination rooms.

Interior Design: Chadoulos Marios | Interior Design Team, Photo © George Fakaros

The second corridor, leading to the laser rooms, is lined with a combination of Oak Veneer, white lacquered slats and Kourasanit plaster, with the characteristic hidden doors, as to not disturb the harmony of the clinic.

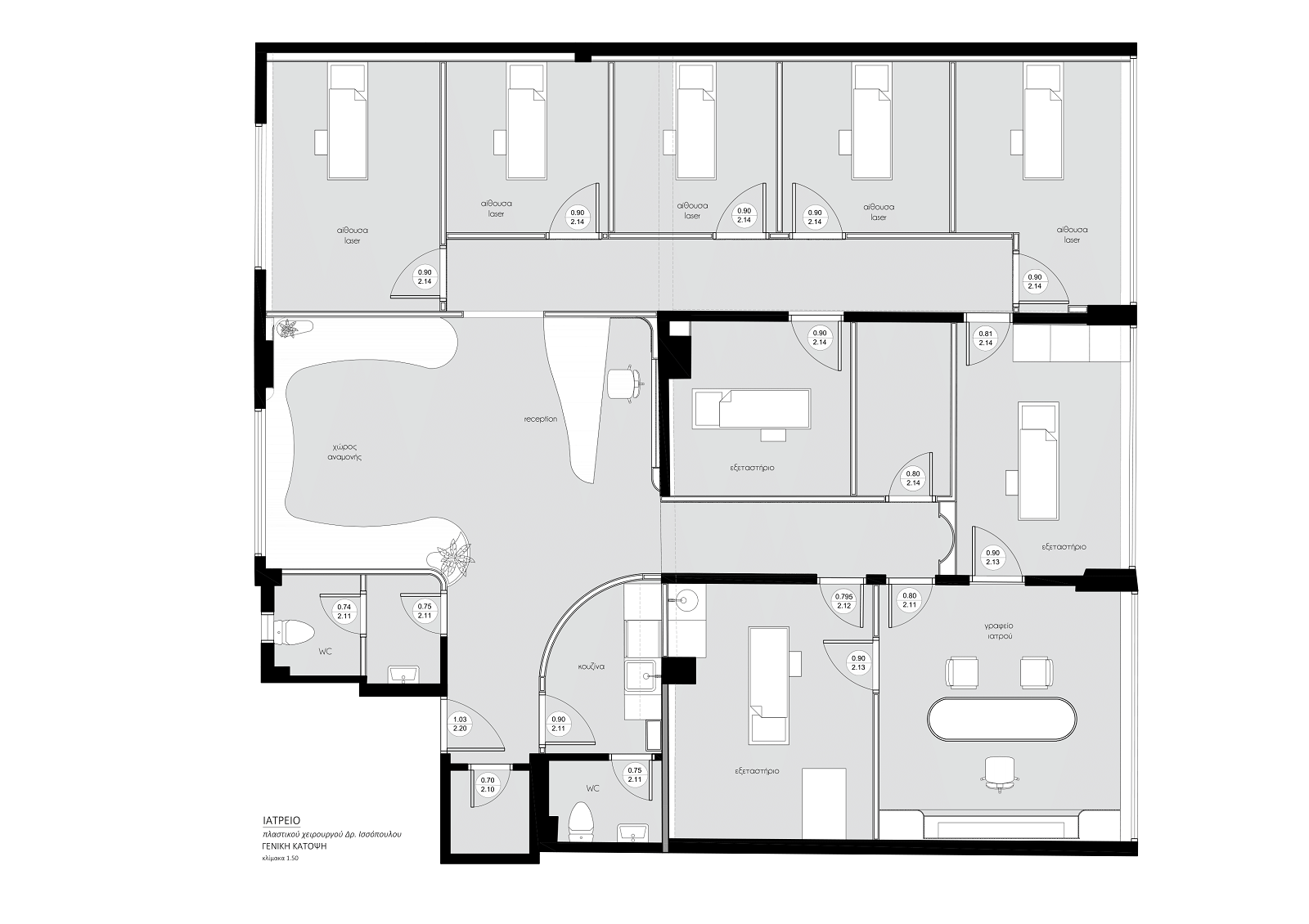
Clinic’s plan, © Chadoulos Marios | Interior Design Team


Facts & Credits:
Project title: Clinic in Thessaloniki, Typology: Interior design | Workplace, Location: Thessaloniki – Greece, Interior Design: Chadoulos Marios | Interior Design Team, Area: 165 m², Year of completion: 2021, Text description: Chadoulos Marios | Interior Design Team, Photography: George Fakaros

Υποβάλλετε ένα άρθρο

Το όνομά σας *

Το email σας *

Το θέμα του άρθρου σας *

kataskevesktirion.gr
kataskevesktirion.gr

Σχετικές δημοσιεύσεις

Αρχιτεκτονική μελέτη – Interior design – Project management: DOMES ARCHITECTS | Photo © Φίλιππος Πανούλης

6 Απριλίου 2026

SNAPPI Office Hub: Ένα πρότυπο εργασιακό περιβάλλον στο κέντρο της Αθήνας γεμάτο έντονα & φωτεινά χρώματα


Διαβάστε το άρθρο

Αρχιτεκτονική μελέτη – Σχεδιασμός - Ανάπτυξη & Διαχείριση έργου: Two Αrchitects Studio | Photo © Δημήτρης Παύλου

31 Μαρτίου 2026

Ένα σύγχρονο αστικό καταφύγιο στην καρδιά του Βόλου


Διαβάστε το άρθρο

Αρχιτεκτονικός σχεδιασμός: Γκέλη Δημητρακοπούλου | Photo © Notion The Agency

30 Μαρτίου 2026

Πόμελο: Ένα μεζεδοπωλείο σε διατηρητέο κέλυφος, όπου η λιτότητα του σχεδιασμού αναδεικνύει την υλικότητα & τη νησιώτικη γεωμετρία


Διαβάστε το άρθρο

Αρχιτεκτονική μελέτη – Ανάπτυξη & Διαχείριση έργου: Space Dreams | Photo © Απόλλωνας Γλύκας

27 Μαρτίου 2026

[chilling timelessly]: Ένα ανακαινισμένο διαμέρισμα στην Κυψέλη, ενώνει το παρελθόν με τη σύγχρονη εποχή


Διαβάστε το άρθρο

Design & Site supervision: Studio Thanasis | Photo © Lea Martin

24 Μαρτίου 2026

Studio Thanasis transforms this dark apartment in Kolonaki into a quality living space using natural daylight


Διαβάστε το άρθρο

Αρχιτεκονική Μελέτη & Επίβλεψη: Παναγιώτης Παπανικολάου | Photo © Παναγιώτης Παπανικολάου

23 Μαρτίου 2026

Ένα διαμέρισμα των ’80s στην Κηφισιά ανακαινίστηκε διατηρώντας τα στοιχεία της εποχής του – Και είναι απλά υπέροχο


Διαβάστε το άρθρο
Facebook __ Ακολουθήστε μας στο Facebook
Twitter __ Ακολουθήστε μας στο Twitter
Instagram __ Ακολουθήστε μας στο Instagram

Αναζήτηση

Επικοινωνήστε μαζί μας στο ακόλουθο email:

info[@]kataskevesktirion.gr

© 2025 Κατασκευές Κτιρίων. All Rights Reserved.