• Πρόσφατα έργα
    • Αρχιτεκτονικά
    • Design – Διακόσμηση
    • Μελέτες
    • Εργασίες
  • Δόμηση – Υποδομές
    • Ξενοδοχεία – Τουρισμός
    • Κατασκευές – Ακίνητα
    • Αστικές αναπλάσεις
    • Στατικά – Τοπογραφικά
  • Εξοικονόμηση – Ενέργεια
    • ΑΠΕ
    • Πράσινες επενδύσεις
    • Η/Μ Εγκαταστάσεις
    • Αυτοματισμοί – Τεχνολογία
  • Επιχειρήσεις
    • Εταιρικά Νέα
    • Ειδικές Τεχνολογίες
  • Αφιερώματα
  •  
Παίρνει «σάρκα και οστά» το νέο γήπεδο του Παναθηναϊκού στον Βοτανικό
10 Απριλίου 2023
Η EUROPA παρουσίασε τη δράση της στο 11ο συνέδριο για την Εταιρική Υπευθυνότητα στην Πράξη
11 Απριλίου 2023

Σχεδιασμός – Επίβλεψη: Παναγιώτης Παπανικολάου | Photo © Παναγιώτης Παπανικολάου

Ένα διαμέρισμα από τα 70s στα Ιλίσια συνδυάζει ιδανικά τα vintage με τα σύγχρονα στοιχεία

10 Απριλίου 2023
Κατηγορίες
  • Design – Διακόσμηση
Ετικέτες
  • ανακαίνιση
  • γυαλί
  • δάπεδο
  • διαμέρισμα
  • δρύινα στοιχεία
  • Ιλίσια
  • μάρμαρο
  • μέταλλο
  • μωσαϊκό
  • φυσικό τοπίο

Ο αρχιτέκτονας Παναγιώτης Παπανικολάου επανασχεδίασε ένα διαμέρισμα της δεκαετίας του 1970 στην περιοχή των Ιλισίων στο κέντρο της Αθήνας. Η ανεμπόδιστη θέα προς το πράσινο αποτέλεσε τον πυρήνα της σχεδιαστικής πρότασης, καθώς το διαμέρισμα από τη μια μεριά έχει θέα προς το Άλσος των Ιλισίων και από την άλλη προς έναν πολύ πράσινο ακάλυπτο χώρο.

Σε επίπεδο κάτοψης, καθαιρέθηκε ο τοίχος μεταξύ της κουζίνας και του χώρου εισόδου, προκειμένου να δημιουργηθεί ένας ενιαίος και φωτεινός χώρος διημέρευσης με διαμπερή οπτική επαφή προς τους δυο χώρους πρασίνου. Η μικρή κουζίνα επανασχεδιάστηκε, διπλασιάζοντας σχεδόν το προηγούμενο μέγεθος της, ενώ στις επιφάνειες της κυριαρχεί το λευκό χρώμα και η μίνιμαλ προσέγγιση, προκειμένου η θέα προς το πράσινο να παραμείνει το κύριο σημείο αναφοράς.

Σχεδιασμός – Επίβλεψη: Παναγιώτης Παπανικολάου | Photo © Παναγιώτης Παπανικολάου


“Μέσω του διαχωριστικού από μέταλλο και γυαλί, δημιουργείται ένα διαμπερές όριο μεταξύ του χώρου διημέρευσης και της κουζίνας, το οποίο διαχωρίζει νοητά τους χώρους, επιτρέποντας όμως παράλληλα τη θέαση προς τον πράσινο ακάλυπτο και την είσοδο άπλετου φωτός”.


Σχεδιασμός – Επίβλεψη: Παναγιώτης Παπανικολάου | Photo © Παναγιώτης Παπανικολάου

Για το διαχωριστικό καθώς και το έπιπλο μπάνιου, επιλέχθηκε μια γαλαζοπράσινη απόχρωση, η οποία λειτουργεί συμπληρωματικά με τα υφιστάμενα μωσαϊκά, τα οποία διατηρήθηκαν και συντηρήθηκαν, ακολουθώντας μια χρωματική παλέτα με αντιθέσεις ψυχρών και ζεστών χρωμάτων.

Σχεδιασμός – Επίβλεψη: Παναγιώτης Παπανικολάου | Photo © Παναγιώτης Παπανικολάου

Παράλληλα, δρύινα στοιχεία καθώς και λεπτομέρειες πράσινου χρώματος έχουν τοποθετηθεί σε διάφορα σημεία του διαμερίσματος, ενισχύοντας έτσι τη σχέση με το φυσικό τοπίο.

Σχεδιασμός – Επίβλεψη: Παναγιώτης Παπανικολάου | Photo © Παναγιώτης Παπανικολάου

Στο χώρο του μπάνιου, τα μαρμάρινα στοιχεία όπως ο πάγκος και τα ράφια καθώς και τα τα πλακάκια τύπου μωσαϊκού στο δάπεδο, επιχειρούν μια σύνδεση με τα υφιστάμενα μωσαϊκά και την αρχική κατάσταση του διαμερίσματος.

Σχεδιασμός – Επίβλεψη: Παναγιώτης Παπανικολάου | Photo © Παναγιώτης Παπανικολάου


Στοιχεία & Συντελεστές έργου:
Τίτλος έργου: Parkview Apartment, Τυπολογία: Ανακαίνιση διαμερίσματος, Τοποθεσία: Ιλίσια – Κέντρο Αθήνας, Σχεδιασμός – Επίβλεψη: Παναγιώτης Παπανικολάου, Κατασκευή: Τοπικά συνεργεία επιλογής του πελάτη, Μέγεθος: 70 τ.μ., Έτος υλοποίησης: 2023, Κείμενο παρουσίασης – Φωτογραφίες: Παναγιώτης Παπανικολάου

English description: Architect Panagiotis Papanikolaou redesigned a 1970’s apartment building in the neighbourhood of Ilisia in the center of Athens. The unobstructed view towards the green spaces was the core of the design proposal, as the apartment has vistas towards a public Pine tree grove from one side and a green uncovered space from the other side.

The wall between the kitchen space and the entrance hall was removed, in order to create a unified living space with transparent visual contact with both green spaces. The small kitchen was redesigned, doubling its previous storage space, while its white surfaces and minimal approach allow the view to the greenery to become the main focal point.

Design – Supervision: Panagiotis Papanikolaou | Photo © Panagiotis Papanikolaou

Design – Supervision: Panagiotis Papanikolaou | Photo © Panagiotis Papanikolaou


“A divider constructed from steel and glass, creates a new transparent boundary between the living space and the kitchen and subtly divides the two spaces, allowing however the view towards the green space and the entrance of light”.


Design – Supervision: Panagiotis Papanikolaou | Photo © Panagiotis Papanikolaou

A blue – green color was selected for both the steel divider and the bathroom’s furniture, as it works in harmony with the existing terrazzo floors that were retained and restored, following a color palette with contrasting warm and cold tonalities.

Design – Supervision: Panagiotis Papanikolaou | Photo © Panagiotis Papanikolaou

Design – Supervision: Panagiotis Papanikolaou | Photo © Panagiotis Papanikolaou

Moreover, oak elements along with green color details are placed in several points of the apartment, thus enhancing the relationship with the natural landscape. In the bathroom, marble elements, such as the countertop and the shelves along with the terrazzo floor tiles allow a connection with the existing terrazzo floors and the apartment’s original condition.

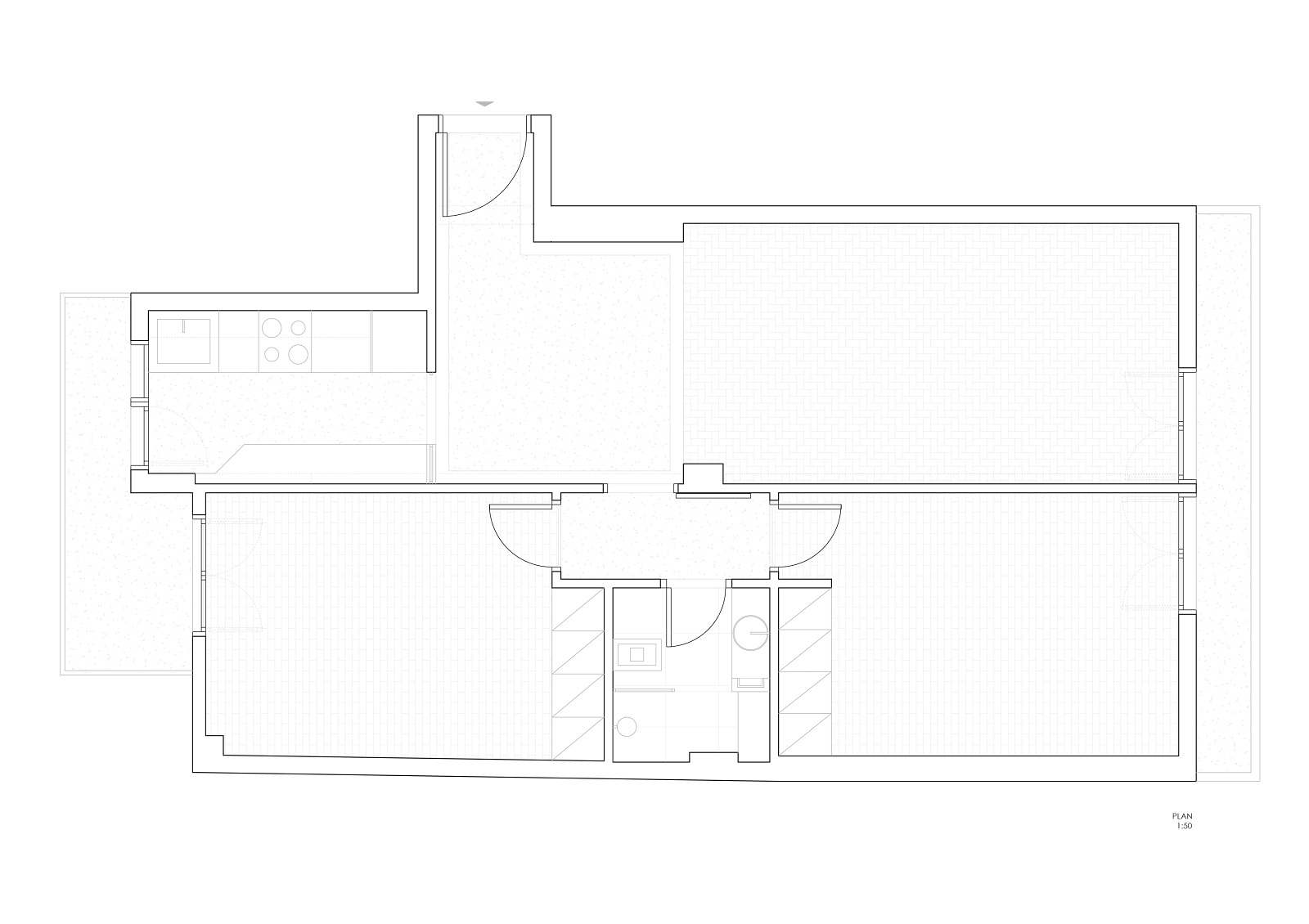
Floor plan, © Panagiotis Papanikolaou


Facts & Credits:
Project title: Parkview Apartment, Typology: Apartment renovation, Location: Ilisia – Athens – Greece, Design & Supervision: Panagiotis Papanikolaou, Size: 70 m², Year of completion: 2023, Text description – Photography: Panagiotis Papanikolaou

Υποβάλλετε ένα άρθρο

Το όνομά σας *

Το email σας *

Το θέμα του άρθρου σας *

kataskevesktirion.gr
kataskevesktirion.gr

Σχετικές δημοσιεύσεις

Architectural and Interior Design + Construction: Georgios Apostolopoulos Architects | Photo © Sarah Rainer

30 Απριλίου 2026

In Athens, Georgios Apostolopoulos Architects converts an old tiny corner shop into fresh & vibrant Ugly Rolls Bakery


Διαβάστε το άρθρο

Αρχιτεκτονική μελέτη + Κατασκευή: TAKKT teamed architects | Photo © Ιωάννα Φωτιάδου

28 Απριλίου 2026

Μια φωτεινή, οικογενειακή κατοικία στην Καλαμαριά που αγαπά την εκλεπτυσμένη διαχρονικότητα


Διαβάστε το άρθρο

Αρχιτεκτονική μελέτη: Plaini and Karahalios Architects | Photo © Νίκος Παπαγεωργίου (Infinite Moments)

27 Απριλίου 2026

Φωτεινοί χώροι και συνεχής κίνηση στα ανακαινισμένα γραφεία της εταιρείας Mprime στην Αθήνα


Διαβάστε το άρθρο

Μελέτη - Σχεδιασμός: Βιργινία Καβράκη | Photo © Ivan Ivanisevic

24 Απριλίου 2026

Casa Sol: Ένα σύγχρονο αριστούργημα με κοσμοπολίτικη αισθητική & μεσογειακή αύρα στο μαγευτικό Σπλιτ της Κροατίας


Διαβάστε το άρθρο

Αρχιτεκτονικός Σχεδιασμός: ASAA Designs (Aristeides Sevntalis Architects & Associates) | Photo © Γιώργης Γερόλυμπος

23 Απριλίου 2026

Με θέα την Ακρόπολη, στο Μετς, δύο διαμερίσματα των 70s ξαναγράφουν τους κανόνες της σύγχρονης κατοίκησης


Διαβάστε το άρθρο

Αρχιτεκτονική μελέτη: idiom: studio for architecture + Λουκάς Μπάκας | Photo © Αλίνα Λέφα

22 Απριλίου 2026

Ένα ανακαινισμένο διαμέρισμα στην οδό Μπενάκη αποτελεί απόδειξη ότι η Αθηναϊκή ’60s αισθητική ανήκει στο σήμερα!


Διαβάστε το άρθρο
Facebook __ Ακολουθήστε μας στο Facebook
Twitter __ Ακολουθήστε μας στο Twitter
Instagram __ Ακολουθήστε μας στο Instagram

Αναζήτηση

Επικοινωνήστε μαζί μας στο ακόλουθο email:

info[@]kataskevesktirion.gr

© 2025 Κατασκευές Κτιρίων. All Rights Reserved.