• Πρόσφατα έργα
    • Αρχιτεκτονικά
    • Design – Διακόσμηση
    • Μελέτες
    • Εργασίες
  • Δόμηση – Υποδομές
    • Ξενοδοχεία – Τουρισμός
    • Κατασκευές – Ακίνητα
    • Αστικές αναπλάσεις
    • Στατικά – Τοπογραφικά
  • Εξοικονόμηση – Ενέργεια
    • ΑΠΕ
    • Πράσινες επενδύσεις
    • Η/Μ Εγκαταστάσεις
    • Αυτοματισμοί – Τεχνολογία
  • Επιχειρήσεις
    • Εταιρικά Νέα
    • Ειδικές Τεχνολογίες
  • Αφιερώματα
  •  
Προστασία και αντοχή ηλεκτρολογικών εγκαταστάσεων: Η στεγανότητα στους εξωτερικούς χώρους και η σημασία της σωστής επιλογής πίνακα
16 Δεκεμβρίου 2025
Blink Charging Hellas: Πάνω από 80 σταθμοί φόρτισης στα τραπεζικά υποκαταστήματα
17 Δεκεμβρίου 2025

Μελέτη – Σχεδιασμός: URBAN PROJECT by Kyriaki Thodi | Photo © studiovd.gr / Νίκος Βαβδινούδης – Χρήστος Δημητρίου

ΘΕΡΑΠΑΙΖΩ: Ένας πολυχώρος διασκέδασης στις Σέρρες που προάγει την αξία της ισότητας και της διαφορετικότητας

17 Δεκεμβρίου 2025
Κατηγορίες
  • Μελέτες
Ετικέτες
  • βιωσιμότητα
  • διαφορετικότητα
  • ΘΕΡΑΠΑΙΖΩ
  • ισότητα
  • κινητικότητα
  • παιδότοπος
  • Σέρρες
  • φωτισμός
  • χρώματα

Το ΘΕΡΑΠΑΙΖΩ είναι ένας συμπεριληπτικός παιδότοπος στην πόλη των Σερρών, που σχεδιάστηκε από το γραφείο URBAN PROJECT by Kyriaki Thodi,  έχοντας μια βασική θεμελιώδη ιδέα: κάθε παιδί δικαιούται το παιχνίδι — όχι σε «ειδικά» παιχνίδια στην άκρη, αλλά στα ίδια παιχνίδια, με τους φίλους του. Σκοπός του έργου είναι να μετατρέψει τον καθολικό σχεδιασμό από νομική υποχρέωση σε αρχιτεκτονική φιλοσοφία, όπου η προσβασιμότητα ενσωματώνεται στον πυρήνα της σύνθεσης, αντί να προστίθεται.

Από την αρχή του σχεδιασμού, αποφασίστηκε ότι κάθε στοιχείο του έργου, από την είσοδο με τις φωτιζόμενες καμάρες, τα Ring Lights, τα house–shaped frames και μέχρι τα πολυεπίπεδα παιχνίδια, θα είναι ειδικές κατασκευές. Κάθε κατασκευή σχεδιάστηκε από το μηδέν και ολοκληρώθηκε σε συνεργασία με τοπικούς τεχνίτες που έδωσαν σάρκα και οστά σε ένα όραμα συμπερίληψης. Τα παιχνίδια επιλέχθηκαν προσεκτικά, με γνώμονα την ασφάλεια, την αισθητική συνοχή και τη δυνατότητα αλληλεπίδρασης όλων των παιδιών, ανεξαρτήτως σωματικών, αισθητηριακών ή γνωστικών ικανοτήτων.

Μελέτη – Σχεδιασμός: URBAN PROJECT by Kyriaki Thodi | Photo © studiovd.gr / Νίκος Βαβδινούδης – Χρήστος Δημητρίου

Το πρόβλημα των συμβατικών χώρων:
Στις περισσότερες παιδικές χαρές, η προσβασιμότητα Αμεα αντιμετωπίζεται ως νομική υποχρέωση: μια ράμπα στην άκρη, ένα «ειδικό» παιχνίδι που ξεχωρίζει, μια «διαφορετική» διαδρομή για «διαφορετικά» παιδιά. Το αποτέλεσμα θλιβερό, παιδιά σε αναπηρικά αμαξίδια που παίζουν μόνα τους, χώρια από τους συνομήλικους τους. Γονείς με παιδιά με αυτισμό που φεύγουν μετά από 10 λεπτά επειδή ο χώρος είναι χαοτικός. Παιδιά με προβλήματα όρασης που δεν μπορούν να «διαβάσουν» τον χώρο.
Τη νύχτα, οι συμβατικές παιδικές χαρές είτε κλείνουν εντελώς είτε υπολειτουργούν, λόγω ανεπαρκούς φωτισμού. Έτσι, μετατρέπονται σε «απαγορευμένες ζώνες», χάνοντας το 30-40% του δυνητικού χρόνου χρήσης τους.

Μελέτη – Σχεδιασμός: URBAN PROJECT by Kyriaki Thodi | Photo © studiovd.gr / Νίκος Βαβδινούδης – Χρήστος Δημητρίου

Inclusion από την αρχή — Όχι απλά Integration:
Η αρχιτεκτονική ομάδα επέλεξε να εστιάσει στην «ένταξη» (Inclusion) και όχι στην απλή «ενσωμάτωση» (Integration). Αυτή η προσέγγιση έχει ως αποτέλεσμα παιδιά σε αναπηρικά αμαξίδια να παίζουν μαζί με τους συνομηλίκους τους, χωρίς αποκλεισμούς. Παιδιά με αυτισμό μπορούν να παραμείνουν για ώρες, καθώς βρίσκουν ήσυχες γωνιές όπου αισθάνονται άνετα δίπλα σε άλλα παιδιά. Οι γονείς αισθάνονται ήρεμοι, γνωρίζοντας ότι ο χώρος έχει σχεδιαστεί με γνώμονα τις ανάγκες του παιδιού τους, αλλά και των φίλων του. Η φιλοσοφία είναι απλή: «κανένα παιδί εκτός παιχνιδιού» — όχι ως σύνθημα, αλλά ως σχεδιαστική δέσμευση που επαληθεύεται καθημερινά στη λειτουργία του χώρου.

Μελέτη – Σχεδιασμός: URBAN PROJECT by Kyriaki Thodi | Photo © studiovd.gr / Νίκος Βαβδινούδης – Χρήστος Δημητρίου

Ο φωτισμός ως πυρήνας της σύνθεσης:
Σημαντική έμφαση δόθηκε στον φωτισμό, ο οποίος ενσωματώθηκε στον πυρήνα της σύνθεσης και αναδείχθηκε ως καίριο στοιχείο της προσβασιμότητας. Η νύχτα δεν αντιμετωπίστηκε ως «υποπροϊόν» της ημέρας, αλλά ως μια ισότιμη φάση στον σχεδιασμό. Το αποτέλεσμα είναι ένας χώρος που δεν «κλείνει» όταν δύει ο ήλιος, αλλά μεταμορφώνεται από παιδότοπος σε ένα φωτεινό παραμύθι.

Μελέτη – Σχεδιασμός: URBAN PROJECT by Kyriaki Thodi | Photo © studiovd.gr / Νίκος Βαβδινούδης – Χρήστος Δημητρίου

Η προσβασιμότητα και η ασφάλεια στον χώρο επιτυγχάνεται, μέσω του φωτισμού διαδρόμων και μονοπατιών, δημιουργώντας ένα περιβάλλον φιλικό και εύκολα προσβάσιμο για παιδιά με ειδικές ανάγκες. Ακολουθώντας τη φιλοσοφία «το φως δεν επιβάλλει, αλλά σέβεται και αποκαλύπτει», κάθε φωτιστικό στοιχείο σχεδιάστηκε με σκοπό να αφηγείται μια ιστορία, αντί να απλώς να διακοσμεί.

Μελέτη – Σχεδιασμός: URBAN PROJECT by Kyriaki Thodi | Photo © studiovd.gr / Νίκος Βαβδινούδης – Χρήστος Δημητρίου

Τα «κλειδιά» του φωτισμού:
  1. Οι καμάρες:
Στην είσοδο δεσπόζει η επιβλητική πύλη με τα έντονα χρώματα και φωτισμό ακολουθούμενη από ένα διάδρομο, οριοθετημένο με φωτιζόμενες μεταλλικές καμάρες με ενσωματωμένα Led θερμού χρώματος, δημιουργώντας μια φυσικά προσβάσιμη πύλη, χωρίς την ύπαρξη της κλασσικής ράμπας. Οι καμάρες δημιουργούν διαδρόμους που λειτουργούν ως οπτικοί άξονες, προσφέροντας καθοδήγηση, ασφάλεια και διευκολύνοντας τον προσανατολισμό. Αποτελούν μια σύγχρονη αναφορά στις αψίδες των παραδοσιακών αυλών, μεταμορφώνοντας την είσοδο σε μια πύλη προς τη χαρά. Ταυτόχρονα, οριοθετούν με φυσικό τρόπο τον εξωτερικό κόσμο από τον ασφαλή και προστατευμένο χώρο του παιχνιδιού. Η στρατηγική τοποθέτησή τους στην είσοδο εξασφαλίζει ότι όλοι οι επισκέπτες βιώνουν την ίδια εμπειρία υποδοχής. Οικογένειες με αμαξίδια, παιδιά τυπικής που περπατούν, γονείς με καρότσια, όλοι διασχίζουν τις ίδιες φωτεινές καμάρες, νιώθοντας ευπρόσδεκτοι.
  1. Ring Lights:
Αποτελούν το πιο μαγικό στοιχείο και είναι ειδικά κατασκευασμένα γι αυτό το έργο. Όταν τα βλέπεις από μακριά, ειδικά τη νύχτα, μοιάζουν με μανιτάρια από παραμυθένιο δάσος, φωτεινά, αιωρούμενα, σαν να φύτρωσαν από το έδαφος του παιδότοπου για να προστατεύσουν και να φωτίσουν τον μαγικό κόσμο που απλώνεται από κάτω τους, λειτουργώντας σαν οπτικοί δείκτες βοηθώντας παιδιά με γνωστικές δυσκολίες να «διαβάσουν» τον χώρο.
  1. Τα φωτεινά σπίτια:
Τα τέσσερα house–shaped frames είναι από τα πιο χαρακτηριστικά στοιχεία του έργου. Αυτές οι χειροποίητες κατασκευές συμβολίζουν ασφάλεια και οικειότητα, δημιουργώντας χώρους όπου όλα τα παιδιά μπορούν να νιώσουν ότι ανήκουν. Το φως που «ξεχύνεται» από αυτές προσφέρει ζεστασιά και καλωσόρισμα σε όλο τον χώρο γύρω τους, ενώ τα διαφορετικά χρώματα γιορτάζουν την ποικιλομορφία και την αποδοχή.

Μελέτη – Σχεδιασμός: URBAN PROJECT by Kyriaki Thodi | Photo © studiovd.gr / Νίκος Βαβδινούδης – Χρήστος Δημητρίου

Εξοπλισμός που ενώνει:
Ο εξοπλισμός παιχνιδιού περιλαμβάνει προσβάσιμα στοιχεία για παιδιά με κινητικές ή αισθητηριακές ιδιαιτερότητες. Χαμηλά πάνελ αφής, sensory zones, αιωρούμενα παιχνίδια, προσβάσιμα από αναπηρικό αμαξίδιο. Ειδικά παιχνίδια διασπείρονται σε όλη την αυλή με έντονα χρώματα, climbing net για challenging play για παιδιά με υψηλή κινητικότητα. Στην πίσω πλευρά του παιδότοπου έχει δημιουργηθεί μια ήσυχη ζώνη με χαμηλότερο φωτισμό, λιγότερα παιχνίδια και μειωμένο θόρυβο, προσφέροντας ένα γαλήνιο περιβάλλον για παιδιά με αισθητηριακή υπερφόρτωση, καθώς και για γονείς και παιδιά που επιθυμούν στιγμές ηρεμίας και χαλάρωσης.
Όλα τα δάπεδα των παιχνιδιών είναι από EPDM υλικό και έχουν πιστοποίηση EN1177. Ο εξοπλισμός των παιχνιδιών, συμμορφώνεται με EN1176. Απουσιάζουν τα φουσκωτά παιχνίδια, ενώ χρησιμοποιείται αποκλειστικά επαγγελματικός και πιστοποιημένος εξοπλισμός, σχεδιασμένος για να αντέχει σε χιλιάδες κύκλους χρήσης.
Τα χαμηλά καθίσματα lounge που βρίσκονται μπροστά από τα «σπίτια» και κάτω από τα μανιτάρια, επιτρέπουν στα αναπηρικά αμαξίδια να σταθμεύουν δίπλα σε γονείς και φίλους, δημιουργώντας οπτική ισότητα και εξασφαλίζοντας ότι όλοι κάθονται στο ίδιο επίπεδο.

Μελέτη – Σχεδιασμός: URBAN PROJECT by Kyriaki Thodi | Photo © studiovd.gr / Νίκος Βαβδινούδης – Χρήστος Δημητρίου

Βιωσιμότητα – Οικονομική και περιβαλλοντική:
Οι αρχές αειφορίας διέπουν κάθε επιλογή. Ο LED φωτισμός καταναλώνει 70-80% ενέργειας σε σχέση με συμβατικό φωτισμό, ενώ η βραδινή λειτουργία διπλασιάζει το χρόνο χρήσης των υποδομών. Τα συνθετικά δάπεδα εξοικονομούν χιλιάδες λίτρα νερού ετησίως, καθώς δεν απαιτούν πότισμα, σε αντίθεση με το φυσικό γρασίδι, ενώ τα παιχνίδια ανθεκτικά, μακρόβια και ανακυκλώσιμα έχουν κύκλο ζωής δεκαετιών. Η πολυλειτουργικότητα του χώρου (παιδική χαρά + cafe + εκδηλώσεις + εκδρομές σχολείων και ΚΔΑΠ) δημιουργεί πολλαπλές πηγές εσόδων, εξασφαλίζοντας οικονομική βιωσιμότητα.
Μέσω του έργου αποδεικνύεται ότι η αρχιτεκτονική αριστεία, η κοινωνική ευθύνη και η επιχειρηματική βιωσιμότητα μπορούν να συνυπάρξουν αρμονικά. Από την πρώτη φωτιζόμενη καμάρα μέχρι το τελευταίο Ring Light, κάθε στοιχείο σχεδιάστηκε και κατασκευάστηκε ειδικά για αυτό το έργο.
Αυτός ο παιδότοπος αποτελεί την απόδειξη ότι ο καλύτερος τρόπος για να εξαλείψουμε τους διαχωρισμούς είναι να σχεδιάσουμε έναν κόσμο χωρίς αποκλεισμούς, όπου το μόνο που μετράει είναι η χαρά του παιχνιδιού, δίπλα-δίπλα, κάτω από τα μαγικά μανιτάρια, μέσα στα φωτεινά σπίτια, διασχίζοντας τις καμάρες που σε καλωσορίζουν σπίτι.

Μελέτη – Σχεδιασμός: URBAN PROJECT by Kyriaki Thodi | Photo © studiovd.gr / Νίκος Βαβδινούδης – Χρήστος Δημητρίου


Στοιχεία & Συντελεστές έργου:
Τίτλος έργου: ΘΕΡΑΠΑΙΖΩ Πολυχώρος, Τυπολογία: Αστικός Σχεδιασμός – Παιδική Χαρά, Τοποθεσία: Σέρρες – Ελλάδα, Μελέτη – Σχεδιασμός: URBAN PROJECT by Kyriaki Thodi, Περίοδος μελέτης – κατασκευής: 2024 – 2025, Κείμενο παρουσίασης: URBAN PROJECT by Kyriaki Thodi, Φωτογραφίες: studiovd.gr / Νίκος Βαβδινούδης – Χρήστος Δημητρίου

English description: THERAPAIZO is an inclusive playground in the city of Serres, Greece designed by the URBAN PROJECT by Kyriaki Thodi office, with a basic fundamental idea: every child deserves to play—not in “special” games on the sidelines, but in the same games, with their friends. The project’s purpose is to transform universal design from a legal obligation into an architectural philosophy, where accessibility is embedded at the core of the composition, rather than added on.

From the design’s inception, it was decided that every element of the project, from the entrance with its illuminated arches, the Ring Lights, the house-shaped frames, to the multi-level play equipment, would be custom constructions. Each construction was designed from scratch and completed in collaboration with local craftsmen who gave flesh and bones to a vision of inclusion. The play equipment was carefully selected with emphasis on safety, aesthetic coherence, and the ability for all children to interact, regardless of physical, sensory, or cognitive abilities.

Design – Planning: URBAN PROJECT by Kyriaki Thodi | Photo © studiovd.gr / Nikos Vavdinoudis – Christos Dimitriou

The problem with conventional spaces:
In most playgrounds, accessibility for people with disabilities is treated as a legal obligation: a ramp on the side, a “special” piece of equipment that stands out, a “different” path for “different” children. The result is disheartening: children in wheelchairs playing alone, apart from their peers. Parents with autistic children leave after 10 minutes because the space is chaotic. Children with visual impairments cannot “read” the space. At night, conventional playgrounds either close completely or underperform due to insufficient lighting. Thus, they become “forbidden zones”, losing 30-40% of their potential usage time.

Design – Planning: URBAN PROJECT by Kyriaki Thodi | Photo © studiovd.gr / Nikos Vavdinoudis – Christos Dimitriou

Inclusion from the start—Not just integration:
Architects chose to focus on “inclusion” rather than mere “integration”. This approach results in children in wheelchairs playing together with their peers, without exclusions. Children with autism can stay for hours, as they find quiet corners where they feel comfortable alongside other children. Parents feel at ease, knowing that the space has been designed with their child’s needs in mind, as well as those of their friends. The philosophy is simple: “no child out of play”—not as a slogan, but as a design commitment verified daily in the space’s operation.

Design – Planning: URBAN PROJECT by Kyriaki Thodi | Photo © studiovd.gr / Nikos Vavdinoudis – Christos Dimitriou

Lighting as the core of the composition:
Significant emphasis was placed on lighting, which was integrated into the core of the composition and emerged as a crucial element of accessibility. Night was not treated as a “by-product” of day, but as an equal phase in the design. The result is a space that doesn’t “close” when the sun sets, but transforms from a playground into a luminous fairy tale. Accessibility and safety in the space are achieved through the lighting of corridors and pathways, creating an environment that is friendly and easily accessible for children with special needs. Following the philosophy “light does not impose, but respects and reveals”, each lighting element was designed to tell a story, rather than simply to decorate.

Design – Planning: URBAN PROJECT by Kyriaki Thodi | Photo © studiovd.gr / Nikos Vavdinoudis – Christos Dimitriou

The “keys” to lighting:
  1. The arches:
At the entrance stands an imposing gate with bold colors and lighting, followed by a corridor defined by illuminated metal arches with integrated warm-colored LEDs, creating a naturally accessible gateway without the presence of a traditional ramp. The arches create corridors that function as visual axes, offering guidance, safety, and facilitating orientation.

Design – Planning: URBAN PROJECT by Kyriaki Thodi | Photo © studiovd.gr / Nikos Vavdinoudis – Christos Dimitriou

They constitute a contemporary reference to the arches of traditional courtyards, transforming the entrance into a gateway to joy. Simultaneously, they naturally demarcate the outside world from the safe and protected play space. Their strategic placement at the entrance ensures that all visitors experience the same welcoming experience. Families with wheelchairs, typically developing children who walk, parents with strollers—everyone crosses the same illuminated arches, feeling welcome.
  1. Ring lights:
These are the most magical element and were specially constructed for this project. When you see them from afar, especially at night, they look like mushrooms from a fairy tale forest, luminous, floating, as if they sprouted from the playground floor to protect and illuminate the magical world that spreads beneath them, functioning as visual markers helping children with cognitive difficulties to “read” the space.
  1. The illuminated houses:
The four house-shaped frames are among the most distinctive elements of the project. These handcrafted constructions symbolize safety and familiarity, creating spaces where all children can feel they belong. The light that “pours out” from them offers warmth and welcome to the entire surrounding space, while the different colors celebrate diversity and acceptance.

Design – Planning: URBAN PROJECT by Kyriaki Thodi | Photo © studiovd.gr / Nikos Vavdinoudis – Christos Dimitriou

Equipment that unites:
The play equipment includes accessible elements for children with motor or sensory particularities. Low touch panels, sensory zones, suspended play equipment accessible from wheelchairs. Special play equipment is dispersed throughout the yard in bold colors, climbing nets for challenging play for children with high mobility. On the back side of the playground, a quiet zone has been created with lower lighting, fewer play equipment, and reduced noise, offering a serene environment for children with sensory overload, as well as for parents and children desiring moments of calm and relaxation.

Design – Planning: URBAN PROJECT by Kyriaki Thodi | Photo © studiovd.gr / Nikos Vavdinoudis – Christos Dimitriou

All play surface floors are made of EPDM material and are certified to EN1177 standards. Inflatable play equipment is absent, while exclusively professional and certified equipment is used, designed to withstand thousands of usage cycles. The low lounge seats located in front of the “houses” and under the mushrooms allow wheelchairs to park next to parents and friends, creating visual equality and ensuring that everyone sits at the same level.

Design – Planning: URBAN PROJECT by Kyriaki Thodi | Photo © studiovd.gr / Nikos Vavdinoudis – Christos Dimitriou

Design – Planning: URBAN PROJECT by Kyriaki Thodi | Photo © studiovd.gr / Nikos Vavdinoudis – Christos Dimitriou

Sustainability—Economic and environmental:
Sustainability principles govern every choice. LED lighting consumes 70-80% less energy compared to conventional lighting, while evening operation doubles the usage time of the facilities. Synthetic floors save thousands of liters of water annually, as they require no irrigation, unlike natural grass, while the durable, long-lasting, and recyclable play equipment has a lifespan of decades.

Design – Planning: URBAN PROJECT by Kyriaki Thodi | Photo © studiovd.gr / Nikos Vavdinoudis – Christos Dimitriou

The multi-functionality of the space (playground + cafe + events + school trips and day care centers) creates multiple revenue streams, ensuring economic sustainability. Through this project, it is proven that architectural excellence, social responsibility, and business sustainability can coexist harmoniously. From the first illuminated arch to the last Ring

Design – Planning: URBAN PROJECT by Kyriaki Thodi | Photo © studiovd.gr / Nikos Vavdinoudis – Christos Dimitriou

Light, every element was designed and constructed specifically for this project. This playground is proof that the best way to eliminate divisions is to design a world without exclusions, where the only thing that matters is the joy of play, side-by-side, under the magical mushrooms, inside the illuminated houses, crossing through the arches that welcome you home.

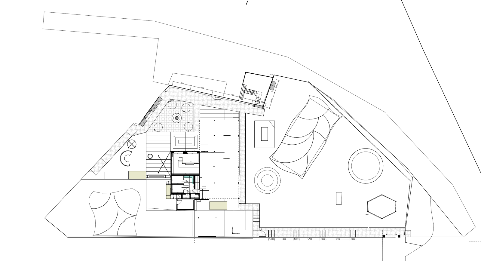
Plan, © URBAN PROJECT by Kyriaki Thodi


Facts & Credits:
Project Title: THERAPAIZO multispace, Typology: Urban Design – Playground, Location: Serres – Greece, Design – Planning: URBAN PROJECT by Kyriaki Thodi, Period of completion: 2024 – 2025, Text description: URBAN PROJECT by Kyriaki Thodi, Photography: studiovd.gr / Nikos Vavdinoudis – Christos Dimitriou
<

Υποβάλλετε ένα άρθρο

Το όνομά σας *

Το email σας *

Το θέμα του άρθρου σας *

kataskevesktirion.gr
kataskevesktirion.gr

Σχετικές δημοσιεύσεις

Αρχιτεκτονική μελέτη: FOTIS ZAPANTIOTIS associated architects | Φωτορεαλιστική απεικόνιση © STUDIO TAF

13 Μαρτίου 2026

Ένα υπόσκαφο οινοποιείο μοιάζει να «σχίζει» το καταπράσινο τοπίο σε μια πλαγιά της Αιδηψού


Διαβάστε το άρθρο

Αρχιτεκτονική Μελέτη: The Hive Architects | Φωτορεαλιστική απεικόνιση © IDAA – Nikos Mathioudakis

12 Μαρτίου 2026

FLUENTUS Residences: Τρεις υπόσκαφες κατοικίες γίνονται ένα με το φυσικό κυκλαδίτικο τοπίο


Διαβάστε το άρθρο

Architecture - Interior design: EFTEKTON Architects & Engineers | 3d depiction © EFTEKTON Architects & Engineers

6 Μαρτίου 2026

Timeless design & contemporary materiality complete Eftekton architects’ apartment interior in central Athens


Διαβάστε το άρθρο

Άποψη από το εσωτερικό του καταστήματος | Φωτορεαλιστική απεικόνιση © Constantine Bouras Studio

2 Μαρτίου 2026

Ανάπλαση Εμπορικής Ζώνης του Λιμένα Ραφήνας: Μια νέα αφήγηση για το δημόσιο χώρο της εισόδου του λιμανιού Ραφήνας


Διαβάστε το άρθρο

Αρχιτεκτονική μελέτη: Zeropixel Architects | Φωτορεαλιστική απεικόνιση, © Zeropixel Architects

24 Φεβρουαρίου 2026

Timberline Villas: Ένας ιδιωτικός παράδεισος στα Χανιά όπου η φύση, η θέα και η άνεση συνυπάρχουν αρμονικά


Διαβάστε το άρθρο

Αρχιτεκτονική μελέτη: Μάρκος Σκαμπάλης | Φωτορεαλιστική απεικόνιση, © Μάρκος Σκαμπάλης (MyArchitectAI)

20 Φεβρουαρίου 2026

Αυτή η κατοικία στη Λεμεσό της Κύπρου αποθεώνει τις καθαρές γραμμές και τη γεωμετρία


Διαβάστε το άρθρο
Facebook __ Ακολουθήστε μας στο Facebook
Twitter __ Ακολουθήστε μας στο Twitter
Instagram __ Ακολουθήστε μας στο Instagram

Αναζήτηση

Επικοινωνήστε μαζί μας στο ακόλουθο email:

info[@]kataskevesktirion.gr

© 2025 Κατασκευές Κτιρίων. All Rights Reserved.