• Πρόσφατα έργα
    • Αρχιτεκτονικά
    • Design – Διακόσμηση
    • Μελέτες
    • Εργασίες
  • Δόμηση – Υποδομές
    • Ξενοδοχεία – Τουρισμός
    • Κατασκευές – Ακίνητα
    • Αστικές αναπλάσεις
    • Στατικά – Τοπογραφικά
  • Εξοικονόμηση – Ενέργεια
    • ΑΠΕ
    • Πράσινες επενδύσεις
    • Η/Μ Εγκαταστάσεις
    • Αυτοματισμοί – Τεχνολογία
  • Επιχειρήσεις
    • Εταιρικά Νέα
    • Ειδικές Τεχνολογίες
  • Αφιερώματα
  •  
Brown Beach Eretria: Μια νέα ολοκληρωμένη εμπειρία φιλοξενίας & διασκέδασης στην Εύβοια
14 Ιουλίου 2022
Η Schneider Electric στην 2η θέση της λίστας Supply Chain Top 25 της Gartner
15 Ιουλίου 2022

Αριτεκτονική μελέτη: Plaini and Karahalios Architects (Γιάννης Καραχάλιος & Ελισάβετ Πλαΐνη) - Χρήστος Γεώργιος Κρητικός, Φωτορεαλιστική απεικόνιση, © Plaini and Karahalios Architects

Η πρόταση των Plaini and Karahalios Architects για το νέο Κτίριο Τεχνών στο Campus Ψυχικού του Κολλεγίου Αθηνών

14 Ιουλίου 2022
Κατηγορίες
  • Μελέτες
Ετικέτες
  • Campus
  • διαγωνισμός
  • Κολλέγιο Αθηνών
  • Κτίριο Τεχνών
  • πρόταση
  • Ψυχικό

Το γραφείο Plaini and Karahalios Architects, παρουσιάζει την πρόταση που υπέβαλε στον Ανοικτό Αρχιτεκτονικό Διαγωνισμό Ιδεών, που συνδιοργάνωσε το Κολλέγιο Αθηνών και η ΣΥΝΝΕΟΝ για τη δημιουργία ενός νέου Κτιρίου Τεχνών εντός των εγκαταστάσεων του Ελληνοαμερικανικού Εκπαιδευτικού Ιδρύματος στο Ψυχικό. Σύμφωνα με τους αρχιτέκτονες, το κτίριο καλείται να φιλοξενήσει μία νέα διακριτή λειτουργία και να ενταχθεί σε ένα αρχιτεκτονικά πολύπτυχο περιβάλλον. Διαμορφώνεται μία νέα χωρική συνθήκη διαπερατών ορίων, με στόχο να δημιουργηθεί ένας πυρήνας καλλιτεχνικής δημιουργίας και διάχυσης για το εκπαιδευτικό ίδρυμα.

Ένα εκ πρώτης όψεως μονολιθικό κτίριο προσκαλεί τους παρατηρητές μέσω των ανοιγμάτων του, να μυηθούν στον κόσμο των τεχνών, να εξελιχθούν εντός ενός προστατευόμενου περιβάλλοντος, αλλά και να εκτεθούν δημιουργικά προς την ευρύτερη κοινωνία. Οι εκπαιδευτικοί χώροι αρθρώνονται γύρω από έναν πολυεπίπεδο αίθριο, το οποίο εκτονώνεται σε πολλαπλές εσωτερικές υπαίθριες και ημιυπαίθριες διαδρομές, οι οποίες αποτελούν την συνέχεια ενός προϋπάρχοντος δικτύου μονοπατιών που ορίζει τις κινήσεις στο φυσικό τοπίο του campus. Το κτίριο αποκτά έτσι μία διττή σχέση με το περιβάλλον του, αποτελώντας ένα οργανικό μέρος του αλλά δίνοντας τη δυνατότητα να λειτουργήσει και ως αυτόνομος θύλακας εκφραστικού πειραματισμού και δημιουργίας.

Αριτεκτονική μελέτη: Plaini and Karahalios Architects (Γιάννης Καραχάλιος & Ελισάβετ Πλαΐνη) – Χρήστος Γεώργιος Κρητικός, Φωτορεαλιστική απεικόνιση, © Plaini and Karahalios Architects

Χωροθετώντας την καλλιτεχνική έκφραση σε ένα εκπαιδευτικό περιβάλλον
«Πώς μπορείς να ζωντανέψεις μία σχολική τάξη σαν να ήταν έργο τέχνης;»  είναι ένα από τα ερωτήματα που ετέθησαν από τον Guattari [1] όταν διερευνούσε τους τρόπους που μπορεί να εισχωρήσει η τέχνη και η αισθητική σε υπάρχοντες ιστούς και δομές. Το ίδιο ερώτημα μπορεί να τεθεί με διαφορετικό τρόπο στον τομέα της αρχιτεκτονικής, όσον αφορά τους τρόπους στέγασης ποικίλων εκφράσεων τέχνης και ίσως και των διαδικασιών παραγωγής της.

Αριτεκτονική μελέτη: Plaini and Karahalios Architects (Γιάννης Καραχάλιος & Ελισάβετ Πλαΐνη) – Χρήστος Γεώργιος Κρητικός, Φωτορεαλιστική απεικόνιση, © Plaini and Karahalios Architects


“Ο σχεδιασμός ενός εκπαιδευτικού κέντρου αφιερωμένου στις Τέχνες, ειδικά όταν εντάσσεται σε πλαίσια της δευτεροβάθμιας εκπαίδευσης, καλείται να βρει την ιδιαίτερη ισορροπία μεταξύ μίας λειτουργικής χωρικής πλαισίωσης και μίας οικειοποιήσιμης χωρικής συνθήκης”.


Αριτεκτονική μελέτη: Plaini and Karahalios Architects (Γιάννης Καραχάλιος & Ελισάβετ Πλαΐνη) – Χρήστος Γεώργιος Κρητικός, Φωτορεαλιστική απεικόνιση, © Plaini and Karahalios Architects

Καλείται να παραγάγει χώρους όπου θα φιλοξενηθεί η εκφραστική ανάπτυξη μαθητών/τριών στα διαμορφωτικά τελευταία χρόνια της εφηβείας, όπου θα ενθαρρύνεται η εξάσκηση χωρίς να καταδικάζεται η αποτυχία, όπου θα ξεπεραστούν προσωπικά και μη όρια στο πλαίσιο της δημιουργικής διαδικασίας, παρέχοντας ταυτόχρονα την κατάλληλη αίσθηση ασφάλειας ώστε να ενθαρρύνεται η ενδοσκοπική ενατένιση που περιλαμβάνει η καλλιτεχνική διεργασία. Καλείται λοιπόν να παρέχει τον κάναβο, αλλά να προάγει και την ανεμπόδιστη εκτύλιξη της πορείας.
Το «Δ.Δασκαλόπουλος Κτίριο Τεχνών» πρόκειται να φιλοξενήσει τα μαθήματα των Εικαστικών Τεχνών, του Χορού, της Μουσικής και του Κινηματογράφου του “International Baccalaureate Diploma Programme”, αλλά θα αποτελέσει και έναν χώρο εκπαίδευσης, πειραματισμού και ελεύθερης έκφρασης για το σύνολο των μαθητών/τριών του Γυμνασίου και Λυκείου του Κολλεγίου Αθηνών και του Κολλεγίου Ψυχικού. Ανάμεσα στα πολλά και σημαντικά κτίρια εκπαιδευτικών, αθλητικών και πολιτισμικών δραστηριοτήτων, το προτεινόμενο κτίριο θα αποκτήσει την ανάλογη σημασία για μαθητές και μαθήτριες που θα εμπλουτίζουν την εκπαίδευσή τους μέσω των τεχνών.

Αριτεκτονική μελέτη: Plaini and Karahalios Architects (Γιάννης Καραχάλιος & Ελισάβετ Πλαΐνη) – Χρήστος Γεώργιος Κρητικός, Φωτορεαλιστική απεικόνιση, © Plaini and Karahalios Architects

Η εισαγωγή των τεχνών στο εκπαιδευτικό πλαίσιο του ‘STEM’ (science, technology, engineering and mathematics), δηλαδή η εκπαιδευτική διάδραση μεταξύ Θετικών Επιστημών και Τεχνών που πρόσφατα εισήγαγε το A(Arts) στο σύγχρονο πλέον ‘STEAM’, κρίνεται πλέον απαραίτητη σε ένα διαρκώς εξελισσόμενο πλαίσιο σχολικών εκπαιδευτικών προγραμμάτων. Με τον ίδιο τρόπο, η ένταξή του προτεινόμενου κτιρίου στο σχολικό campus θα σηματοδοτήσει χωρικά την αυξανόμενη σημασία των καλλιτεχνικών μαθημάτων στο σύνολο των εκπαιδευτικών προγραμμάτων του Ελληνοαμερικανικού Εκπαιδευτικού Ιδρύματος, ενώ η παροχή σύγχρονων εγκαταστάσεων θα ενισχύσει και θα ενθαρρύνει τη χρήση νέων τεχνολογιών στην καλλιτεχνική έκφραση, σε μία εποχή που ο ψηφιακός κόσμος καθορίζει και διευρύνει την εμπειρία της τέχνης.
Περιγράφοντας έναν τέτοιο χώρο, μπορεί κανείς/μία να αναρωτηθεί αν τελικώς μιλούσε για χώρους καλλιτεχνικής εκπαίδευσης ο Bourriaud [2] όταν περιέγραφε το όραμά του να λειτουργεί η τέχνη ως ‘κοινωνικό διάκενο’.  Για αυτόν, το διάκενο είναι «ένας χώρος στις κοινωνικές σχέσεις που, αν και ταιριάζει περισσότερο ή λιγότερο αρμονικά και ανοιχτά στο συνολικό σύστημα, προτείνει δυνατότητες για ανταλλαγές διαφορετικές από αυτές που επικρατούν εντός του συστήματος».

Αριτεκτονική μελέτη: Plaini and Karahalios Architects (Γιάννης Καραχάλιος & Ελισάβετ Πλαΐνη) – Χρήστος Γεώργιος Κρητικός, Φωτορεαλιστική απεικόνιση, © Plaini and Karahalios Architects

Έτσι, οι αρχιτέκτονες οραματίζονεται έναν χώρο εντός ενός σχολικού campus, όπου οι καλλιτεχνικές εκπαιδευτικές δραστηριότητες θα μπορούν να αποτελέσουν πεδίο δημιουργικής συνδιαμόρφωσης από μαθητές/τριες και εκπαιδευτικούς, και ταυτόχρονα έναν χώρο όπου, ειδικά μέσω των μαθητικών εκθέσεων, θα δίνει το βήμα στους παραλήπτες της εκπαίδευσης να εκφραστούν ως αυτόνομα υποκείμενα, απευθυνόμενα τόσο στο σχολικό τους περιβάλλον, όσο και σε ολόκληρη την κοινωνία.
Το γεγονός ότι το προτεινόμενο κτίριο προβλέπεται να ‘ανοίγεται’ στον καλλιτεχνικό κόσμο αλλά και σε όσους σχετίζονται με το Ελληνοαμερικανικό Εκπαιδευτικό Ίδρυμα, το τοποθετεί σε μία ιδιαίτερη θέση ανάμεσα στα κτίρια του σχολικού campus. Η ιδιαίτερη θέση του κτιρίου, τόσο μεταφορικά όσο και κυριολεκτικά δεδομένης της εγγύτητας με την κεντρική πύλη, του δίνει την ιδιότητα ενός μεταιχμιακού χώρου, στον οποίο το προστατευόμενο σχολικό περιβάλλον θα συναντιέται με την ευρύτερη κοινωνία. Θα πρέπει λοιπόν να δοθεί βάρος στην επικοινωνιακή του διάσταση προς τα έξω, χωρίς όμως να υπονομευτεί η αίσθηση ασφάλειας που θα πρέπει να προκαλεί στους νεαρούς χρήστες του.

Αριτεκτονική μελέτη: Plaini and Karahalios Architects (Γιάννης Καραχάλιος & Ελισάβετ Πλαΐνη) – Χρήστος Γεώργιος Κρητικός, Φωτορεαλιστική απεικόνιση, © Plaini and Karahalios Architects


“Με βάση τα παραπάνω, κρίθηκε ως κατάλληλο πεδίο έμπνευσης η συμβολική διάσταση και η χωρική συνθήκη του κοινοβιακού μοναστηριού, ενός προστατευμένου χώρου όπου η ενδοσκοπική ενατένιση συναντά την ζύμωση ιδεών και γνώσης”.


Αριτεκτονική μελέτη: Plaini and Karahalios Architects (Γιάννης Καραχάλιος & Ελισάβετ Πλαΐνη) – Χρήστος Γεώργιος Κρητικός, Φωτορεαλιστική απεικόνιση, © Plaini and Karahalios Architects

Το σύνολο των εκπαιδευτικών αιθουσών, εργαστηρίων αλλά και των υπαίθριων χώρων θα ορίζεται από το ένα κοινό περίβλημα, το οποίο όμως θα είναι διαπερατό σε διαφορετικά σημεία και επίπεδα. Ανάλογο με διάφορες μοναστηριακές δομές, το προτεινόμενο κτίριο θα δίνει την εντύπωση ενός περίκλειστου χώρου, αρμονικά ενταγμένου στο περιβάλλον του, του οποίου η διακριτή λειτουργία σηματοδοτείται και αρχιτεκτονικά, προσκαλώντας πάραυτα την εισαγωγή σε αυτό και την διάδραση με τους υπόλοιπους χρήστες του.

Αριτεκτονική μελέτη: Plaini and Karahalios Architects (Γιάννης Καραχάλιος & Ελισάβετ Πλαΐνη) – Χρήστος Γεώργιος Κρητικός, Φωτορεαλιστική απεικόνιση, © Plaini and Karahalios Architects

Η κεντροβαρική του θέση στο campus, το καθιστά ένα σημείο σύμπτωσης διαφόρων μονοπατιών και δρόμων, που διαμορφώνονται στο ευρύτερο περιβάλλον, αλλά τα ξεκάθαρα όριά του θα παρέχουν την αίσθηση της ‘ελεγχόμενης έκθεσης’ που κρίνεται αναγκαία σε χώρους καλλιτεχνικής εξάσκησης. Εντός των ορίων αυτών, οι Εικαστικές Τέχνες, ο Χορός, η Μουσική, το Θέατρο και ο Κινηματογράφος θα κατακτιόνται ως πεδία από μαθητές και μαθήτριες, ενώ θα αποτελέσουν και εργαλεία επικοινωνίας με το σύνολο της εκπαιδευτικής κοινότητας.
Σε ένα πρόσφατο επιστημονικό άρθρο της Mette Birkedal Bruun [3] με τίτλο: «A Solitude of Permeable Boundaries: The Abbey of La Trappe between Isolation and Engagement» εξερευνάται η αμφίθυμη θέση που μπορεί να έχει ένα μοναστήρι ως μέρος διατήρησης, παραγωγής και διάχυσης της γνώσης.

Αριτεκτονική μελέτη: Plaini and Karahalios Architects (Γιάννης Καραχάλιος & Ελισάβετ Πλαΐνη) – Χρήστος Γεώργιος Κρητικός, Φωτορεαλιστική απεικόνιση, © Plaini and Karahalios Architects

Αναζητώντας έναν χώρο που θα δημιουργεί την προαναφερθείσα αίσθηση ασφάλειας σε μαθητές/τριες, ώστε να μυηθούν σε έναν κόσμο καλλιτεχνικών αναζητήσεων, αλλά και έναν χώρο που θα προωθείται η εξωστρεφής καλλιτεχνική έκφραση, οι αρχιτέκτονες θεωρούν ότι το μοντέλο ενός διαπερατού μοναστηριού μπορεί να παρέχει την απαραίτητη χωρική συνθήκη.

Αριτεκτονική μελέτη: Plaini and Karahalios Architects (Γιάννης Καραχάλιος & Ελισάβετ Πλαΐνη) – Χρήστος Γεώργιος Κρητικός, Φωτορεαλιστική απεικόνιση, © Plaini and Karahalios Architects

Αν ακολουθήσουμε την θέση ότι «Η μοναστική ζωή συμβάλλει στην έκθεση του μοναχού, αλλά λειτουργεί και ως καταφύγιo» η επιλογή μαθητείας στο «Δ.Δασκαλόπουλος Κτίριο Τεχνών» θα πλαισιώνει τους/τις μαθητές/τριες ώστε να αφοσιωθούν στις προσωπικές προκλήσεις της καλλιτεχνικής διεργασίας, παρέχοντας τόσο ένα βήμα προβολής και έκφρασης, όσο και ένα προστατευμένο χώρο ενδοσκοπικής ενατένισης.

Αριτεκτονική μελέτη: Plaini and Karahalios Architects (Γιάννης Καραχάλιος & Ελισάβετ Πλαΐνη) – Χρήστος Γεώργιος Κρητικός, Φωτορεαλιστική απεικόνιση, © Plaini and Karahalios Architects

Επιστρέφοντας σε ένα κείμενο στο οποίο πριν από σαράντα χρόνια η liane Lefaivre και ο Αλέξανδρος Τζώνης [4] προσπάθησαν να αναδείξουν τη σημασία του συνδυασμού του κανάβου με την πορεία σε ορισμένα αρχιτεκτονικά έργα στην Ελλάδα, οι αρχιτέκτονες ερμηνεύουν εκ νέου την σχέση τους και οραματίζονται ένα κτίριο που, ενώ προκύπτει ως σημείο συνάντησης διαφορετικών πορειών, οργανώνει και προστατεύει τις εν λόγω συμπτώσεις. Εντός του «Δ.Δασκαλόπουλος Κτιρίου Τεχνών» και μέσω της εκπαιδευτικής τους πλαισίωσης, οι μαθητές/τριες θα δημιουργούν τις δικές τους πορείες, οι οποίες θα ορίσουν και τα πρώτα μετασχολικά τους βήματα.

Αριτεκτονική μελέτη: Plaini and Karahalios Architects (Γιάννης Καραχάλιος & Ελισάβετ Πλαΐνη) – Χρήστος Γεώργιος Κρητικός, Φωτορεαλιστική απεικόνιση, © Plaini and Karahalios Architects


[1] Felix Guattari, Chaosmose, Paris: Editions Galilee, 1992, 183

[2 ] Nicolas Bourriaud, Relational Aesthetics in Claire Bishop, Participation | London (Whitechapel 2010), 161

[3] Birkedal Bruun, M. (2018) | A solitude of permeable boundaries: The abbey of La Trappe between isolation and engagement. Solitudo, Leiden/Boston (BRILL, 2018) 467

[4 ] Alexander Tzonis, Liane Lefaivre | The Grid and the Pathway: An Introduction to the Work of Dimitris and Suzana Antonakakis, with Prolegomena to a History of the Culture of Modern Greek Architecture | Architecture in Greece 15. Athens (1981) 164


Στοιχεία & Συντελεστές πρότασης:
Τίτλος έργου: Κτίριο Τεχνών Δ. Δασκαλόπουλος (Κολλέγιο Αθηνών), Τυπολογία: Πρόταση συμμετοχής σε ανοικτό αρχιτεκτονικό διαγωνισμό ιδεών, Τοποθεσία: Τοποθεσία: Παλαιό Ψυχικό – Αθήνα – Ελλάδα, Αρχιτεκτονική μελέτη: Plaini and Karahalios Architects (Γιάννης Καραχάλιος & Ελισάβετ Πλαΐνη) – Χρήστος Γεώργιος Κρητικός, Συνεργάτης Αρχιτέκτονας: Νίκος Λάμπρου, Πολιτικός Μηχανικός: Χρήστος Πλαΐνης, Μέγεθος: 4500 m², Έτος Μελέτης: 2022, Κείμενο παρουσίασης – Φωτορεαλιστικές απεικονίσεις: Plaini and Karahalios Architects

English description: Plaini and Karahalios Architects share their entry at the Open Architectural Ideas Competition, co-organized by the College of Athens and SYNEON for the creation of a new Arts Building within the premises of the Hellenic American Educational Foundation in Psychiko. According to architects, the building will be integrated in an architecturally diverse environment, hosting a new discrete educational function. A spatial condition of permeable boundaries will be formed, framing a source of artistic creation and dissemination in the educational institution.

A seemingly monolithic building invites observers through its openings to be introduced to the world of arts, to evolve within its protected environment, but also to be creatively exposed to the wider society. The educational spaces are articulated around a multi-level atrium, connected to multiple outdoor and semi-outdoor paths. These interior pathways function as part of the pre-existing network of unpaved trails that define the movements in the natural landscape of the campus. The building thus establishes a dual relationship with its environment, being an organic part of it but also functioning as an autonomous enclave of expressive experimentation and creation.

Site plan, © Plaini and Karahalios Architects

Situating artistic expression in an educational environment
“How can you bring a classroom to life as though if it were an artwork?” is one of the questions posed by Guattari [1] as he explored the ways in which art and aesthetics can penetrate existing fabrics and structures. The same question can be asked in different ways in the field of architecture, in terms of the ways designed spaces can house various expressions of art and their respective creative processes.

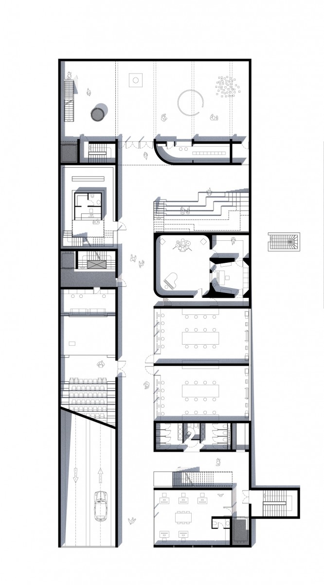
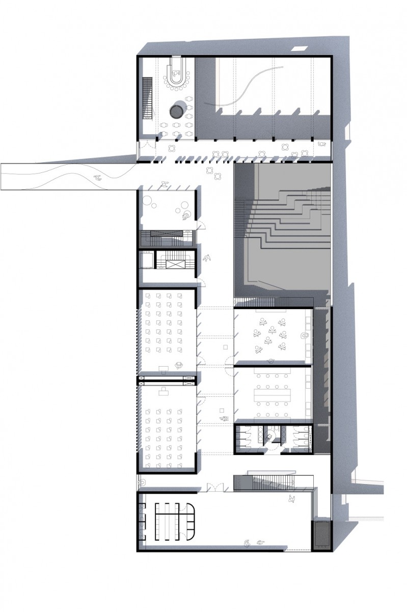
Ground floor plan, © Plaini and Karahalios Architects


“The design of an educational center dedicated to the Arts, especially when it addresses secondary education, is requested to achieve the special balance between a functional spatial framework and an appropriable spatial condition”.


Basement plan, © Plaini and Karahalios Architects

It is requested to produce spaces where the expressive development of students in the formative years of adolescence will be hosted, where practice will be encouraged embracing failure as a necessary part of it, where personal and collective boundaries will be overcome, all the while providing the appropriate sense of security that will encourage the creative contemplation involved in the artistic process. It is therefore called to provide the grid, but also to promote the unhindered unravelling of different paths.

1st floor plan, © Plaini and Karahalios Architects

The “D. Daskalopoulos Arts Building” is going to house the courses of Visual Arts, Dance, Music, Theatre and Film of the “International Baccalaureate Diploma Program”, but it will also be able to host the artistic education, experimentation and expression of all students of secondary education in the Athens College and the Psychiko College. Among the many and important buildings of educational, sports and cultural activities, the proposed building will acquire a very important role for students who will be enriching their curricula through artistic education.

2nd floor plan, © Plaini and Karahalios Architects

The introduction of the Arts in the educational context of ‘STEM’ (Science, Technology, Engineering and Mathematics), i.e. the educational interaction between the Positive Sciences and the Arts that recently included the A (Arts) in the modern ‘STEAM’ education system, is now considered integral in the ever-evolving framework of school curricula. In the same way, the inclusion of the proposed building in the school campus will signal the growing importance of art courses in all educational programs of the Hellenic American Educational Foundation.

Roof plan, © Plaini and Karahalios Architects

In describing such a space, one may wonder if Bourriaud [2] had artistic education in mind when he described his vision of works of art functioning as ‘social interstices’. For him, “An interstice is a space in social relations which, although it fits more or less harmoniously and openly into the overall system, suggests possibilities for exchanges other than those that prevail within the system”.  Thus, architects envision a space within a school campus, where artistic educational activities will provide a field for the creative co-formation of students and teachers alike – a space where, especially through student exhibitions, will give the recipients of education a chance to express themselves, addressing both their school environment and society as a whole.

Northeast elevation, © Plaini and Karahalios Architects

A monastery of permeable boundaries
The fact that the proposed building is planned to open up to the artistic world and to the wider Hellenic American Educational Foundation community, underlines its special significance among the other buildings of the school campus. The central position of the building, both metaphorically and literally (given its proximity to the Main Gate), turns it into an extended threshold, in which the protected school environment will be meeting with the wider society. Therefore, its communicational function needs to be accentuated, without however undermining the sense of security that it should provide to its young users.

Northwest elevation, © Plaini and Karahalios Architects


“Based on the above, the symbolic connotations and the unique spatial conditions of the cenobitic monastery, a protected space where endoscopic contemplation meets the fermentation of ideas and knowledge, was deemed as a suitable source of architectural inspiration”.


Southeast elevation, © Plaini and Karahalios Architects

All educational spaces, workshops and outdoor spaces will be enclosed within the building boundaries, which will be permeable at different points and levels. Drawing from various monastic structures, the proposed building will give the impression of an enclosed space, harmoniously integrated into its environment, a building whose distinct function will be architecturally expressed, inviting individuals to enter it and interact with its users within its protective boundaries.

Southwest elevation, © Plaini and Karahalios Architects

Its central location in the campus render it an intersection of various pathways and routes, but the enclosure of its spaces will provide a sense of ‘controlled exposure’ that is deemed necessary in places of artistic practice. Within its walls, the fields of Visual Arts, Dance, Music, Theatre and Film will be conquered by students, while also functioning as tools of communication with the entire educational community.

Cross sections, © Plaini and Karahalios Architects

A recent scientific paper by Mette Birkedal Bruun [3] titled: “A Solitude of Permeable Boundaries: The Abbey of La Trappe between Isolation and Engagement” explores the ambiguous role that a monastery may have as a space for the preservation, production and dissemination of knowledge. Imagining a place that will create the aforementioned feeling of safety for students to be introduced to a world of artistic pursuits, as well as a place that will promote extrovert artistic expression, we believe that the concept of the permeable monastery can provide the desired spatial condition.

Longitudinal sections, © Plaini and Karahalios Architects

If we agree that “Monastic life exposes the monk, but it gives him cover too”  the choice of studying in “D. Daskalopoulos Arts Building” will provide the framework for students to dedicate themselves to the challenges of the artistic process, providing both a protected space for creative contemplation and a setting for exhibiting the results of their apprenticeships.

Site diagrams, © Plaini and Karahalios Architects

Building diagrams, © Plaini and Karahalios Architects

Returning to a forty year old text through which Tzonis & Lefaivre [4] tried to describe the importance of combining the grid with the pathway in some architectural works in Greece, architects re-interpret their relationship and envision a building that emerges as an intersection of different paths, organizing and protecting their convergence. Within the “D. Daskalopoulos Arts Building” and through its educational framework, the students will create their own paths, which will define their first post-school steps.

Energy diagrams, © Plaini and Karahalios Architects


[1] Felix Guattari, Chaosmose, Paris: Editions Galilee, 1992, 183

[2] Nicolas Bourriaud, Relational Aesthetics in Claire Bishop, Participation | London (Whitechapel 2010), 161

[3] Birkedal Bruun, M. (2018) | A solitude of permeable boundaries: The abbey of La Trappe between isolation and engagement. Solitudo, Leiden/Boston (BRILL, 2018) 467

[4] Alexander Tzonis, Liane Lefaivre | The Grid and the Pathway: An Introduction to the Work of Dimitris and Suzana Antonakakis, with Prolegomena to a History of the Culture of Modern Greek Architecture | Architecture in Greece 15. Athens (1981) 164


Facts & Credits:
Project title: The D. Daskalopoulos Arts Building (Athens College), Typology: Entry in Open Architectural Ideas Competition, Location: Athens – Greece, Architectural study: Plaini and Karahalios Architects (John Karahalios & Elisavet Plaini) – Christos Georgios Kritikos, Architect Collaborator: Nikos Labrou, Civil Engineer: Christos Plainis, Size: 4500 m², Design year: 2022, Text description – 3d visualization: Plaini and Karahalios Architects
<

Υποβάλλετε ένα άρθρο

Το όνομά σας *

Το email σας *

Το θέμα του άρθρου σας *

kataskevesktirion.gr
kataskevesktirion.gr

Σχετικές δημοσιεύσεις

Αρχιτεκτονική Μελέτη & Interior Design: Potiropoulos+Partners | Φωτορεαλιστική απεικόνιση © Batis Studio

28 Απριλίου 2026

Με το διεθνές βραβείο Big SEE Architecture Award 2026 – Winner διακρίθηκε το κτίριο γραφείων «Oxygen Workplace» της Potiropoulos+Partners


Διαβάστε το άρθρο

Αρχιτεκτονική μελέτη: Studio Maneo | Φωτορεαλιστική απεικόνιση © Studio Maneo

21 Απριλίου 2026

Ochra Residence: Ξύλινες κατασκευές και γήινοι τόνοι, σε ένα συγκρότημα κατοικιών με μεζονέτες στη Λυκόβρυση


Διαβάστε το άρθρο

Αρχιτεκτονική μελέτη – Στατική μελέτη – Αρχιτεκτονική τοπίου: Vrantsi | Φωτορεαλιστική απεικόνιση © Vrantsi

16 Απριλίου 2026

Villa Earth: Μια φουτουριστική βίλα που μοιάζει να αναδύεται από τις ακτές της Μεσογείου σαν υπερπολυτελές γιοτ


Διαβάστε το άρθρο

Αρχιτεκτονική Μελέτη: The Hive Architects | Φωτορεαλιστική απεικόνιση © The Hive Architects

14 Απριλίου 2026

Μια μονοκατοικία στο Μαρούσι που βασίζεται στον γεωμετρικό σχεδιασμό & τη σύγχρονη πολυτέλεια


Διαβάστε το άρθρο

Αρχιτεκτονική μελέτη - Γενικό Πολεοδομικό Σχέδιο Χερσαίας Ζώνης - Μελέτη Τοπίου: Neiheiser Argyros | Φωτορεαλιστική απεικόνιση © DUEE Studio

1 Απριλίου 2026

Μια νέα μαρίνα για την Ερμιόνη, σχεδιασμένη ως επέκταση του αρχαίου χωριού της περιοχής


Διαβάστε το άρθρο

Αρχιτεκτονική μελέτη: FOTIS ZAPANTIOTIS associated architects | Φωτορεαλιστική απεικόνιση © STUDIO TAF

13 Μαρτίου 2026

Ένα υπόσκαφο οινοποιείο μοιάζει να «σχίζει» το καταπράσινο τοπίο σε μια πλαγιά της Αιδηψού


Διαβάστε το άρθρο
Facebook __ Ακολουθήστε μας στο Facebook
Twitter __ Ακολουθήστε μας στο Twitter
Instagram __ Ακολουθήστε μας στο Instagram

Αναζήτηση

Επικοινωνήστε μαζί μας στο ακόλουθο email:

info[@]kataskevesktirion.gr

© 2025 Κατασκευές Κτιρίων. All Rights Reserved.